腹有诗书气自华 最是书香能致远设计是人类营造生活环境,不断把自己一一完善的智慧。——原研哉
佛山万科·金域学府销售中心 | GNU金秋设计|龙海玲 - 1
佛山万科·金域学府销售中心 | GNU金秋设计|龙海玲 - 1 ×
本案坐落在杏坛镇,杏坛镇有源远流长的文教传统,南宋时由夏、谭两姓开村,因读书者甚众,取古语:"孔子居杏坛,贤人七十,弟子三千"的"杏坛"二字为名,“金域”意“鲸鱼”,满腹经纶,胸藏文墨怀若谷,腹有诗书气自华,“金域学府”而得名于此。这座有着浓郁文化背景的城市,在过去几千年的历史流转,文教渊源已扎根于此,承袭文化内在和外在的意义,设计师从生活的感悟与体验出发,以独具包容性的态度,结合地域特色,将传统文化融入空间设计当中,以探求人文与空间的融合。
   
佛山万科·金域学府销售中心 | GNU金秋设计|龙海玲 - 2
佛山万科·金域学府销售中心 | GNU金秋设计|龙海玲 - 2 ×
儒学中的“和合之美”之于现代美学,讲究的是融合与和谐,一尊将孔子论语拆解成无数笔画的吊帘装饰,在形式上,设计师尝试着将传统的意识转化为一种具现代理念的表现手法,探究的是东方古典文化在当下现实语境中的存在价值。
佛山万科·金域学府销售中心 | GNU金秋设计|龙海玲 - 5
佛山万科·金域学府销售中心 | GNU金秋设计|龙海玲 - 5 ×
沙盘区顶部的艺术吊饰,造型简约大方,高低垂挂在沙盘区上方,凌乱中错落有序,与序列感排列的木格栅元素形成连续和呼应,流露出学府独有的文雅与秀气。
佛山万科·金域学府销售中心 | GNU金秋设计|龙海玲 - 8
佛山万科·金域学府销售中心 | GNU金秋设计|龙海玲 - 8 ×
平衡对称的布局衔接大厅、沙盘区与接待区,在整个空间中,设计师将传统与现代的界限模糊化,却各自保留其精致奢美的质感,融而不断,形成空间的通透性,呈现虚实相间的效果。
佛山万科·金域学府销售中心 | GNU金秋设计|龙海玲 - 9
佛山万科·金域学府销售中心 | GNU金秋设计|龙海玲 - 9 ×
设计师通过对空间设计的升级,为这个售楼处打造了一个具有辨识度的艺术长廊,高三米八的书墙,以夸张的表现手法,营造出素雅静逸的书苑氛围。于书墙中嵌入装饰柜,放置的白瓷花瓶,却有“书中自有颜如玉”的既视感。
佛山万科·金域学府销售中心 | GNU金秋设计|龙海玲 - 10
佛山万科·金域学府销售中心 | GNU金秋设计|龙海玲 - 10 ×
长廊的端头是一尊出自乌克兰雕刻家纳扎尔·比利的雕像《雨》,“他”透过脸上的水珠,望向天空,与天花板飘散着的书页形成呼应,似乎陶醉于书海的力量中,与知识对话。
佛山万科·金域学府销售中心 | GNU金秋设计|龙海玲 - 16
佛山万科·金域学府销售中心 | GNU金秋设计|龙海玲 - 16 ×
沿着楼梯,层层叠峦的书签“镶嵌”在木格栅上,顺序而上,与艺术长廊的书墙呼应得当,强化了整个空间的意境。闭目的雕像似乎在倾听内心的声音,再华丽的粉饰都无法将这一纯粹的空间“情境”营造出来——平静,和谐与秩序。
佛山万科·金域学府销售中心 | GNU金秋设计|龙海玲 - 18
佛山万科·金域学府销售中心 | GNU金秋设计|龙海玲 - 18 ×
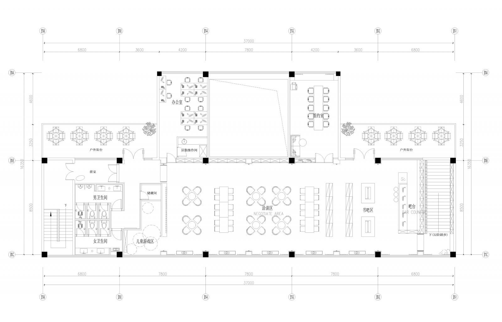
二楼设置了吧台、书吧与洽谈区,原木色元素延续于此,视觉上空间得以延伸,而基于对人员动线关系在公共空间的梳理,设计师摒弃单一的水吧形象,将书吧与洽谈区结合,体现了空间的功能性与包容性,更丰富了空间形式,让交流显得自由有序。
佛山万科·金域学府销售中心 | GNU金秋设计|龙海玲 - 21
佛山万科·金域学府销售中心 | GNU金秋设计|龙海玲 - 21 ×
书吧有近5500本图书,分别置于墙柜与两个立柜中,并设置有书桌。设计师有意模糊空间区域的界限,连续、匀和的开放界面,营造出学府空间般书香,闲逸的环境氛围。
佛山万科·金域学府销售中心 | GNU金秋设计|龙海玲 - 24
佛山万科·金域学府销售中心 | GNU金秋设计|龙海玲 - 24 ×
精彩评论