Gottesman建筑事务所与GSArch在以色列Kfar Shmaryahu共同打造了一栋现代而简约的私人住宅。这是建筑师Asaf Gottesman在近十年间的第一个私人住宅项目。该项目为建筑师带来了重新磨炼技能以及与客户和友人进行讨论的机会。最终的建筑呈现出一种简单、放松且不张扬的特质。

▼建筑外观
现代而简约的清水混凝土住宅·以色列 POSTSCRIPT 住宅 | Gottesman Architecture|Gottesman Architecture  - 0
现代而简约的清水混凝土住宅·以色列 POSTSCRIPT 住宅 | Gottesman Architecture|Gottesman Architecture  - 0 ×
搜模型该住宅由现场浇筑的清水混凝土打造而成,在细节上的处理上十分细致谨慎。住宅是为一个大家庭而设计,在统一不同空间的同时也强调家庭核心的重要性。建筑师将其自1990年代以来的实践经验充分运用到了这座建筑当中。

▼住宅由现场浇筑的清水混凝土打造而成
现代而简约的清水混凝土住宅·以色列 POSTSCRIPT 住宅 | Gottesman Architecture|Gottesman Architecture  - 1
现代而简约的清水混凝土住宅·以色列 POSTSCRIPT 住宅 | Gottesman Architecture|Gottesman Architecture  - 1 ×
▼建筑从东面看是一栋双层住宅
现代而简约的清水混凝土住宅·以色列 POSTSCRIPT 住宅 | Gottesman Architecture|Gottesman Architecture  - 2
现代而简约的清水混凝土住宅·以色列 POSTSCRIPT 住宅 | Gottesman Architecture|Gottesman Architecture  - 2 ×
▼下沉的庭院
现代而简约的清水混凝土住宅·以色列 POSTSCRIPT 住宅 | Gottesman Architecture|Gottesman Architecture  - 4
现代而简约的清水混凝土住宅·以色列 POSTSCRIPT 住宅 | Gottesman Architecture|Gottesman Architecture  - 4 ×
利用略微抬起的坡地地形,该住宅从西面看是一栋单层住宅,而从东面看则是双层住宅。场地的一半区域被设计为开放式的花园,其中包含一个20米长、与住宅相平行的游泳池。该花园也为未来的扩建提供了可能性。

▼场地的一半区域被设计为开放式的花园
现代而简约的清水混凝土住宅·以色列 POSTSCRIPT 住宅 | Gottesman Architecture|Gottesman Architecture  - 5
现代而简约的清水混凝土住宅·以色列 POSTSCRIPT 住宅 | Gottesman Architecture|Gottesman Architecture  - 5 ×
▼20米长的游泳池与住宅相平行
现代而简约的清水混凝土住宅·以色列 POSTSCRIPT 住宅 | Gottesman Architecture|Gottesman Architecture  - 6
现代而简约的清水混凝土住宅·以色列 POSTSCRIPT 住宅 | Gottesman Architecture|Gottesman Architecture  - 6 ×
▼室外露台区域
现代而简约的清水混凝土住宅·以色列 POSTSCRIPT 住宅 | Gottesman Architecture|Gottesman Architecture  - 8
现代而简约的清水混凝土住宅·以色列 POSTSCRIPT 住宅 | Gottesman Architecture|Gottesman Architecture  - 8 ×
▼从露台望向室内
现代而简约的清水混凝土住宅·以色列 POSTSCRIPT 住宅 | Gottesman Architecture|Gottesman Architecture  - 9
现代而简约的清水混凝土住宅·以色列 POSTSCRIPT 住宅 | Gottesman Architecture|Gottesman Architecture  - 9 ×
▼入口玄关
现代而简约的清水混凝土住宅·以色列 POSTSCRIPT 住宅 | Gottesman Architecture|Gottesman Architecture  - 10
现代而简约的清水混凝土住宅·以色列 POSTSCRIPT 住宅 | Gottesman Architecture|Gottesman Architecture  - 10 ×
在设计初期,房屋主人便要求将他们的卧室设置在一层,与客厅相连;儿童房和其他家庭成员的房间则设置在地下层。这个大家庭里共有四个男孩,最大和最小的一对双胞胎年龄相差近20岁。轻松惬意的家庭生活也需要严谨而细致的审美,住宅中的每件物品均是经过精心挑选,没有一丝杂乱无章的感觉。

▼客厅
现代而简约的清水混凝土住宅·以色列 POSTSCRIPT 住宅 | Gottesman Architecture|Gottesman Architecture  - 11
现代而简约的清水混凝土住宅·以色列 POSTSCRIPT 住宅 | Gottesman Architecture|Gottesman Architecture  - 11 ×
▼朝向花园的视野
现代而简约的清水混凝土住宅·以色列 POSTSCRIPT 住宅 | Gottesman Architecture|Gottesman Architecture  - 12
现代而简约的清水混凝土住宅·以色列 POSTSCRIPT 住宅 | Gottesman Architecture|Gottesman Architecture  - 12 ×
▼室内外环境相互交融
现代而简约的清水混凝土住宅·以色列 POSTSCRIPT 住宅 | Gottesman Architecture|Gottesman Architecture  - 14
现代而简约的清水混凝土住宅·以色列 POSTSCRIPT 住宅 | Gottesman Architecture|Gottesman Architecture  - 14 ×
▼客厅细部
现代而简约的清水混凝土住宅·以色列 POSTSCRIPT 住宅 | Gottesman Architecture|Gottesman Architecture  - 15
现代而简约的清水混凝土住宅·以色列 POSTSCRIPT 住宅 | Gottesman Architecture|Gottesman Architecture  - 15 ×
▼走廊
现代而简约的清水混凝土住宅·以色列 POSTSCRIPT 住宅 | Gottesman Architecture|Gottesman Architecture  - 17
现代而简约的清水混凝土住宅·以色列 POSTSCRIPT 住宅 | Gottesman Architecture|Gottesman Architecture  - 17 ×
▼从客厅望向餐厅
现代而简约的清水混凝土住宅·以色列 POSTSCRIPT 住宅 | Gottesman Architecture|Gottesman Architecture  - 19
现代而简约的清水混凝土住宅·以色列 POSTSCRIPT 住宅 | Gottesman Architecture|Gottesman Architecture  - 19 ×
▼餐厅
现代而简约的清水混凝土住宅·以色列 POSTSCRIPT 住宅 | Gottesman Architecture|Gottesman Architecture  - 20
现代而简约的清水混凝土住宅·以色列 POSTSCRIPT 住宅 | Gottesman Architecture|Gottesman Architecture  - 20 ×
▼厨房
现代而简约的清水混凝土住宅·以色列 POSTSCRIPT 住宅 | Gottesman Architecture|Gottesman Architecture  - 21
现代而简约的清水混凝土住宅·以色列 POSTSCRIPT 住宅 | Gottesman Architecture|Gottesman Architecture  - 21 ×
▼吧台
现代而简约的清水混凝土住宅·以色列 POSTSCRIPT 住宅 | Gottesman Architecture|Gottesman Architecture  - 22
现代而简约的清水混凝土住宅·以色列 POSTSCRIPT 住宅 | Gottesman Architecture|Gottesman Architecture  - 22 ×
▼书房
现代而简约的清水混凝土住宅·以色列 POSTSCRIPT 住宅 | Gottesman Architecture|Gottesman Architecture  - 23
现代而简约的清水混凝土住宅·以色列 POSTSCRIPT 住宅 | Gottesman Architecture|Gottesman Architecture  - 23 ×
▼休闲室
现代而简约的清水混凝土住宅·以色列 POSTSCRIPT 住宅 | Gottesman Architecture|Gottesman Architecture  - 24
现代而简约的清水混凝土住宅·以色列 POSTSCRIPT 住宅 | Gottesman Architecture|Gottesman Architecture  - 24 ×
▼与客厅相连的卧室
现代而简约的清水混凝土住宅·以色列 POSTSCRIPT 住宅 | Gottesman Architecture|Gottesman Architecture  - 25
现代而简约的清水混凝土住宅·以色列 POSTSCRIPT 住宅 | Gottesman Architecture|Gottesman Architecture  - 25 ×
▼朝向庭院的卧室
现代而简约的清水混凝土住宅·以色列 POSTSCRIPT 住宅 | Gottesman Architecture|Gottesman Architecture  - 27
现代而简约的清水混凝土住宅·以色列 POSTSCRIPT 住宅 | Gottesman Architecture|Gottesman Architecture  - 27 ×
▼浴室
现代而简约的清水混凝土住宅·以色列 POSTSCRIPT 住宅 | Gottesman Architecture|Gottesman Architecture  - 30
现代而简约的清水混凝土住宅·以色列 POSTSCRIPT 住宅 | Gottesman Architecture|Gottesman Architecture  - 30 ×
▼淋浴间
现代而简约的清水混凝土住宅·以色列 POSTSCRIPT 住宅 | Gottesman Architecture|Gottesman Architecture  - 32
现代而简约的清水混凝土住宅·以色列 POSTSCRIPT 住宅 | Gottesman Architecture|Gottesman Architecture  - 32 ×
▼花园夜景
现代而简约的清水混凝土住宅·以色列 POSTSCRIPT 住宅 | Gottesman Architecture|Gottesman Architecture  - 33
现代而简约的清水混凝土住宅·以色列 POSTSCRIPT 住宅 | Gottesman Architecture|Gottesman Architecture  - 33 ×
▼首层平面图
现代而简约的清水混凝土住宅·以色列 POSTSCRIPT 住宅 | Gottesman Architecture|Gottesman Architecture  - 36
现代而简约的清水混凝土住宅·以色列 POSTSCRIPT 住宅 | Gottesman Architecture|Gottesman Architecture  - 36 ×
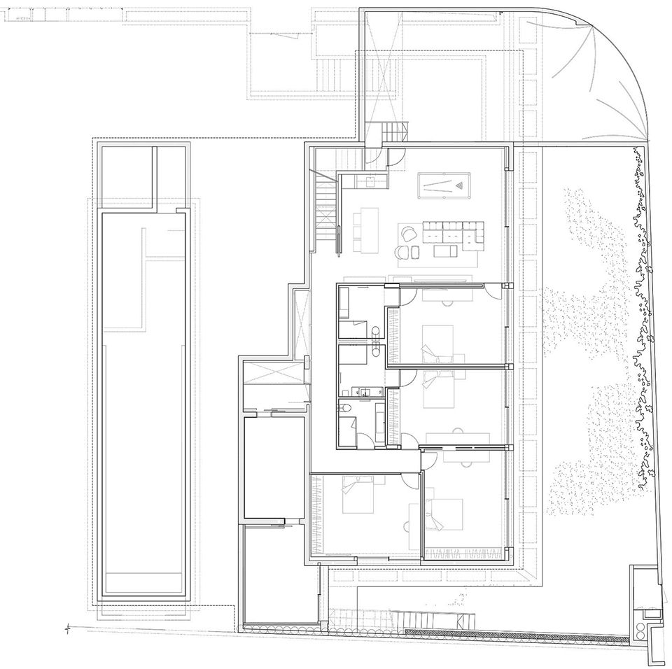
▼地下一层平面图
现代而简约的清水混凝土住宅·以色列 POSTSCRIPT 住宅 | Gottesman Architecture|Gottesman Architecture  - 37
现代而简约的清水混凝土住宅·以色列 POSTSCRIPT 住宅 | Gottesman Architecture|Gottesman Architecture  - 37 ×
▼北立面图
现代而简约的清水混凝土住宅·以色列 POSTSCRIPT 住宅 | Gottesman Architecture|Gottesman Architecture  - 38
现代而简约的清水混凝土住宅·以色列 POSTSCRIPT 住宅 | Gottesman Architecture|Gottesman Architecture  - 38 ×
▼南立面图
现代而简约的清水混凝土住宅·以色列 POSTSCRIPT 住宅 | Gottesman Architecture|Gottesman Architecture  - 39
现代而简约的清水混凝土住宅·以色列 POSTSCRIPT 住宅 | Gottesman Architecture|Gottesman Architecture  - 39 ×
▼东立面图
现代而简约的清水混凝土住宅·以色列 POSTSCRIPT 住宅 | Gottesman Architecture|Gottesman Architecture  - 40
现代而简约的清水混凝土住宅·以色列 POSTSCRIPT 住宅 | Gottesman Architecture|Gottesman Architecture  - 40 ×
现代而简约的清水混凝土住宅·以色列 POSTSCRIPT 住宅 | Gottesman Architecture|Gottesman Architecture  - 41 ▼西立面图
现代而简约的清水混凝土住宅·以色列 POSTSCRIPT 住宅 | Gottesman Architecture|Gottesman Architecture  - 41 ×
精彩评论