书中有道,其道如攀,读一本书,感悟一段人生,在感悟中成长,在成长中修行。徜徉在书的海洋,感受书籍带来的智慧与幸福,让喧嚣的沉静下来,让生活的一切美好起来。
武汉万科金域学府营销中心设计欣赏|郭子伟 - 0
武汉万科金域学府营销中心设计欣赏|郭子伟 - 0 ×
/ 建筑景观园林 / 随着高铁里程的增加,产业资源的调整,国家区域经济获得了重构,武汉作为中部城市,遇到前所未有机遇。作为一座古典又现代的城市,武汉深厚的文化底蕴,吸引了大量年轻人趋之若鹜。
武汉万科金域学府营销中心设计欣赏|郭子伟 - 1
武汉万科金域学府营销中心设计欣赏|郭子伟 - 1 ×
/ 前厅玄关墙 / 朴悦设计在项目建筑前期即开始介入室内设计,在室内空间的形成过程中,紧扣项目要旨,以“图书馆”为概念,进行空间的场景营造,营造出充满学术气息的现代高端住宅营销中心。
武汉万科金域学府营销中心设计欣赏|郭子伟 - 2
武汉万科金域学府营销中心设计欣赏|郭子伟 - 2 ×
/ 展示区 / 营销中心外立面以玻璃幕墙筑就,内设庭院,以枯枝、矮松、白沙造景,现代古朴,禅意幽静。以此形成两种特征:对外,形成肆意接纳;对内,呈现独处诗意。朴悦面对项目这一特性,室内空间考虑更多的是如何扬长避短,理性处理外景与内部空间的关系,又能感性呈现当地的人文底蕴,这是贯穿整个空间设计关系的核心。
武汉万科金域学府营销中心设计欣赏|郭子伟 - 3
武汉万科金域学府营销中心设计欣赏|郭子伟 - 3 ×
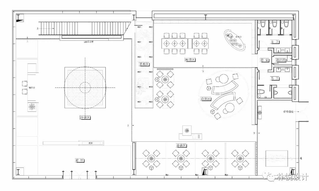
/ 展示区 / 入门,设前厅,以玄关墙建立外部与内部的关系。进入沙盘区,利用挑空优势,在顶棚营造一片“书林”,无序排列的书本折页与素面水泥元素理性、冷静,塑造了沙盘区的气质。
武汉万科金域学府营销中心设计欣赏|郭子伟 - 4
武汉万科金域学府营销中心设计欣赏|郭子伟 - 4 ×
/ 展示区 / 沙盘区的背景是横竖堆叠的书脊形成的宏伟书墙,整体灰色调给人以雅致、舒适之感,嵌入项目的区域地图,把书和城的虚实关系合为一体,增加人文感受。
武汉万科金域学府营销中心设计欣赏|郭子伟 - 5
武汉万科金域学府营销中心设计欣赏|郭子伟 - 5 ×
/ 阅读区 / 在中庭位置,介于沙盘区与洽谈区之间,开辟了一个景观面:从顶部延续采光至一层,围成玻璃盒子,内植修竹。光从顶部漫射下来,一日之中光影游走,给空间注入了意外的惊喜,也应了东坡居士“宁可食无肉,不可居无竹”的名句。
武汉万科金域学府营销中心设计欣赏|郭子伟 - 7
武汉万科金域学府营销中心设计欣赏|郭子伟 - 7 ×
/ 阅读区 / 营销中心内还专门开辟了一处雅致书房,以大体量的巨型圆灯为中心,座椅造型如山,连绵成片,辅以左侧借书满架,在整体空间中融合又独立,经典内化于心,儒雅的气质自在于外。
武汉万科金域学府营销中心设计欣赏|郭子伟 - 8
武汉万科金域学府营销中心设计欣赏|郭子伟 - 8 ×
/ 洽谈区 / 在临窗位置设洽谈区,美好的庭院景致巧于因借,转入户内。金属帘幕,在区域与区域之间达成独立性与私密性。对应另一侧以阅读区功能设定的洽谈区,在氛围上营造了个性独特的沟通场景,令洽谈氛围轻松、融洽。
武汉万科金域学府营销中心设计欣赏|郭子伟 - 10
武汉万科金域学府营销中心设计欣赏|郭子伟 - 10 ×
/ 洽谈区 / 帘幕和玻璃中庭的设计都为空间增加了缥缈的气质。好设计不是设计实体也不是设计空间,而是在平衡拿捏虚实之间的比例,调整出舒适的视觉感受。
武汉万科金域学府营销中心设计欣赏|郭子伟 - 11
武汉万科金域学府营销中心设计欣赏|郭子伟 - 11 ×
/ 楼梯 / 楼梯设计选择两片钢板的封闭夹着透气感的台阶,如同刀砍斧剁一般利落,线条洗练直达二层,木质楼梯板在暖色照明的管理下,质朴而温暖。
武汉万科金域学府营销中心设计欣赏|郭子伟 - 13
武汉万科金域学府营销中心设计欣赏|郭子伟 - 13 ×
/ VIP室 / 二层的VIP洽谈室,大门外暖光灯槽增加了墙面层次,室内空间整理成块面分明的交流区域。所谓“雅”,在色彩上,很多时候是无色彩的灰。雅的意思原本是“正”,居中,不偏不倚。灰色是黑白交汇形成的中间调,正满足的雅的本意,同时也在项目中渲染出淡而有味的人文气质。
武汉万科金域学府营销中心设计欣赏|郭子伟 - 14
武汉万科金域学府营销中心设计欣赏|郭子伟 - 14 ×
/ VIP室 / 大理石装饰画,从米灰硬包墙板上凸显出来,与整体家具配色协调统一。墙板的金属条,增加了墙面的细节感,暗中符合音律,充满节奏感。
武汉万科金域学府营销中心设计欣赏|郭子伟 - 16
武汉万科金域学府营销中心设计欣赏|郭子伟 - 16 ×
武汉万科金域学府营销中心设计欣赏|郭子伟 - 17 设计在操作层面是发现问题并深思熟虑地去解决的过程,是对可能性的好奇和探索,其过程是创造和启发。但本质是设计师在生活中酝酿的智慧,以感染人的形式呈现出来,手握书卷隐身竹林是今天人渴望不可求的奢饰,希望每个懂的人都能在这个青绿优雅的空间中偷得浮生半日闲。 项目信息项目名称/ 万科金域学府营销中心项目地点/ 中国·武汉项目面积/ 720平米主要材料/ 石材、封闭漆、木地板、钢、墙布、3M贴膜、玻璃、透光膜、铝板、地胶板室内设计/ 朴悦设计PURE DESIGN 主创设计/ 郭子伟
武汉万科金域学府营销中心设计欣赏|郭子伟 - 17 ×
精彩评论