项目名称:成都万科翡翠公园别墅样板间

项目地点:四川·成都

项目面积:约 450㎡

完工时间:2016年12月

硬装设计:深圳创域设计有限公司  

软装执行:殷艳明设计顾问有限公司

主设计师:殷艳明

参与设计:文嘉、万攀、周燕黎、周宇达、梁深祥

蜀地,天府之国。安史之乱流落此地的杜甫曾写:“出师未捷身先死,长使英雄泪满襟”,也写“好雨知时节”,“晓看红湿处,花重锦官城”。这里有历史的深邃,王者的开阔,诗词的温婉,川剧的铿锵。端一盏茶,摆起龙门阵,庙堂江湖在里头,天地万物在里头,创域设计出品的万科翡翠公园联排别墅样板间也在里头。
450㎡成都万科翡翠公园别墅设计|殷艳明 - 0
450㎡成都万科翡翠公园别墅设计|殷艳明 - 0 ×
在这里,悠久的文脉,舒适雅致的生活情怀汇聚在一起,演绎出一场当代中国人生活的写意画卷。
450㎡成都万科翡翠公园别墅设计|殷艳明 - 1
450㎡成都万科翡翠公园别墅设计|殷艳明 - 1 ×
整栋别墅共有五层。设计师根据三代同堂的居住要求,划分出合理的动静分区。并在地下一层,地面一、二层之间分别打造出两个挑空中庭,以增强不同层面空间的穿透与流动,也保持轻松、明亮、通透的空间感受,为设计师营造整体的居住美感奠定了基础。
450㎡成都万科翡翠公园别墅设计|殷艳明 - 2
450㎡成都万科翡翠公园别墅设计|殷艳明 - 2 ×
入户玄关,设置鞋柜、端景台,片刻的停留,轻轻抖落的是凡尘。铜色镜面既拓宽了空间视觉,也为自己留下了一份心境上的观照。
450㎡成都万科翡翠公园别墅设计|殷艳明 - 3
450㎡成都万科翡翠公园别墅设计|殷艳明 - 3 ×
客厅的空间处理简洁利落,装饰构想却独具匠心,细节精致考究。一边墨线恣意纵横,见山峦叠嶂,江河流淌,墨色层层晕染,似云烟,似雨雾,充盈于天地之间。这整面墙的水墨意境气势磅礴,自然天成。
450㎡成都万科翡翠公园别墅设计|殷艳明 - 5
450㎡成都万科翡翠公园别墅设计|殷艳明 - 5 ×
另一边将中国传统屏风的概念扩展以分割墙面,黄铜丝打造的莲叶与莲蓬错落有致的分布其间。两组主要的沙发一白一蓝,形式现代又点缀中国传统元素。地毯图案来自对山水的抽象与分层处理,若有若无的铺陈在地面。这些都与浓墨重彩的水墨山水在主题和形式上形成冷暖、轻重、古今的对比与呼应,在厚重的文人气息中又跳跃出生动雅致的生活情趣。
450㎡成都万科翡翠公园别墅设计|殷艳明 - 7
450㎡成都万科翡翠公园别墅设计|殷艳明 - 7 ×
楼梯处采用透空的设计手法,联系一、二层挑空的中庭。
450㎡成都万科翡翠公园别墅设计|殷艳明 - 8
450㎡成都万科翡翠公园别墅设计|殷艳明 - 8 ×
中庭设置餐厅,从高空轻盈垂落的艺术吊灯与不锈钢屏风营造出华丽的气质,又强调了中庭挑高的纵向视觉效果;餐厅与客厅连通开放,增加了同层空间的通透。餐桌上,一簇红兰在沉稳的花器上显得分外典雅,象征了女主人兰心蕙质的高洁之态。
450㎡成都万科翡翠公园别墅设计|殷艳明 - 10
450㎡成都万科翡翠公园别墅设计|殷艳明 - 10 ×
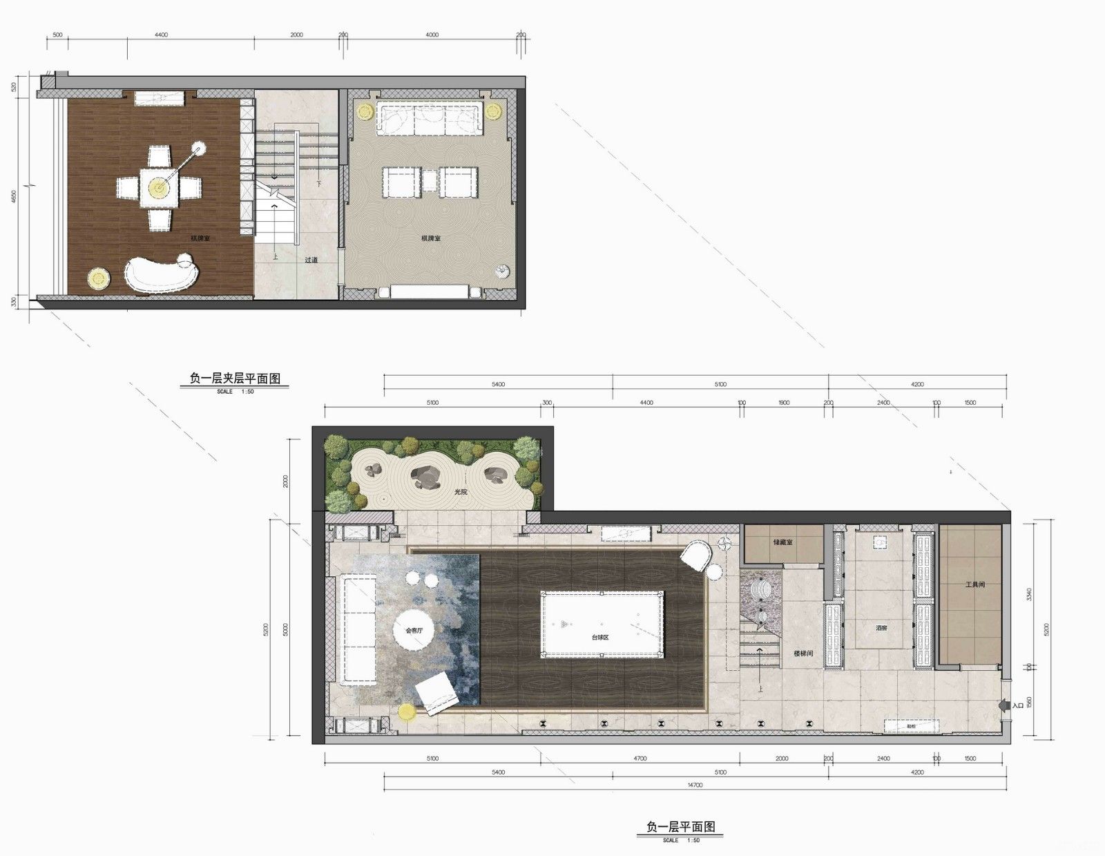
地下负一层也是本案的重点所在。不同功能空间的主题打造,提升了整个设计的品味和韵味。负一层增设夹层空间,下沉庭院、会客区、台球室、影音室和棋牌室一体化设计体现多重娱乐功能。
450㎡成都万科翡翠公园别墅设计|殷艳明 - 13
450㎡成都万科翡翠公园别墅设计|殷艳明 - 13 ×
在设计上,具有与公共空间相同的表现主题,围聚起家人好友间的情感。
450㎡成都万科翡翠公园别墅设计|殷艳明 - 15
450㎡成都万科翡翠公园别墅设计|殷艳明 - 15 ×
整体空间以暖灰调结合原木色为主,营造温馨雅致的氛围。局部不锈钢强调空间线性结构,贯穿各个空间的朱红、赤金、群青、苍色、藏青点缀,让整个空间在一派敦厚宽容的沉静中,又生动活泼起来。
450㎡成都万科翡翠公园别墅设计|殷艳明 - 18
450㎡成都万科翡翠公园别墅设计|殷艳明 - 18 ×
设计师独具匠心,将二层空间打造成私密性及尊贵感十足的老人房和儿童房套间。过厅视野开阔。由此进入卧室的动线,宣告私人领域段落的开展。端景台采用中式对称设计手法,秋色的漆画在昭示着中华文化背后的绚丽风景,与老人房沉稳雅致的格调相辅相成。
450㎡成都万科翡翠公园别墅设计|殷艳明 - 20
450㎡成都万科翡翠公园别墅设计|殷艳明 - 20 ×
男孩房的设计以“飞机”主题贯穿整个空间,相关饰品的点缀、穿插不仅体现了孩童时代大胆想象、探索,充满活泼动感的特质,也隐喻了《小王子》这本经典童话中对生命纯真、本质的永恒追求的美好愿望。
450㎡成都万科翡翠公园别墅设计|殷艳明 - 22
450㎡成都万科翡翠公园别墅设计|殷艳明 - 22 ×
三层主卧空间宽敞舒适、沉稳大器,一进屋就能轻松卸下工作压力。伴佐夜色,暖灰与藏青色的床品,在金色线条感与主题墙面山水皮雕纵横的堆叠中,光氛的氤氲带入宁静惬意的休憩氛围。整个空间展现出一派山间云卷云舒的意向,在这里感受到的不仅是身体的舒适,更是精神的诗意栖居。
450㎡成都万科翡翠公园别墅设计|殷艳明 - 24
450㎡成都万科翡翠公园别墅设计|殷艳明 - 24 ×
床尾的贵妃椅与大理石桌构成居者品味的纾压角落,主卧阳台也可供闲暇之时观景品茗。
450㎡成都万科翡翠公园别墅设计|殷艳明 - 26
450㎡成都万科翡翠公园别墅设计|殷艳明 - 26 ×
独立的衣帽间设计优化布局,具有更衣和收纳空间,带入精品展示概念结合女主人的梳妆台,提升使用体验感。
450㎡成都万科翡翠公园别墅设计|殷艳明 - 29
450㎡成都万科翡翠公园别墅设计|殷艳明 - 29 ×
浴室选用自然石材装饰。日光斜斜的穿过,将窗边遒劲的树枝,化为墙上轻盈斑驳的身影,化为心中一道安静的风景。
450㎡成都万科翡翠公园别墅设计|殷艳明 - 30
450㎡成都万科翡翠公园别墅设计|殷艳明 - 30 ×
四楼采用透空的设计手法连接书房,空间整体且富有趣味性。设计师娴熟地将经典元素和现代设计风格具象成材质与色彩,在这个光与生活融合为一的灵韵空间里,无上优越不言自彰。金色的线条与沈稳温润的色彩表现,托衬着书架、挂画,增添空间沉稳内敛的人文氛围。
450㎡成都万科翡翠公园别墅设计|殷艳明 - 31
450㎡成都万科翡翠公园别墅设计|殷艳明 - 31 ×
设计师把中国文人追求的精神从从容容的挥洒于客厅、端景和卧房的墙面、配饰等细节上。在这里,山水之美、空间之美、意境之美、材质之美都在驻足回首之间,融汇贯通,消隐了彼此之间的界限,而达于通透,在现代人的生活中体现出“意胜于形,得意忘形”这传统美学意义上的本质精神。 平面方案
450㎡成都万科翡翠公园别墅设计|殷艳明 - 32
450㎡成都万科翡翠公园别墅设计|殷艳明 - 32 ×
精彩评论