项目地点:广西桂林阳朔
室内设计:琚宾/水平线空间设计
建筑设计:董功/直向建筑
老建筑改造设计:琚宾、董功
场地设计:董功、琚宾
景观设计:琚宾、董功建筑
设计团队:何斌、王楠、刘晨、朱方舟、王坚、徐孟尧、孔祥栋、刘智勇、李柏、张鹏、马小凯、赵亮亮
室内设计团队:韦金晶、韦耀程、聂红明、 张洛恺、罗钒予、张轩荣、周文骏
驻场建筑师:赵亮亮、张鹏/直向建筑,李映发、李希普/水平线空间设计机电顾问:林森、李海家、韦福良、何姣荣、高宇/深圳市嘉石机电工程设计有限公司
灯光顾问:Albert Martin Klaasen / Klaasen Lighting Design
拿到阳朔Alila糖舍的成片时,很想去感慨生命的美好,想歌一长曲,或浮一大白。一万六千平米的酒店在我眼里有着千百万般的景致,高入空中烟囱顶,低至池内铺底砖,从芦苇到连理树,到旧木板及门拼花,早先的老壁旧垣,如今的姹紫嫣红开遍,四年的时光和心血……这是一篇长故事,现作文以分享之。 我去过很多的度假酒店,看过很多的好风景。糖舍的地域完整性、丰富多样性,再加上独特的历史背景、感情因素,在我看来,其很是具有稀缺性。 最初介入的身份是设计师,继而为了实现设计诉求、控制设计话语权变成了小股东,再变成组织者重新联系了建筑、灯光、机电等合作方团队。四年的时间里,以投资者与设计师的双重角度参与始终,对整体的格局、广度、深度、成本,各种细节的把控都有了更加深刻的心得和收获。当然,这少不了大股东们的信任与支持。
糖舍本身有着旧厂房、工业元素,整体力量老的很雄厚。很需要在旧的空间里借当代性去碰撞出新对话,产生新能量。于是有了红大堂、金书吧、蓝酒吧,钢板锈色餐厅……每个空间里都有种强烈的颜色,将艺术性做到极致,与无法大改的老房子形成对抗、达到平衡,变出生机,将记忆海马体内部增益成长期且更加有趣的层面。
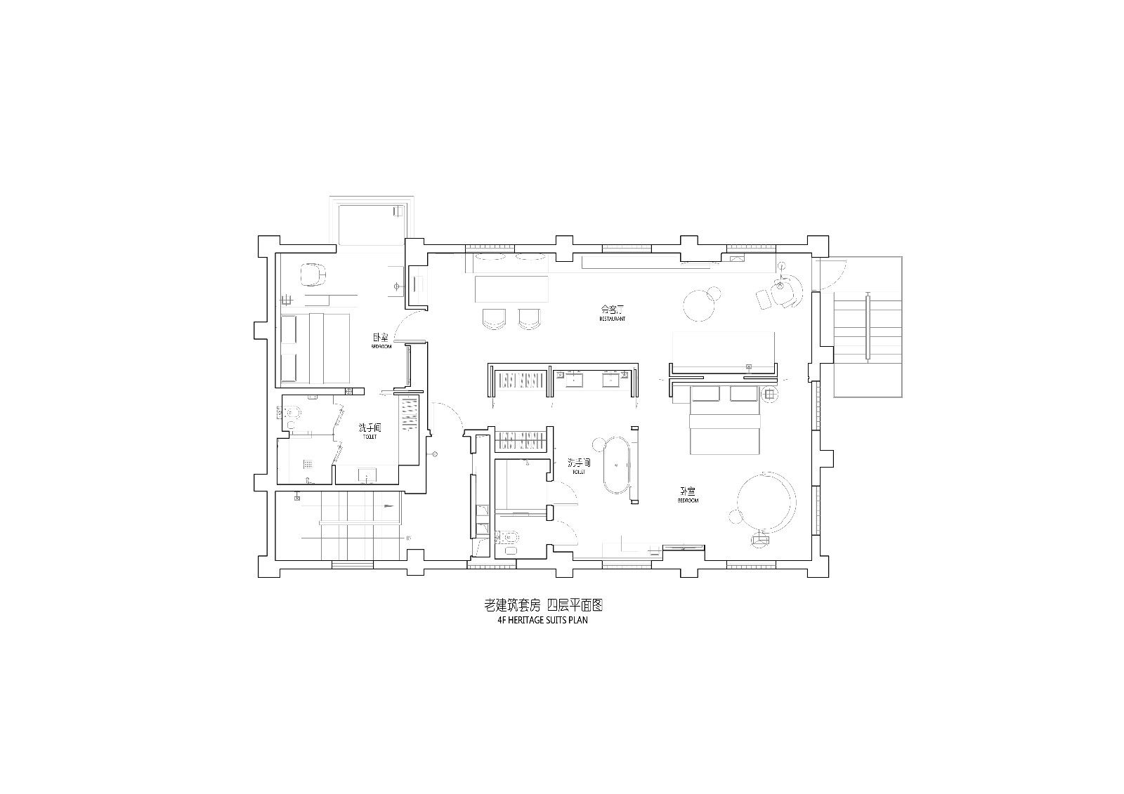
曲得合韵,老房子体验,新房子舒适。当然这更是在强调历史客房有种更深刻的体验,有着特定位置的悬窗和风景,有特殊营造出的气质和感情。新建筑中的房间内饰很柔和,整个空间气质很细腻温软,有种轻松爽朗的少女感。洗手间的浴缸有一面石头的墙,那些被切成不规则形状后再砌成的当地毛石,除了功用外还体现着度假性。床头有桂林山水图样的浮雕,很接地气。这种装饰性的渗透需要设计把控,不能少不能散,还不能腻。 大抵度假时的视线都是平铺及向上的,于是别墅中的天花很不同,墙上则极简的干净。内里有阳朔的麻绳,交织成不同的纹路;还有如中国画般的摄影,水墨的很清雅,其后另有玄机;再有当地的石材,处理的很呼应地域关系……在里或外都可以听雨看树闻香。舒适度和当代性的结合是基本要考虑的,空间的在地性的应用也是要考量的。我们将老糖厂窗户上的旧图案提取,把在当地随处可见、和阳朔路边马路牙子同根同祖的石材,运送到外地加工完了再运回来,从SPA铺到客房再到别墅,这个图案贯穿酒店各个区域。 其中散挂着的以糖厂为主线的画,是个几十年的家族故事,由艺术家刘传宏创作。接待大堂的三幅装置,回应桂林山水,再分别与老糖厂、新建筑对话,由青年艺术家吴蔚订制而成。还有书吧的冥想者,餐厅中分开两组三代五口攀岩、眺望相应的雕塑。还有各处的阳朔及老糖厂本身的历史照片……这些都在讲述老房子的历史故事,老建筑更新改造成公共区域应用的故事,新、老建筑相互对话的故事,还有其中的我们自己正在书写着的故事。艺术及艺术品代表着对文化的理解,这些收藏是可以近距离看细细品味的,代表了业主自身的价值观。同样的价值其实还隐藏在了许多细节上,例如在SPA门口的北魏年间雕塑,大堂吧低调挂着的当代艺术家江大海的绘画,餐厅里手工制的蚕丝灯罩等等,这些都体现着糖舍本身的定位。 糖舍里的材料很多都有生命。这种原生材料,会慢慢随着时间和空气慢慢变老,会有包浆,使得整个酒店也会慢慢地有了沉淀感。空间里的旧物,代表着历史、文化积累与雅致,在糖舍中则对应为手工打磨后的旧地板,拼接出的门面板等。设计过程中特意保留的工业感,使得空间里留有拙性,不过于精致。
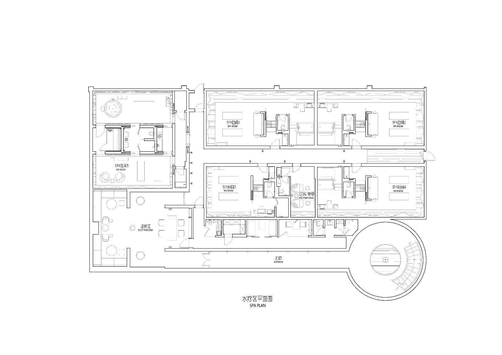
在那片用倒影连接新旧建筑的水面上,还伴着两旁的青山,整个糖舍看上去很美很轻盈,配着清早或傍晚时的天光和将熄或初亮的灯光,仿佛入画,呼吸时都会清澈许多。我们为这角度预留了最佳拍摄地,在那里看出去,刚好是老房子展开的画面。入了夜,那个水景里没有灯,水面上也没有灯,房间的灯点映在水面里,刘三姐的灯光一缕一缕亮在天空上。一边水面,一边草地,桂林的山被在半腰上打着光,整座整座地像飘在半空中,几近魔幻,任万物兴现。 前厅草地上有座微缩的山,如神龙摆尾,从大堂望出的那块恰好是龙头。那段时间选石头选到近乎魔怔,直至这一整块与我遇上,与糖舍遇上,石头也有了其自选的去处。单独的一块自己停留在了前厅的侧面,半边接雨长出青苔半边雄峻地,在前段时间还配着模特杜鹃上了次封面。后院按设想堆成的草坡上有各种适合的杂草,还有棵难得的连理树,一半桂花一半香樟,以后会成为婚礼进行的合适场地。最终,那种想要表达的气韵和周边的景致结合在了一起,老房子的周边山水的关系达到了种微妙的平衡。 场所可以支配事物,可以主导心境。我很喜欢工业遗迹条件下的朗姆酒吧。将不同形态但同样舒适的座椅融入独特的空间特性中,成为那些旧阶石的一体,于是内里的酒也容易激发预设的情感反应. SPA建筑外观改造于老的储藏空间,是个旧罐子,这应该是全场最呼应糖舍本身属性的地方。天气晴朗的时候,阶梯边上透着光,连接了数百个明亮的孔洞,各种光斑和阴影汇集一处,与水泥一同铺成了条旋转状通往胜境的路。内里可以体验到喀斯特地貌溶洞中的特殊性,也可以感知到光的能量,光的流动。像万神殿。
至今我还清晰记得每个阶段的模样,看着挖土种树起高楼,看着铺池陈列试营业,更清晰地记得开业第二天的洪水,那样一点点地将糖舍地下设施淹没,又是怀着怎样的不舍与期待等到其涅槃重开。以及我和建筑师董功那随着时间及事件的积累无比地深厚的交情,我们在木模混凝土、砌块砖实践成功现场的喜悦。还有与灯光公司Martin的通力合作,以及那些一起或单独调光的美好夜晚。这是一个很舒服的设计过程。 露天电影和芦苇是我儿时的记忆,于是在场地上实现了。泳池虽然因为安全系数的关系最终没有无边界,但在漓江的边上与青山白云亲近,也是极具记忆点和仪式感的。其与那片山水,与整个糖舍融合,将两旁的老水泥桁架做为了远景近景与层层递进的媒介,似不期然而然,呈现的很恰当。 琚宾于北京2018.01.17 鸟瞰
室内设计:琚宾/水平线空间设计
建筑设计:董功/直向建筑
老建筑改造设计:琚宾、董功
场地设计:董功、琚宾
景观设计:琚宾、董功建筑
设计团队:何斌、王楠、刘晨、朱方舟、王坚、徐孟尧、孔祥栋、刘智勇、李柏、张鹏、马小凯、赵亮亮
室内设计团队:韦金晶、韦耀程、聂红明、 张洛恺、罗钒予、张轩荣、周文骏
驻场建筑师:赵亮亮、张鹏/直向建筑,李映发、李希普/水平线空间设计机电顾问:林森、李海家、韦福良、何姣荣、高宇/深圳市嘉石机电工程设计有限公司
灯光顾问:Albert Martin Klaasen / Klaasen Lighting Design
拿到阳朔Alila糖舍的成片时,很想去感慨生命的美好,想歌一长曲,或浮一大白。一万六千平米的酒店在我眼里有着千百万般的景致,高入空中烟囱顶,低至池内铺底砖,从芦苇到连理树,到旧木板及门拼花,早先的老壁旧垣,如今的姹紫嫣红开遍,四年的时光和心血……这是一篇长故事,现作文以分享之。 我去过很多的度假酒店,看过很多的好风景。糖舍的地域完整性、丰富多样性,再加上独特的历史背景、感情因素,在我看来,其很是具有稀缺性。 最初介入的身份是设计师,继而为了实现设计诉求、控制设计话语权变成了小股东,再变成组织者重新联系了建筑、灯光、机电等合作方团队。四年的时间里,以投资者与设计师的双重角度参与始终,对整体的格局、广度、深度、成本,各种细节的把控都有了更加深刻的心得和收获。当然,这少不了大股东们的信任与支持。
糖舍本身有着旧厂房、工业元素,整体力量老的很雄厚。很需要在旧的空间里借当代性去碰撞出新对话,产生新能量。于是有了红大堂、金书吧、蓝酒吧,钢板锈色餐厅……每个空间里都有种强烈的颜色,将艺术性做到极致,与无法大改的老房子形成对抗、达到平衡,变出生机,将记忆海马体内部增益成长期且更加有趣的层面。
曲得合韵,老房子体验,新房子舒适。当然这更是在强调历史客房有种更深刻的体验,有着特定位置的悬窗和风景,有特殊营造出的气质和感情。新建筑中的房间内饰很柔和,整个空间气质很细腻温软,有种轻松爽朗的少女感。洗手间的浴缸有一面石头的墙,那些被切成不规则形状后再砌成的当地毛石,除了功用外还体现着度假性。床头有桂林山水图样的浮雕,很接地气。这种装饰性的渗透需要设计把控,不能少不能散,还不能腻。 大抵度假时的视线都是平铺及向上的,于是别墅中的天花很不同,墙上则极简的干净。内里有阳朔的麻绳,交织成不同的纹路;还有如中国画般的摄影,水墨的很清雅,其后另有玄机;再有当地的石材,处理的很呼应地域关系……在里或外都可以听雨看树闻香。舒适度和当代性的结合是基本要考虑的,空间的在地性的应用也是要考量的。我们将老糖厂窗户上的旧图案提取,把在当地随处可见、和阳朔路边马路牙子同根同祖的石材,运送到外地加工完了再运回来,从SPA铺到客房再到别墅,这个图案贯穿酒店各个区域。 其中散挂着的以糖厂为主线的画,是个几十年的家族故事,由艺术家刘传宏创作。接待大堂的三幅装置,回应桂林山水,再分别与老糖厂、新建筑对话,由青年艺术家吴蔚订制而成。还有书吧的冥想者,餐厅中分开两组三代五口攀岩、眺望相应的雕塑。还有各处的阳朔及老糖厂本身的历史照片……这些都在讲述老房子的历史故事,老建筑更新改造成公共区域应用的故事,新、老建筑相互对话的故事,还有其中的我们自己正在书写着的故事。艺术及艺术品代表着对文化的理解,这些收藏是可以近距离看细细品味的,代表了业主自身的价值观。同样的价值其实还隐藏在了许多细节上,例如在SPA门口的北魏年间雕塑,大堂吧低调挂着的当代艺术家江大海的绘画,餐厅里手工制的蚕丝灯罩等等,这些都体现着糖舍本身的定位。 糖舍里的材料很多都有生命。这种原生材料,会慢慢随着时间和空气慢慢变老,会有包浆,使得整个酒店也会慢慢地有了沉淀感。空间里的旧物,代表着历史、文化积累与雅致,在糖舍中则对应为手工打磨后的旧地板,拼接出的门面板等。设计过程中特意保留的工业感,使得空间里留有拙性,不过于精致。
在那片用倒影连接新旧建筑的水面上,还伴着两旁的青山,整个糖舍看上去很美很轻盈,配着清早或傍晚时的天光和将熄或初亮的灯光,仿佛入画,呼吸时都会清澈许多。我们为这角度预留了最佳拍摄地,在那里看出去,刚好是老房子展开的画面。入了夜,那个水景里没有灯,水面上也没有灯,房间的灯点映在水面里,刘三姐的灯光一缕一缕亮在天空上。一边水面,一边草地,桂林的山被在半腰上打着光,整座整座地像飘在半空中,几近魔幻,任万物兴现。 前厅草地上有座微缩的山,如神龙摆尾,从大堂望出的那块恰好是龙头。那段时间选石头选到近乎魔怔,直至这一整块与我遇上,与糖舍遇上,石头也有了其自选的去处。单独的一块自己停留在了前厅的侧面,半边接雨长出青苔半边雄峻地,在前段时间还配着模特杜鹃上了次封面。后院按设想堆成的草坡上有各种适合的杂草,还有棵难得的连理树,一半桂花一半香樟,以后会成为婚礼进行的合适场地。最终,那种想要表达的气韵和周边的景致结合在了一起,老房子的周边山水的关系达到了种微妙的平衡。 场所可以支配事物,可以主导心境。我很喜欢工业遗迹条件下的朗姆酒吧。将不同形态但同样舒适的座椅融入独特的空间特性中,成为那些旧阶石的一体,于是内里的酒也容易激发预设的情感反应. SPA建筑外观改造于老的储藏空间,是个旧罐子,这应该是全场最呼应糖舍本身属性的地方。天气晴朗的时候,阶梯边上透着光,连接了数百个明亮的孔洞,各种光斑和阴影汇集一处,与水泥一同铺成了条旋转状通往胜境的路。内里可以体验到喀斯特地貌溶洞中的特殊性,也可以感知到光的能量,光的流动。像万神殿。
至今我还清晰记得每个阶段的模样,看着挖土种树起高楼,看着铺池陈列试营业,更清晰地记得开业第二天的洪水,那样一点点地将糖舍地下设施淹没,又是怀着怎样的不舍与期待等到其涅槃重开。以及我和建筑师董功那随着时间及事件的积累无比地深厚的交情,我们在木模混凝土、砌块砖实践成功现场的喜悦。还有与灯光公司Martin的通力合作,以及那些一起或单独调光的美好夜晚。这是一个很舒服的设计过程。 露天电影和芦苇是我儿时的记忆,于是在场地上实现了。泳池虽然因为安全系数的关系最终没有无边界,但在漓江的边上与青山白云亲近,也是极具记忆点和仪式感的。其与那片山水,与整个糖舍融合,将两旁的老水泥桁架做为了远景近景与层层递进的媒介,似不期然而然,呈现的很恰当。 琚宾于北京2018.01.17 鸟瞰

