云南丽江,一座传统与现代、宁静与喧嚣混同并存的古城,蕴育出简雅精致且富创意的民宿圣地。在这星罗棋布的设计实践品中,丽镘·神米吉酒店是一处绝然遗世的特别存在,以现代水墨画风为再造空间作出最具诗意与新意的注解。
丽镘·神米吉酒店设计欣赏|亿端国际设计 - 1
丽镘·神米吉酒店设计欣赏|亿端国际设计 - 1 ×
酒店坐落在丽江古城区七一街八一下段74号,原建筑是一座民房院子,面积过小且布局不合理,难以实现设计价值。亿端对原建筑进行拆除并重新布局,将建筑与景观的形态悄然融入古城风貌中,废旧材料也被重新整理归类,为岁月尘封的古旧之物注入新的生命力。
丽镘·神米吉酒店设计欣赏|亿端国际设计 - 2
丽镘·神米吉酒店设计欣赏|亿端国际设计 - 2 ×
五栋建筑群围合在前院水景与后院小溪之间,青砖黛瓦在院落光影下释放驻留旅人步伐的磁力。休息区采用下沉式设计,浑圆的景窗将竹林绿意定格,以钢板为幕的瀑布潺潺淌过。一番曲径通幽后拾阶而上,经过十几米的丁步石水景长廊到达接待厅。倒影绰约犹如水墨山水画,时光也悠悠然慢了下来。
丽镘·神米吉酒店设计欣赏|亿端国际设计 - 6
丽镘·神米吉酒店设计欣赏|亿端国际设计 - 6 ×
接待厅的几十根黑色钢板盒子成为视觉焦点,这些钢板将原先的建筑承重柱奇妙隐藏,又可作为功能分区隔断,引人期待一场时空错置的秘境之旅。接待厅顶部由无数根竹签组成独特的装置艺术,接待台是一根长七米的整板一直连贯到茶室VIP区,以延展的张力和美感颠覆传统的前台模式。
丽镘·神米吉酒店设计欣赏|亿端国际设计 - 12
丽镘·神米吉酒店设计欣赏|亿端国际设计 - 12 ×
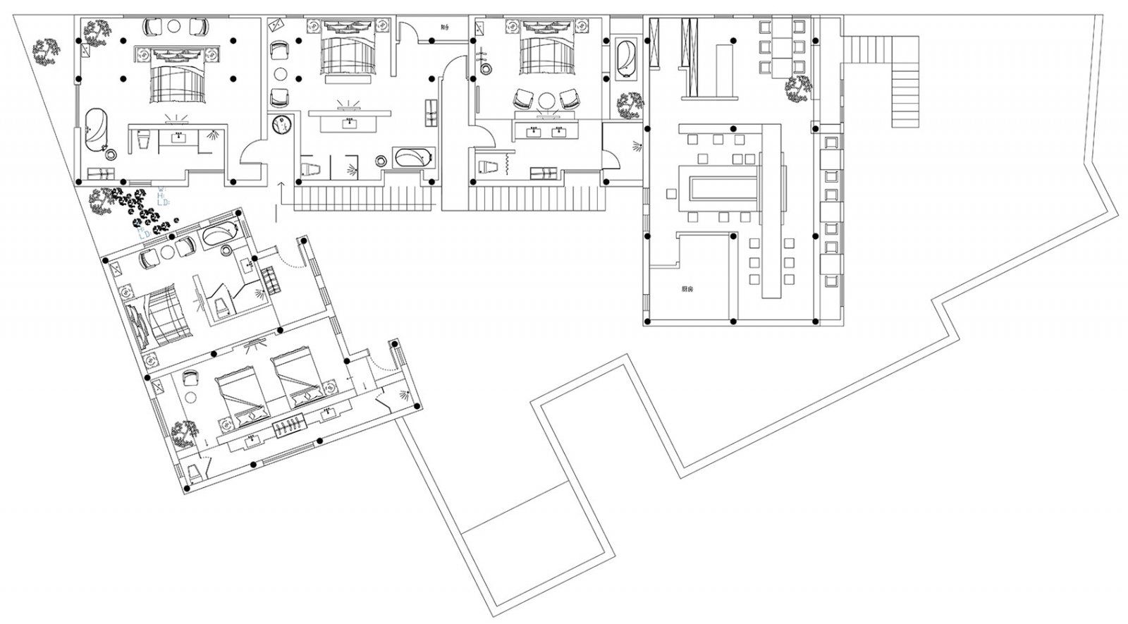
十间精品客房各具特色,尤其建筑靠水溪边的房型开辟了独立阳台,让天光云彩与室内无碍互动。房间铺陈简约古朴,所用多为原生态的材质和尽简的色彩,与墨色山水般的周遭文脉全然糅融。对于现代生活方式的考量却呈现在细节设计中,包括开放式的卫生间布局。
丽镘·神米吉酒店设计欣赏|亿端国际设计 - 16
丽镘·神米吉酒店设计欣赏|亿端国际设计 - 16 ×
精彩评论