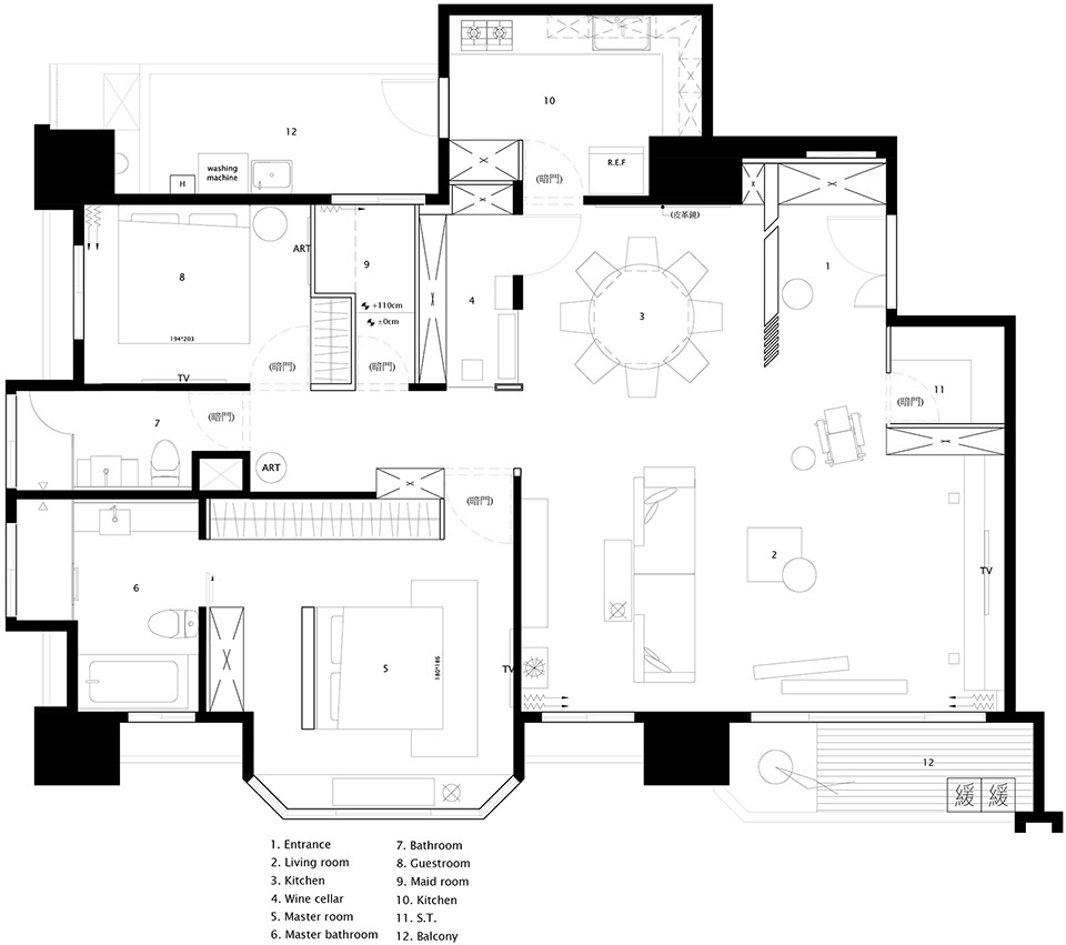
项目类型:家居别墅 设计风格:现代风格 设计色调:混搭色调 玮奕国际设计
如果您喜欢这个项目,也可看看这些项目:
跟随彩虹 基辅Underhub学校与联合办公设计欣赏
Emil Dervish 办公空间
,3,013平方英尺,2016年
在35㎡的空间里诉说纯净
黄齐正、黄小影 办公空间
,35平方米,
勇于创新 纽约玫瑰山联合办公设计欣赏
Rockwell Group 办公空间
,,2013年
成都世茂云湖新中式设计
元禾大千设计 办公空间
元禾大千设计,,
现代时尚独栋别墅设计欣赏
Atelier Tristan Auer 办公空间
Atelier Tristan Auer,,
南京法式混搭私人空间
花漾美作设计 办公空间
花漾美作设计,90平方米,
天津实地海棠雅著联排别墅样板间
黄全 办公空间
集艾设计,150㎡,2017年7月
西街映象咖啡馆设计欣赏
刘智铭 办公空间
刘智铭设计工作室,,
亚利桑那州ASU法学院设计欣赏
Ennead Architects&Jones Studio 办公空间
Ennead Architects&Jones Studio,,
印度金奈,私人住宅
Neelam Mehta 办公空间
Neelam Mehta,,2013
微信扫一扫