项目名称 | 高地星厨
设计机构 | 今古凤凰空间策划机构
主笔设计师 | 叶晖
设计团队 | 陈坚、林伟斌、陈雪贤
施工团队 | 万有引力
软装团队 | 凤栖梧桐
项目地点 | 广东省深圳市
项目面积 | 约1280m2
完工时间 | 2020年1月14日
主要材料 | 水泥基地坪、白色肌理漆、刷灰色水泥漆、仿旧木、氟碳面灰钢、玻璃砖
摄影师 | 欧阳云
初见项目是在秋天的一个清晨,步入项目就被周边的自然环境所吸引,颇有“东皋薄暮望,徙倚欲何依。树树皆 秋色,山山唯落晖”的气息。     融入自然的极简空间—高地星厨| - 0
融入自然的极简空间—高地星厨| - 0 ×
整个项目被茂密的树林还有零落的石头所围绕,伫立在山前,停驻凝望,似乎有一刻脱离了城市的喧嚣。我们想通过融合原有的自然环境,去 打造一个可以享受美食与各种社交聚会的场所。依山而建的空间里,更多的是去述说如何与自然共处。     融入自然的极简空间—高地星厨| - 4
融入自然的极简空间—高地星厨| - 4 ×
在自然里发现美的事与物,在日暮里思念的每个清晨,温和的气息弥漫着自然慷慨而来的生机阳光。当阳光打在山上的山石上,仅就着枝叶淡 影享受遮荫,靠拢相聚,以自然灵气阅读日夜和四季,泛泛的光影打在石头上,我们希望保留石头的归属感,超脱城市逐步的空间,让人得以 用舒适的吐纳节奏感受自然的变化。来自于自然,又归于自然。   融入自然的极简空间—高地星厨| - 6
融入自然的极简空间—高地星厨| - 6 ×
我们想让空间的结构与自然产物相互结合、合为一体。所以结构上尽量采用轻盈且富有张力的工字钢结构支撑,奉行现代主义建筑的精神: 「自由平面」与「流动空间」,简单的立面与精致的材质,创联每个空间的室内外关系。让人寄予自然之中,能享受自然赋予的时光。     融入自然的极简空间—高地星厨| - 8
融入自然的极简空间—高地星厨| - 8 ×
入门处思索的大白熊,如同匆忙而来的我们,思索人生太多的繁杂而希望寻找一处宁静。阵列排序的立体挂件表面,宛如山的自然起伏之势 。日照阳面的清晰轮廓和阴面的倒影,与天然黑山石打造的前台相互辉映。漫步的阶梯后,去往由盒子结构白色墙体组成的悠长通道,通往餐厅的包厢区与休闲活     融入自然的极简空间—高地星厨| - 10
融入自然的极简空间—高地星厨| - 10 ×
休闲活动区域充当餐厅一个过渡的大堂功能,可供客人放松等候,享受咖啡及下午茶的地方,同时预留空阔的区域能够举行大型的Party。空 间保留原有白色工字钢结构框架,围绕中庭的绿植与天然砾石的庭院,营造质朴自然的氛围。待到夜晚时分,通过中空的玻璃瞭望星空满天的 小星斗,享受美食与美酒,在山间享受人生的悠闲时光。     融入自然的极简空间—高地星厨| - 13
融入自然的极简空间—高地星厨| - 13 ×
各个不同布置的包厢,没有过于华丽的装饰,淡淡的、缓缓的米白色包揽大部分的空间格调。保留天窗引入自然的阳光,平日里,日光会缓缓 从钢板材质的肌理表面移动到另一方的沙发区,婆娑变换的光影不禁让人感叹自然本质的美意。火炉的火焰散发的温柔,把空间滋养出一种平 和静谧的气质,停下来体察其中藏有的细微美好。   融入自然的极简空间—高地星厨| - 15
融入自然的极简空间—高地星厨| - 15 ×
就餐区窗外绿意嫣然的树木围绕,在静谧的时光里享用美食,与三五知己好友谈天说地。打开露台的门窗,蝉鸣鸟叫的声音像是自然的乐曲, 续写着晚宴的序曲。好像无论外界如何繁杂,这里都是能让人获得心灵深处宁静与释然的地方。   融入自然的极简空间—高地星厨| - 19
融入自然的极简空间—高地星厨| - 19 ×
自然石材打造的洗手台,质朴的石材面并没有刻意去保持其完整。自然的美包容千变万化的不完美,它包含着充足的多样性,使我们的眼睛有极 大自由去选择、强调以及组织其元素,而且自然景观寓意深刻、情感刺激而又涵义丰富。   融入自然的极简空间—高地星厨| - 24
融入自然的极简空间—高地星厨| - 24 ×
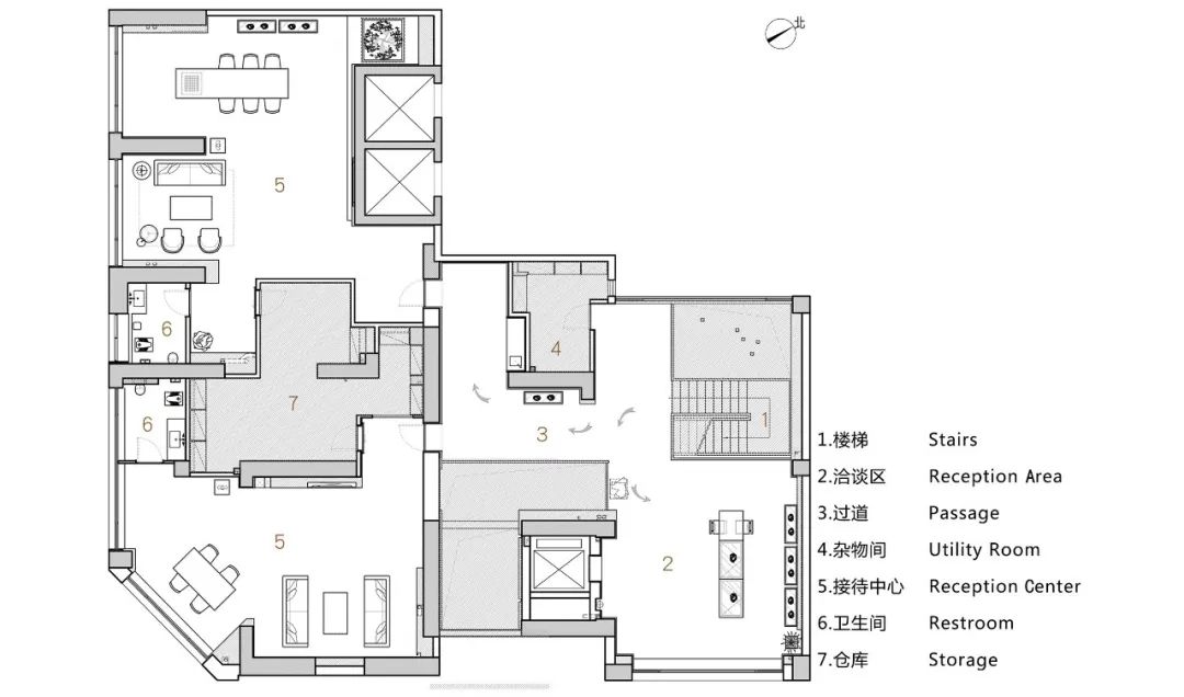
平面图     融入自然的极简空间—高地星厨| - 46
融入自然的极简空间—高地星厨| - 46 ×
平面图     融入自然的极简空间—高地星厨| - 48
融入自然的极简空间—高地星厨| - 48 ×
精彩评论

案例设计:叶晖