空间名称:MOYE木野民宿
空间地址:浙江省安吉县报福镇深溪村龙王庙自然村26号
设计公司:泛域设计
软装设计:天饰软装
建筑面积:1200平方米
设计年份:2019年
空间主材:混凝土自流平、混凝土涂料、玻璃砖、木地板、钢化玻璃、瓷砖、大理石、肌理漆
空间摄影:施峥
原址上有两座建筑,一座是一个古老的夯土结构,似乎经历了几十年的风雨,沧桑都暴露在旧墙砖上。另一座是农民的房子,还没有建成,只有基本的结构。
精美中彰显匠心,自然主义的民宿设计| - 0
精美中彰显匠心,自然主义的民宿设计| - 0 ×
因此,设计师对两侧建筑的功能进行规划,将新旧建筑与生活场景联系起来。一栋白色建筑的墙壁非常简洁干净,而另一栋建筑的表面则被刻意剥去,露出了夯土的粗糙质感。把新建筑漂浮在水面上,古老的建筑展现出坚强的基础和精神。
精美中彰显匠心,自然主义的民宿设计| - 2
精美中彰显匠心,自然主义的民宿设计| - 2 ×
这里的部分材料可以感受到生命,随着时间和空气变老,正是因为这份老使空间增添了不完美与朴实且不过于精致,让客人可以读到业主老王的故事。
精美中彰显匠心,自然主义的民宿设计| - 5
精美中彰显匠心,自然主义的民宿设计| - 5 ×
民宿的入口是从大楼后面穿过巨石小径,未看到水却可以听到水声层层渗入空间,入口处有设有一张供客人用的长凳。
精美中彰显匠心,自然主义的民宿设计| - 8
精美中彰显匠心,自然主义的民宿设计| - 8 ×
新建筑一楼的客厅,大落地玻璃引入的是泳池里水倒映的山景,池边水泥与白墙默然静立。我能想到为这片土地设计最好的状态就是安静的坐在沙发上,感受阳光洒入空间的那一份城市之外的自得与安逸。
精美中彰显匠心,自然主义的民宿设计| - 10
精美中彰显匠心,自然主义的民宿设计| - 10 ×
关于新老建筑,自然与人的共生关系,通过水作为媒介去关联彼此,用自然的手法完成自然的空间。当你游走或者休憩在空间的某个角落,会发现很多惊喜,通过行走与探索会发现空间为客人准备的惊喜。
精美中彰显匠心,自然主义的民宿设计| - 13
精美中彰显匠心,自然主义的民宿设计| - 13 ×
一楼在硬装和软装设计上有着明显的区分,但同时又在风格上形成统一,空间中的家具均可以方便变换位置,吧台也是特别设计,将两部分上下叠放,可形成一个陈列展台。
精美中彰显匠心,自然主义的民宿设计| - 17
精美中彰显匠心,自然主义的民宿设计| - 17 ×
每一间客房的窗外都是极富绿意的美景,在结构允许的范围内,在墙上、屋顶、茶室设置不同大小形状的窗户,让光线、景观通过不同的方式进入到室内。
精美中彰显匠心,自然主义的民宿设计| - 20
精美中彰显匠心,自然主义的民宿设计| - 20 ×
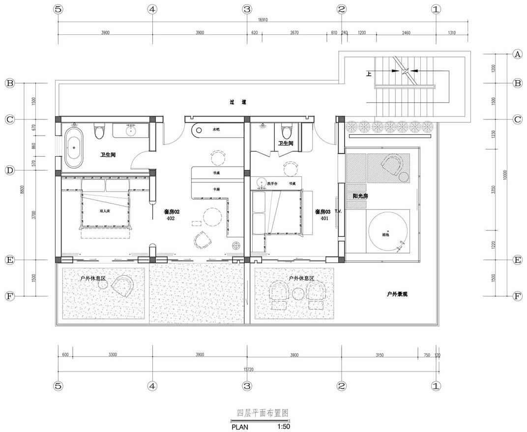
平、立面图
精美中彰显匠心,自然主义的民宿设计| - 22
精美中彰显匠心,自然主义的民宿设计| - 22 ×
精彩评论