项目名称:山石苑民宿
设计方:北京对角线设计
项目设计&完成年份:2018年6月 – 2019年3月
主创及设计团队:王兵 – 北京对角线设计工作室
规划设计:彭蓉
建筑设计:王兵、彭蓉、吕志威
建筑施工图:王辉峰
室内设计:王兵、吕志威、房栋梁、黄旭
建筑面积:5200㎡
摄影版权:玉珠
民宿周围是自然蜿蜒的地形,设计很好地结合了周围环境和现代建筑元素。
质朴高级的民宿设计,堪比精品酒店!| - 0
质朴高级的民宿设计,堪比精品酒店!| - 0 ×
山石苑使用中轴线定位建筑群主体方位,将主要建筑物部署在由北向南延伸的中轴线上,左右取得均衡对称,再加上高低起伏变化,以及近水远山的自然环境,构建出一个在空间布局上最大限度地突出“环岛游”的民宿理念。
▼地形分析图,将主要建筑物部署在由北向南延伸的中轴线上
质朴高级的民宿设计,堪比精品酒店!| - 1
质朴高级的民宿设计,堪比精品酒店!| - 1 ×
▼民宿外观局部,左右均衡对称
质朴高级的民宿设计,堪比精品酒店!| - 2
质朴高级的民宿设计,堪比精品酒店!| - 2 ×
▼民宿外观局部,结合近水远山的自然环境
质朴高级的民宿设计,堪比精品酒店!| - 3
质朴高级的民宿设计,堪比精品酒店!| - 3 ×
在设计的过程中,设计师充分利用了阳光与墙体的空间关系,强化了外立面的体块感,用白色反应自然的色彩变化,始之于环境对话,创造出中性、纯粹的空间体验。
质朴高级的民宿设计,堪比精品酒店!| - 5
质朴高级的民宿设计,堪比精品酒店!| - 5 ×
▼建筑外观局部,用白色反应自然的色彩变化
质朴高级的民宿设计,堪比精品酒店!| - 7
质朴高级的民宿设计,堪比精品酒店!| - 7 ×
建筑群体中借用方圆智慧,打破传统建筑的局限性,让空间富有更多层次变化,设计师巧妙运用圆洞结构,加入景观元素,为雅净的建筑空间添加了一份生机。
质朴高级的民宿设计,堪比精品酒店!| - 8
质朴高级的民宿设计,堪比精品酒店!| - 8 ×
▼建筑中的“方圆”
质朴高级的民宿设计,堪比精品酒店!| - 10
质朴高级的民宿设计,堪比精品酒店!| - 10 ×
▼透过圆洞看建筑体量,圆洞在方形墙面上投下阴影
质朴高级的民宿设计,堪比精品酒店!| - 11
质朴高级的民宿设计,堪比精品酒店!| - 11 ×
▼透过圆洞看景观
质朴高级的民宿设计,堪比精品酒店!| - 13
质朴高级的民宿设计,堪比精品酒店!| - 13 ×
设计师作为空间“造梦者”,与光明、温度、质地和结构一同工作,在无形中探寻有形,从瞬间寻求永恒。
质朴高级的民宿设计,堪比精品酒店!| - 15
质朴高级的民宿设计,堪比精品酒店!| - 15 ×
充分利用“近水远山”的景观资源。在建筑中把观景面分散给予主要功能区及客房,14间客房全部是面向水面的景观房。屋顶露台也提供传统体验感观,可以无遮挡地远眺水景,绿植,远山,形成远近丰富的景观层次。
质朴高级的民宿设计,堪比精品酒店!| - 17
质朴高级的民宿设计,堪比精品酒店!| - 17 ×
餐厅建筑临湖,外立面使用通透玻璃幕墙筑成,拉近“人”与“景”之间的空间对话。
质朴高级的民宿设计,堪比精品酒店!| - 18
质朴高级的民宿设计,堪比精品酒店!| - 18 ×
▼餐厅,白色外墙上设置横向的带形长窗
质朴高级的民宿设计,堪比精品酒店!| - 19
质朴高级的民宿设计,堪比精品酒店!| - 19 ×
餐厅弧形窗洞的旋转设计似一面镜子,将室内的生活区域与室外的街道环境分隔开来,为设计增添了一种奇异的触感和视觉效果,室内入口也置入圆形元素,与吧台成为一体,室内外形式更加统一和谐。
▼餐厅立面上的旋转弧形窗洞 质朴高级的民宿设计,堪比精品酒店!| - 21
质朴高级的民宿设计,堪比精品酒店!| - 21 ×
▼餐厅入口景观
质朴高级的民宿设计,堪比精品酒店!| - 23
质朴高级的民宿设计,堪比精品酒店!| - 23 ×
▼弧形窗洞采用旋转设计,透过弧形窗户看入口景观
质朴高级的民宿设计,堪比精品酒店!| - 24
质朴高级的民宿设计,堪比精品酒店!| - 24 ×
傍晚时分的餐厅,通透的玻璃幕墙拉近了“人”与“景”之间的空间对话
质朴高级的民宿设计,堪比精品酒店!| - 26
质朴高级的民宿设计,堪比精品酒店!| - 26 ×
室内沿用室外建筑手法来展现电视背景墙以及床头背景墙的立面关系。整体空间局部使用浅灰木材,与家具的大地色调相得益彰。独立的套房都配备室外阳台让客人尽情欣赏周围的自然景观。
▼傍晚时分的民宿 质朴高级的民宿设计,堪比精品酒店!| - 28
质朴高级的民宿设计,堪比精品酒店!| - 28 ×
▼空间细节
质朴高级的民宿设计,堪比精品酒店!| - 32
质朴高级的民宿设计,堪比精品酒店!| - 32 ×
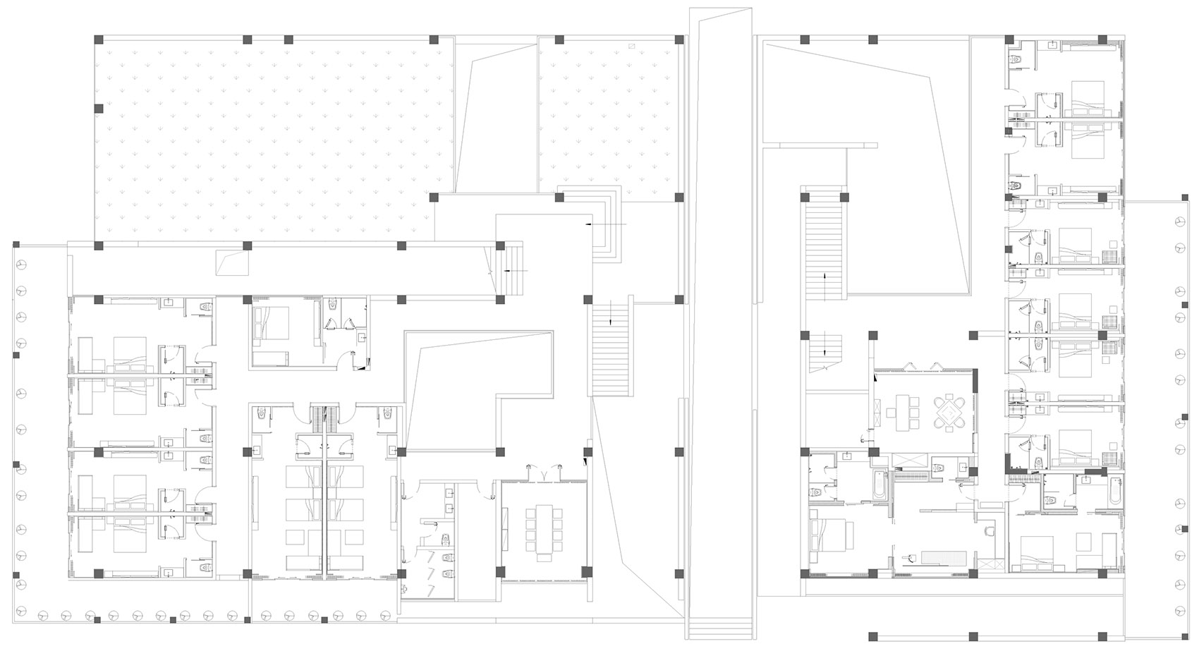
▼一层平面图
质朴高级的民宿设计,堪比精品酒店!| - 36
质朴高级的民宿设计,堪比精品酒店!| - 36 ×
质朴高级的民宿设计,堪比精品酒店!| - 37 ▼二层平面图
质朴高级的民宿设计,堪比精品酒店!| - 37 ×
精彩评论

设计公司:对角线设计