建筑师:上海空崆建筑设计事务所

地址:滨江保利•时光里,徐汇区,上海,中国

主创建筑师:甘泉

设计团队:乐丰,狄佩均

其他参与者:rebakery studio

建筑面积:280.0 m2

项目年份:2018

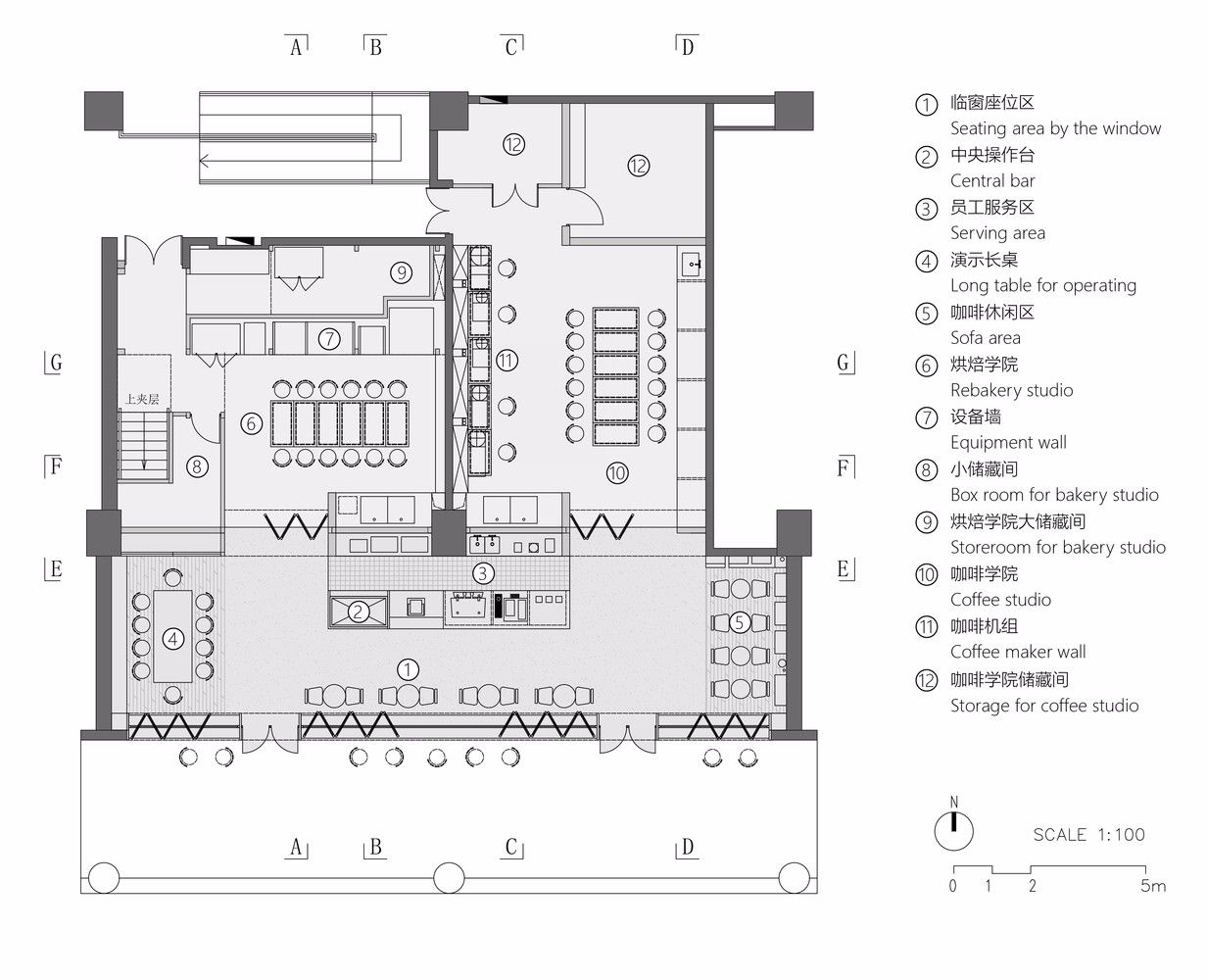
来自建筑师。REBAKERY STUDIO+MQ COFFEE 集合店的项目位于徐汇滨江“保利·时光里”商场B1层,最初的招商是两家独立的店铺,店铺各为小面宽与大进深,且层高均较高,超出人的尺度,并对走廊空间形成一定的压迫感。
Rebakery Studio +MQ Coffee 集合店|上海空崆建筑设计事务所 - 0
Rebakery Studio +MQ Coffee 集合店|上海空崆建筑设计事务所 - 0 ×
由于烘焙教室的业主与咖啡教室的业主之前就认识,并有进一步合作的意愿,随着多方的沟通深入,我们提出空间改善方案:两家店铺各让出前端三分之一的空间作为合营空间,后三分之二的空间仍然保持独立运营,这样整个合营空间的长面,就成为面向走廊的展示面和吸引顾客光顾的进出界面,而且我们希望这个进出界面可以根据需要选择封闭,半开启和全开启,当半开启和全开启的时候,合营空间就变成了线型走廊空间中的一个半公共(Semi-public) 的放大节点。成为吸引人驻足休息的场所。
Rebakery Studio +MQ Coffee 集合店|上海空崆建筑设计事务所 - 2
Rebakery Studio +MQ Coffee 集合店|上海空崆建筑设计事务所 - 2 ×
为实现这种半公共性(Semi-public), 我们对剖面和立面进行研究并做出了一系列调整,通过降低原有立面门头的高度,拉近门窗高度与人的距离。将原本比较生硬,缺乏通透感的深色落地玻璃幕墙换成可以水平全打开的透明玻璃折叠窗,并设置0.6米高的矮窗台,这样在好天气时,不仅可以将窗户全打开,实现室内外空间的连接通透,让商家与顾客人可以更好地互动,客人还能坐在矮窗台,这样,原本简单生硬的界面被转换成了具有纵深深度和人际互动的活动空间。
Rebakery Studio +MQ Coffee 集合店|上海空崆建筑设计事务所 - 5
Rebakery Studio +MQ Coffee 集合店|上海空崆建筑设计事务所 - 5 ×
对平面布局乃至经营模式的调整,以及立面上的大胆改动,对业主、商场物业、施工方来讲都是全新的,具有挑战性的工作。幸运的是所有人都在大方向上达成了共识,虽然在预算、材料、细节、色彩等方面有过调整,但最终完成的空间,基本保持了最初设计的格局、结构以及界面通透性。
Rebakery Studio +MQ Coffee 集合店|上海空崆建筑设计事务所 - 8
Rebakery Studio +MQ Coffee 集合店|上海空崆建筑设计事务所 - 8 ×
精彩评论