设计名称:西安浐灞里城柳岸十里
项目地址:西安浐灞生态区
设计机构:柏年印象
施工单位:柏年印象
摄影拍摄:张骑麟
设计面积:约600m²
设计时间:2019年
设计说明:时光的流转更迭,传承历史人文的记忆,触碰当代生活的温度 西安里城浐灞柳岸十里售楼处 | 柏年印象| - 0
西安里城浐灞柳岸十里售楼处 | 柏年印象| - 0 ×
 从千年古城到现代都市西安沉淀太多的人文记忆,项目落址西安浐灞生态区穿城而过的浐河、灞河牵动着它的历史脉络 西安里城浐灞柳岸十里售楼处 | 柏年印象| - 2
西安里城浐灞柳岸十里售楼处 | 柏年印象| - 2 ×
 借由当代、内敛的东方美学语言在新旧糅合与南北文化碰撞中赋予城市气质和人文底蕴新认知,归觅从容优雅的当代生活 西安里城浐灞柳岸十里售楼处 | 柏年印象| - 4
西安里城浐灞柳岸十里售楼处 | 柏年印象| - 4 ×
 以水为引西北民风融入江南的柔美,减去一些附带价值留下的是水面波澜几微宁静空明、温馨从容 西安里城浐灞柳岸十里售楼处 | 柏年印象| - 6
西安里城浐灞柳岸十里售楼处 | 柏年印象| - 6 ×
 饱含东方韵味的素墙,月门是空间使者的别有用心撩拨起到访者一探究竟的兴致 西安里城浐灞柳岸十里售楼处 | 柏年印象| - 9
西安里城浐灞柳岸十里售楼处 | 柏年印象| - 9 ×
 艺术之门打开人文之境的时光对话,藤编、案几、挂画等东方元素细细堆叠,以香槟金、赭石红反差点缀,一切关于时间的印记,均在淡雅内敛的木、灰色调中被沟通 西安里城浐灞柳岸十里售楼处 | 柏年印象| - 12
西安里城浐灞柳岸十里售楼处 | 柏年印象| - 12 ×
 古韵木梁、城门旧墙收集古都的旧时光,厚重的椅子与现代麻质沙发碰撞,试图在历史与当代间,探寻到更适合的空间形态体验点 西安里城浐灞柳岸十里售楼处 | 柏年印象| - 15
西安里城浐灞柳岸十里售楼处 | 柏年印象| - 15 ×
 生活不该只有城市的律动,更应有诗文之洗礼,择一处清净,闲读一段时光,唤醒内心深处的依恋与回归 西安里城浐灞柳岸十里售楼处 | 柏年印象| - 18
西安里城浐灞柳岸十里售楼处 | 柏年印象| - 18 ×
 木格栅的光影曳动落地灯的柔雅,隐射于木质屏风围合的沙发椅上,让洽谈和放松更自在舒雅 西安里城浐灞柳岸十里售楼处 | 柏年印象| - 20
西安里城浐灞柳岸十里售楼处 | 柏年印象| - 20 ×
 留白,是给生活留下想象的空间,一株根雕艺术盆景跳脱界限,唤醒人们驻足放空,静思酝酿,再优雅漫步将时光穿梭 西安里城浐灞柳岸十里售楼处 | 柏年印象| - 23
西安里城浐灞柳岸十里售楼处 | 柏年印象| - 23 ×
 灞水的水滴化为玻璃艺术灯具,自然光穿过古都印记的建筑空间,斑驳在老砖墙和点点水滴上,喧嚣的生活瞬间回归宁静和初美 西安里城浐灞柳岸十里售楼处 | 柏年印象| - 25
西安里城浐灞柳岸十里售楼处 | 柏年印象| - 25 ×
 用时光印记空间,留下传统与当代并行的痕迹,又不失国际都市气息,在有限空间内,看见生活无限可能 西安里城浐灞柳岸十里售楼处 | 柏年印象| - 26
西安里城浐灞柳岸十里售楼处 | 柏年印象| - 26 ×
 设计所探寻的,远不止是色彩、线条、材质等具象的组合,更是以回归内心的宁静优雅,去突破地域、人文、艺术的界限,探索当代诗意的生活方式 西安里城浐灞柳岸十里售楼处 | 柏年印象| - 27
西安里城浐灞柳岸十里售楼处 | 柏年印象| - 27 ×
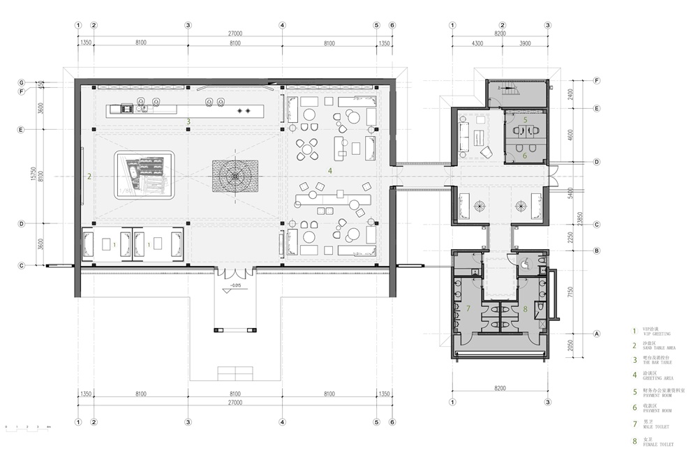
西安里城浐灞柳岸十里售楼处 | 柏年印象| - 28  平面图
西安里城浐灞柳岸十里售楼处 | 柏年印象| - 28 ×
精彩评论

设计公司:柏年印象