逍遥自在
720㎡中式别墅,有庭有院,绝美雅致 | - 0
720㎡中式别墅,有庭有院,绝美雅致 | - 0 ×
纵观世界,已经很久没有被具体的物质生活所感动了。追求平和、安宁的精神,探索“清凉世界”,封闭的庭院远离城市的喧嚣,被认为是可行的、可移动的和可居住的。
720㎡中式别墅,有庭有院,绝美雅致 | - 1
720㎡中式别墅,有庭有院,绝美雅致 | - 1 ×
“茶”作为家庭、文化和生活的开始,前院与室内相互作用,可以赤脚到草坪,其次是景观水池,直接通地下室采光的屋顶。
720㎡中式别墅,有庭有院,绝美雅致 | - 2
720㎡中式别墅,有庭有院,绝美雅致 | - 2 ×
波光粼粼的水景使这个空间充满活力。空间通过旋转楼梯上来是悬挑、玻璃通透的“自在场头”。玻璃顶部的涟漪使空间更加有趣和互动。
720㎡中式别墅,有庭有院,绝美雅致 | - 3
720㎡中式别墅,有庭有院,绝美雅致 | - 3 ×
入口景色生动,门廊与偏厅相连,光影的随意流动增添了自然情趣和自制力。
720㎡中式别墅,有庭有院,绝美雅致 | - 5
720㎡中式别墅,有庭有院,绝美雅致 | - 5 ×
每一个空间的过渡都可以看作是一个塑造独特景观的机会,比如创造一幅绘画,它在室内和室外之间构建了一种微妙的自然关系。
720㎡中式别墅,有庭有院,绝美雅致 | - 10
720㎡中式别墅,有庭有院,绝美雅致 | - 10 ×
部分殿堂雅集,穿越时空的距离,倾心于精神对话的痕迹,隐藏差异;接人待物,都是真性情。
720㎡中式别墅,有庭有院,绝美雅致 | - 13
720㎡中式别墅,有庭有院,绝美雅致 | - 13 ×
三层主卧区,通过巧妙运用“质”的材料,使空间呈现出“纯美、简约、轻松”的气质。
720㎡中式别墅,有庭有院,绝美雅致 | - 18
720㎡中式别墅,有庭有院,绝美雅致 | - 18 ×
通过悬挑的玻璃走廊,遥老师在这里练习“荷花园”的花道,经常在这里与朋友们见面,品茶赏花,无论是春天和秋天,还是花蕾和枯枝,都是从形到神的自由之美。他在花道中感受到自然和生命的变化,在时间的流动中保持着平静和淡漠。
720㎡中式别墅,有庭有院,绝美雅致 | - 20
720㎡中式别墅,有庭有院,绝美雅致 | - 20 ×
地下二层是艺术工作区,一侧悬挑的“孤鸟”之巢造型茶室外观,“与我无关”的个性存在,符合心情。思考,孤独,想象,“牵扯事物”,随意地做了一些创作而已。
项目图纸
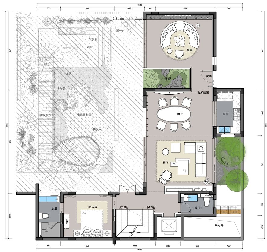
720㎡中式别墅,有庭有院,绝美雅致 | - 23
720㎡中式别墅,有庭有院,绝美雅致 | - 23 ×
△一层平面图
720㎡中式别墅,有庭有院,绝美雅致 | - 24
720㎡中式别墅,有庭有院,绝美雅致 | - 24 ×
△二层平面图
720㎡中式别墅,有庭有院,绝美雅致 | - 25
720㎡中式别墅,有庭有院,绝美雅致 | - 25 ×
△三层平面图
720㎡中式别墅,有庭有院,绝美雅致 | - 26
720㎡中式别墅,有庭有院,绝美雅致 | - 26 ×
720㎡中式别墅,有庭有院,绝美雅致 | - 27 △负二层平面图
720㎡中式别墅,有庭有院,绝美雅致 | - 27 ×
精彩评论
大厅的沙发哪有得卖
大橡回复:请咨询在线客服!

案例设计:韩松