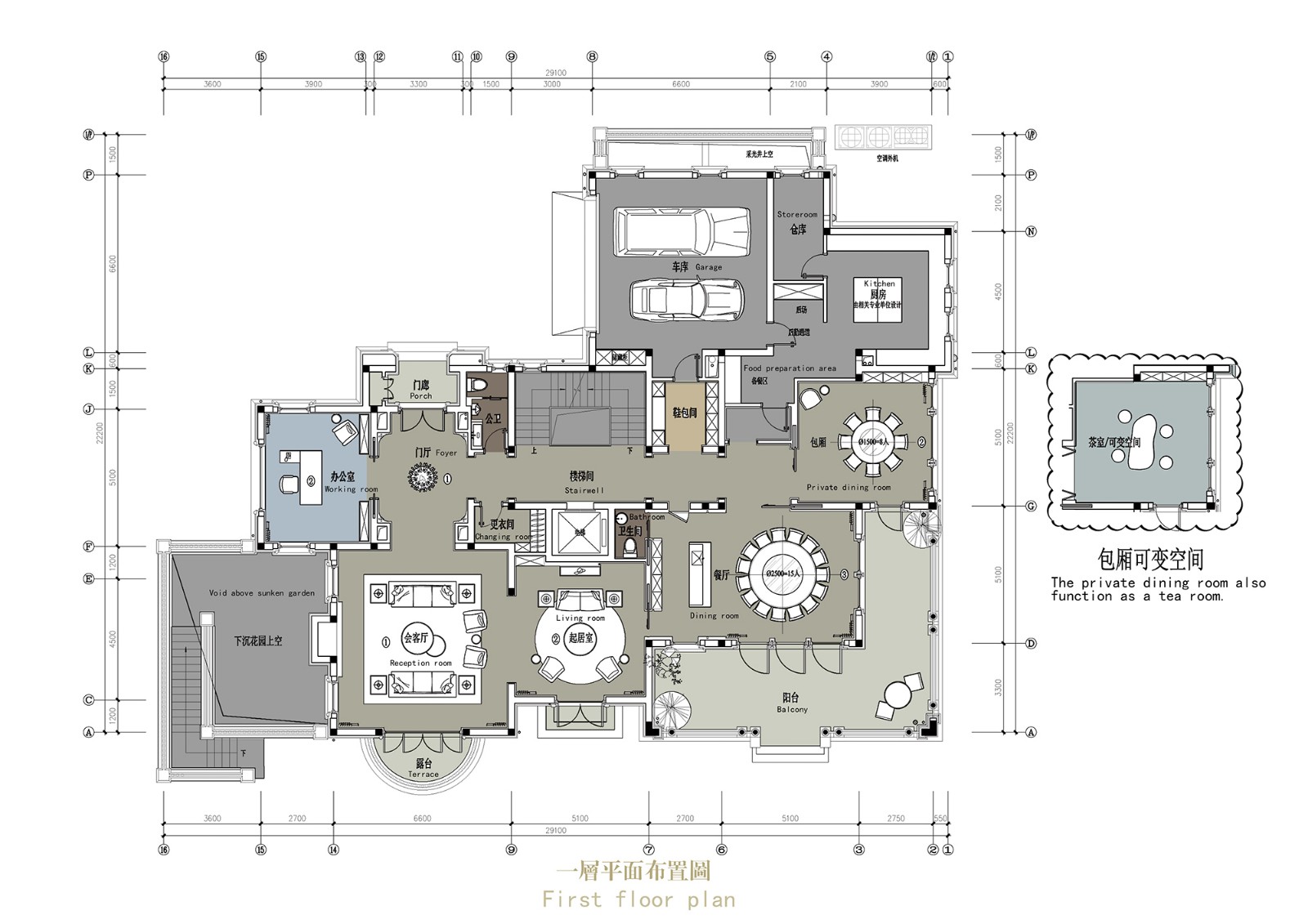
嘉华苏州运河与岸雅奢生活馆紧邻稀有的水畔,以唯美、优雅的生活空间,体现了人们高雅的生活方式的长期追求。
美学生活馆:艺术观感下的人文空间| - 1
美学生活馆:艺术观感下的人文空间| - 1 ×
整个生活大厅充满了书香,在水磨石与木纹的结合下,显得柔和、典雅、和谐、充满细节,呈现出一种特殊的质感。
美学生活馆:艺术观感下的人文空间| - 3
美学生活馆:艺术观感下的人文空间| - 3 ×
水吧与沙盘区
水吧台的家具来自丹麦品牌muuto,具有斯堪的纳维亚风格。上面的水滴吊灯打破了原有的结构,显得清新独特。不规则和错位的沙盘位于水吧台后面,顶部的ALEXANDER CALDER动态雕塑赋予了空间一种灵活的分层感。
美学生活馆:艺术观感下的人文空间| - 6
美学生活馆:艺术观感下的人文空间| - 6 ×
下沉区书吧
透过整面书柜,是用于洽谈的下沉区书吧。半包围区域以柔和的木质为基调,环绕着来自TASCHEN出版社的读物,星空顶的设计将空间从单调的纹理中抽离出来,显得轻巧而生动,给阅读与洽谈增添一丝活跃的气氛。
美学生活馆:艺术观感下的人文空间| - 9
美学生活馆:艺术观感下的人文空间| - 9 ×
儿童活动区
沙盘区的另一边是儿童娱乐活动室。在弧形趣味书墙模式下,意大利家具品牌me TOO与乐Lego相结合,童趣十足又不失光彩。
美学生活馆:艺术观感下的人文空间| - 12
美学生活馆:艺术观感下的人文空间| - 12 ×
共享厨房
进入二楼,您可以看到温暖透明的厨房,长而开放的操作平台,便于烘烤和沟通,使整个空间互动生动。半透明墙面上的女性形象涂鸦充满活力,张扬而主题突出,线条简洁,配以花朵装饰,给当代女性一种全面的诠释和表达。
美学生活馆:艺术观感下的人文空间| - 15
美学生活馆:艺术观感下的人文空间| - 15 ×
野兽派花园
户外,一派生动活泼的景象是野兽派园林的展示。这个半开放的空间由遮阳伞和纱帘围成,户外沙发套组的后面是一整面花草墙。和三五好友一起喝下午茶聊天,既优雅又清爽。
美学生活馆:艺术观感下的人文空间| - 17
美学生活馆:艺术观感下的人文空间| - 17 ×
私人影院
私家影院以墨蓝色为基调,让人心旷神怡,金属线条和镜子将墙壁分割和塑造。Tom Dixon和B&B的装饰为空间配置,以增强电影院的先进感和私密性。
美学生活馆:艺术观感下的人文空间| - 18
美学生活馆:艺术观感下的人文空间| - 18 ×
卫生间
男女厕所使用不同颜色。大面积粉色构成了女厕和更衣室的可爱氛围,墙上的霓虹灯个性前卫;土耳其蓝是男厕的主色调,几何图形丰富了空间结构感。卫生间是一套完整的TOM DIXON洗漱用品,体现了生活厅的品质。
运河与岸雅奢生活馆,以温和的语境诉说着空间的调性,以功能性完善的规划整合着空间的配置,将苏州运河缓缓流淌的人文情怀温蕴地转达而出,为生活作出了完美诠释。
美学生活馆:艺术观感下的人文空间| - 20
美学生活馆:艺术观感下的人文空间| - 20 ×
精彩评论

案例设计:叶飞

设计公司:GFD广飞设计