这座房子的主人希望除了基本的居住空间之外,还能够拥有一个可以被用作画廊的空间。基于这一要求,建筑师在建筑中置入了一条走道,将朝向街道的入口与内部的画廊及居住空间连接起来。
▼建筑外观
以“框架”构建起来的空间| - 0
以“框架”构建起来的空间| - 0 ×
这条走道定义出了与建筑后方相连的庭院空间,为建筑的外观赋予了纵深感。同时,作为半户外的空间,它还起到了连接画廊和居住空间的作用,为日常生活赋予了更多可能性。
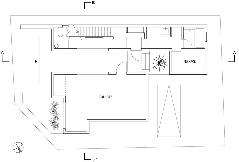
▼一层平面图
以“框架”构建起来的空间| - 1
以“框架”构建起来的空间| - 1 ×
▼走道为建筑的外观赋予了纵深感
以“框架”构建起来的空间| - 2
以“框架”构建起来的空间| - 2 ×
▼半户外的空间
以“框架”构建起来的空间| - 3
以“框架”构建起来的空间| - 3 ×
虽然室内空间彼此分离且独立,但画框般的窗户为每个空间赋予了连续的视线,使家庭成员能感受到彼此的气场。
▼从走道望向庭院
以“框架”构建起来的空间| - 4
以“框架”构建起来的空间| - 4 ×
▼画框般的窗户带来连续的视线
以“框架”构建起来的空间| - 5
以“框架”构建起来的空间| - 5 ×
▼画廊空间
以“框架”构建起来的空间| - 6
以“框架”构建起来的空间| - 6 ×
二层空间包含了起居室、储物间、书架和两间卧室,并通过微妙的颜色和形式变化相互区别开来,形成彼此联系又不过于亲密的感觉。
▼二层平面图
以“框架”构建起来的空间| - 8
以“框架”构建起来的空间| - 8 ×
▼起居室
以“框架”构建起来的空间| - 9
以“框架”构建起来的空间| - 9 ×
▼餐厅和储物间
以“框架”构建起来的空间| - 10
以“框架”构建起来的空间| - 10 ×
▼储物间细部
以“框架”构建起来的空间| - 11
以“框架”构建起来的空间| - 11 ×
▼儿童房
以“框架”构建起来的空间| - 12
以“框架”构建起来的空间| - 12 ×
住宅中所有的空间,包括半户外走道、画廊和起居空间,均是借助“框架”这一元素而构建起来的,并且彼此形成了丰富而流畅的关联。
▼从走廊望向起居室
以“框架”构建起来的空间| - 13
以“框架”构建起来的空间| - 13 ×
以“框架”构建起来的空间| - 14 ▼立面图
以“框架”构建起来的空间| - 14 ×
精彩评论