项目名称:大理古城既下山酒店

建筑师:赵扬

建筑工作室设计团队:赵扬,武州,商培根

室内软装设计施工团队:蔡旭,赖国平清水混凝土

施工顾问:杜清水营造土建

施工:大理古城赵小虎团队

项目地点:中国,云南省,大理古城

总建筑面积:540 平方米客户:行李旅宿酒店集团摄影:雷坛坛,王鹏飞

类型:休闲娱乐酒店材料:木材、混凝土

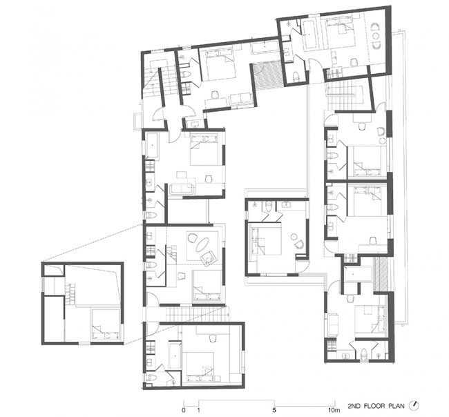
基地位于大理古城叶榆路和人民路交口的南侧,由两户相邻的宅基地组成。基地北、西、南三面都被邻宅紧紧包裹,基地东侧面朝道路。任务书要求在这块390平方米的用地上建设一个14间客房的精品酒店和一个面对公众开放的咖啡馆。 ▼酒店入口立面
大理古城既下山酒店设计欣赏|赵扬 - 0
大理古城既下山酒店设计欣赏|赵扬 - 0 ×
试试搜相似的模型、案例 ▼主入口
大理古城既下山酒店设计欣赏|赵扬 - 1
大理古城既下山酒店设计欣赏|赵扬 - 1 ×
在这个没有外部景观资源的场地上设计酒店,一切体验和氛围只能从内部争取。我们把这个酒店的体量分解为八个似连非连的“小独栋”来围合出一前一后两进庭院。客房围绕庭院布置,庭院既是花园景观,也同时承担了通往客房和楼梯间的动线。咖啡厅因为要对外经营,就把它安排在临街的东侧。 ▼从门厅看向前庭
大理古城既下山酒店设计欣赏|赵扬 - 2
大理古城既下山酒店设计欣赏|赵扬 - 2 ×
▼前庭
大理古城既下山酒店设计欣赏|赵扬 - 3
大理古城既下山酒店设计欣赏|赵扬 - 3 ×
位于前后庭院之间的茶室空间完全用玻璃来限定,因此庭院中随处可以感受到贯通南北的空间深度,而茶室的存在又使这个贯通的空间有了阴阳起伏。透明性还体现在东西向度。咖啡厅东西两侧的立面都是玻璃窗扇,可以完全打开。从街道上看,这个酒店并没有一个突出的建筑造型,倒是更像绿树掩映下的一个舞台台口。透过咖啡厅的室内,还可以瞥见前庭清香木的树冠而略窥酒店之堂奥。 ▼从前庭看向通往后庭的窄巷
大理古城既下山酒店设计欣赏|赵扬 - 5
大理古城既下山酒店设计欣赏|赵扬 - 5 ×
▼从窄巷透过茶室看向前庭
大理古城既下山酒店设计欣赏|赵扬 - 6
大理古城既下山酒店设计欣赏|赵扬 - 6 ×
▼茶室前庭视野
大理古城既下山酒店设计欣赏|赵扬 - 7
大理古城既下山酒店设计欣赏|赵扬 - 7 ×
▼茶室后庭视野
大理古城既下山酒店设计欣赏|赵扬 - 8
大理古城既下山酒店设计欣赏|赵扬 - 8 ×
▼从后庭南端看向茶室和前庭
大理古城既下山酒店设计欣赏|赵扬 - 9
大理古城既下山酒店设计欣赏|赵扬 - 9 ×
▼后庭
大理古城既下山酒店设计欣赏|赵扬 - 10
大理古城既下山酒店设计欣赏|赵扬 - 10 ×
▼巷景
大理古城既下山酒店设计欣赏|赵扬 - 11
大理古城既下山酒店设计欣赏|赵扬 - 11 ×
因为建筑的轮廓是在平面的整体操作中腾挪而成,所以每一间客房的尺寸、比例、开门的位置、框景和采光的方位都有所不同。也就导致了全部十四间客房每一间都是唯一的。我们把每一间客房都当作酒店这个小群落中的微建筑来考量。在机会和限制环环相扣的因地制宜中,每一个房间都发展出明显的特征,面积虽小,却各有各的意料之外和情理之中。 ▼从客房室内反观前庭
大理古城既下山酒店设计欣赏|赵扬 - 12
大理古城既下山酒店设计欣赏|赵扬 - 12 ×
▼客房内部
大理古城既下山酒店设计欣赏|赵扬 - 13
大理古城既下山酒店设计欣赏|赵扬 - 13 ×
整个建筑采用混凝土剪力墙结构体系。我们向木材加工厂订做了只粘贴了一面木皮的细木工板,用另一面裸露的碎木条来直接形成清水混凝土的木纹肌理。这个做法不仅大幅度降低了加工模板的费用和时间,平均4厘米宽的木纹肌理和这个小尺度转折比较多的空间也更匹配。碎木条在工厂是随机拼压的,因此就在混凝土表面压出斑驳错落的凸凹感。 ▼二楼露天走廊
大理古城既下山酒店设计欣赏|赵扬 - 15
大理古城既下山酒店设计欣赏|赵扬 - 15 ×
▼走廊视野
大理古城既下山酒店设计欣赏|赵扬 - 16
大理古城既下山酒店设计欣赏|赵扬 - 16 ×
根据大理古城的规划要求,所有的建筑都必须是以青瓦坡屋顶为主的。这个酒店的第五立面是由七个双坡瓦顶和一个存放设备的平屋顶组成。我们参考白族民居封火檐的几何形式来解决瓦顶坡屋面和墙面在檐口处的交接问题,倾斜的悬挑把墙面从垂直的阳面引到阴影中,而自然过渡到瓦当滴水凸出立面的丰富细节中去,利用混凝土的可塑性来模拟传统建筑用悬挑的石板来实现的几何形态。 ▼屋顶局部
大理古城既下山酒店设计欣赏|赵扬 - 17
大理古城既下山酒店设计欣赏|赵扬 - 17 ×
▼材料细部
大理古城既下山酒店设计欣赏|赵扬 - 18
大理古城既下山酒店设计欣赏|赵扬 - 18 ×
因为庭院空间的限制,公共流线和檐口在多处重合,我们就在“封火檐”的斜面上用弯勾固定了手工打制的铜檐沟来解决雨季的排水问题。建筑沿街的外墙面根据当地规划的要求需要完全是传统建筑的模样,所以就预留出了二十公分的厚度,土建完工后再用传统毛石墙体的砌筑方式来覆盖整个外立面。这看似一个被动的“装饰性”策略,但完成后的效果却让这个酒店的形象完全融入了古城的背景,从入口拾级而上,步入混凝土塑成的内部空间,反倒是多了一层别有洞天的感觉。 ▼黄昏下的前庭
大理古城既下山酒店设计欣赏|赵扬 - 19
大理古城既下山酒店设计欣赏|赵扬 - 19 ×
▼一层咖啡区夜景
大理古城既下山酒店设计欣赏|赵扬 - 20
大理古城既下山酒店设计欣赏|赵扬 - 20 ×
▼模型
大理古城既下山酒店设计欣赏|赵扬 - 21
大理古城既下山酒店设计欣赏|赵扬 - 21 ×
▼首层平面图
大理古城既下山酒店设计欣赏|赵扬 - 22
大理古城既下山酒店设计欣赏|赵扬 - 22 ×
▼二层平面图
大理古城既下山酒店设计欣赏|赵扬 - 23
大理古城既下山酒店设计欣赏|赵扬 - 23 ×
▼屋顶平面图
大理古城既下山酒店设计欣赏|赵扬 - 24
大理古城既下山酒店设计欣赏|赵扬 - 24 ×
▼东立面图
大理古城既下山酒店设计欣赏|赵扬 - 25
大理古城既下山酒店设计欣赏|赵扬 - 25 ×
大理古城既下山酒店设计欣赏|赵扬 - 26 ▼剖面图
大理古城既下山酒店设计欣赏|赵扬 - 26 ×
精彩评论