本项目位于杭州白沙泉并购金融街区,建筑原本是一幢地处村落中心的4层的民居毛坯房,建筑周围有一圈简单种植的绿化庭院。甲方的诉求是其整体空间要具有创新性、实用性、舒适性且在当地具有独树一帜的总部特征形象,不是单纯地以材质的堆砌、形式的繁琐、来达到造型的效果。
白沙泉办公空间改造设计,杭州 / 杭州巨合建筑设计事务所|杭州巨合建筑设计事务所 - 0
白沙泉办公空间改造设计,杭州 / 杭州巨合建筑设计事务所|杭州巨合建筑设计事务所 - 0 ×
建筑现状 Construction Status Quo
考虑到原状层高低矮,立面较为封闭、单调。因此对外立面我们通过拆除部分墙面,运用大面积落地玻璃来扩大室内视野的景观面,改变原有建筑立面的虚实比重,重新梳理整体建筑与场地关系。开放、通透、充分利用周边绿化,将室外光与景引入室内,来营造亲近自然,惬意舒适的环境。
白沙泉办公空间改造设计,杭州 / 杭州巨合建筑设计事务所|杭州巨合建筑设计事务所 - 2
白沙泉办公空间改造设计,杭州 / 杭州巨合建筑设计事务所|杭州巨合建筑设计事务所 - 2 ×
内部空间介绍 Interior space Introduction
地下层
白沙泉办公空间改造设计,杭州 / 杭州巨合建筑设计事务所|杭州巨合建筑设计事务所 - 4
白沙泉办公空间改造设计,杭州 / 杭州巨合建筑设计事务所|杭州巨合建筑设计事务所 - 4 ×
Underground Floor Plan
该层处于地下且层高偏低,面对因此存在压抑闭塞,阴暗潮湿等问题,我们选择将一层与二层中心位置的楼板进行了拆除处理。楼板拆除后形成的挑空空间既增强了室内光线又使得空气的得以相互流动,改善负一层的使用环境。另外在此基础上增设了特殊木结构吊顶造型,隔而不断的吊顶造型既能让场域视觉得以穿透,消解负一层因为原本低矮楼板结构带来的压抑闭塞感,又使得上下空间可以有充分的联系和交流。
白沙泉办公空间改造设计,杭州 / 杭州巨合建筑设计事务所|杭州巨合建筑设计事务所 - 5
白沙泉办公空间改造设计,杭州 / 杭州巨合建筑设计事务所|杭州巨合建筑设计事务所 - 5 ×
多方考量:从经济效益走势图和起伏的山峦中提取元素加以糅合。山峦元素的引入,我们不仅是为了与外景有所呼应、满足甲方亲近自然的氛围需求。也是因为它有着稳重与可信赖的关键词,是对公司核心价值观:"执着于事,真诚予人"最直观的感受体现。
白沙泉办公空间改造设计,杭州 / 杭州巨合建筑设计事务所|杭州巨合建筑设计事务所 - 7
白沙泉办公空间改造设计,杭州 / 杭州巨合建筑设计事务所|杭州巨合建筑设计事务所 - 7 ×
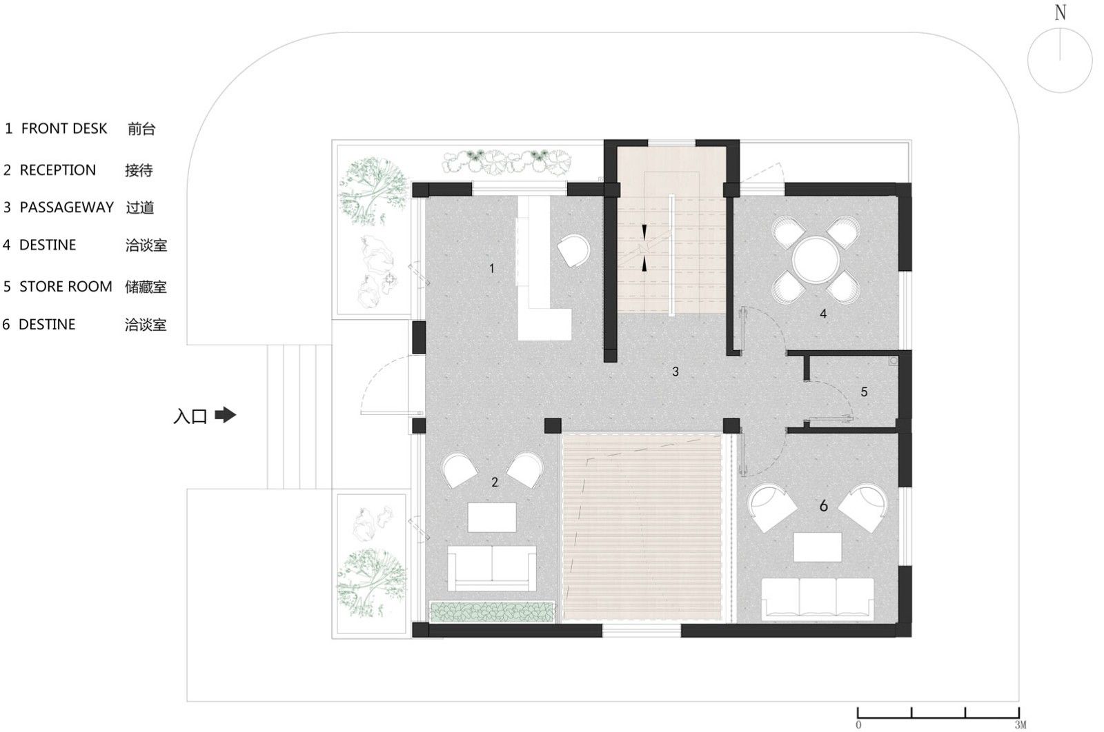
一层:接待与洽谈
白沙泉办公空间改造设计,杭州 / 杭州巨合建筑设计事务所|杭州巨合建筑设计事务所 - 9
白沙泉办公空间改造设计,杭州 / 杭州巨合建筑设计事务所|杭州巨合建筑设计事务所 - 9 ×
First floor: Reception and Negotiation
我们将各个功能区域归纳整合放置在不同层空间里,布局划分出各种使用功能及流线分布。把前台、接待区、洽谈室,通过造型张力,线条流畅的"金字塔"结构间隔区分开来,共同形成隔而不断的接待空间。
白沙泉办公空间改造设计,杭州 / 杭州巨合建筑设计事务所|杭州巨合建筑设计事务所 - 10
白沙泉办公空间改造设计,杭州 / 杭州巨合建筑设计事务所|杭州巨合建筑设计事务所 - 10 ×
二层:办公区
白沙泉办公空间改造设计,杭州 / 杭州巨合建筑设计事务所|杭州巨合建筑设计事务所 - 12
白沙泉办公空间改造设计,杭州 / 杭州巨合建筑设计事务所|杭州巨合建筑设计事务所 - 12 ×
Second floor: Office Area
通过对原有结构墙体及柱子的处理而形成的木饰面隔断墙,既能满足功能性的空间分割,又能保证内部空间的通透和交流的便利。
白沙泉办公空间改造设计,杭州 / 杭州巨合建筑设计事务所|杭州巨合建筑设计事务所 - 13
白沙泉办公空间改造设计,杭州 / 杭州巨合建筑设计事务所|杭州巨合建筑设计事务所 - 13 ×
精彩评论