家宅是我们在世界中的一角,我们常说,它是我们最初的宇宙。   ——《空间的诗学》
目心设计研究室最新完成了一处小型住宅的设计,项目场地位于上海市中心的一个发展成熟的住宅区,尽管离街道不远,其周围环境依然十分安静。该项目旨在为一位生活精致的女士打造小体量的理想住宅空间。
黑白之间 | 目心设计|目心设计  - 1
黑白之间 | 目心设计|目心设计  - 1 ×
罗兰·巴特说:"生活是琐碎的,永远是琐碎的,但他居然把我的全部语言都吸附进去。" 在当今社会追求高,大,上的前提下,人们似乎丧失了一种"以小见大"的情趣,相比于大众社会的审美,"以小见大"是以个人性情作为出发点的一种审美,而不是关于权利、财富的意识。
黑白之间 | 目心设计|目心设计  - 3
黑白之间 | 目心设计|目心设计  - 3 ×
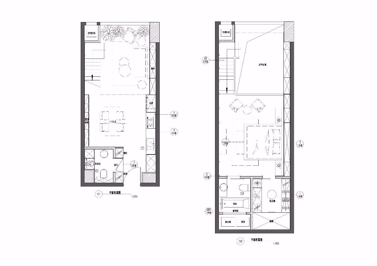
设计的最初阶段,设计师严格把控了区域尺度,房屋为2层复式空间,层高为4.5米,设计师对于上下楼层之间的高度经过了谨慎仔细的研究,以便为各功能提供清晰而合理的空间维度。为了使空间利用率最大化,为中央区域预留了足够的开放空间。
黑白之间 | 目心设计|目心设计  - 5
黑白之间 | 目心设计|目心设计  - 5 ×
住宅所有者希望将住宅进行简单实用的设计,并将上层作为主要居住休息空间,而下层留作工作、学习、休闲等生活空间。因此上下两层空间呈现出了相互独立的生活形式。 项目的重点在于打造舒适宜人的内部空间,同时在各功能区之间组织合理的交通流线。因此,空间中包含多个轴线,而餐厅环绕的动线令空间循环加倍,体验感也得以增强。住宅规划清晰而直观,一层的厨房、餐厅、卫生间、客厅以规整的形态整合了整个空间的秩序。
黑白之间 | 目心设计|目心设计  - 9
黑白之间 | 目心设计|目心设计  - 9 ×
精彩评论