至美术馆坐落在深圳宝安区全至科技创新园二号楼内。作为联系园区内不同公共空间的媒介,至美术馆也连接着人与人之间工作和生活的关系,营造具有人文社区的工作场所。至美术馆除了展厅功能,还包含了多功能厅和工作坊。通过展览、培训、讲座和论坛等方式,至美术馆以此来推动艺术文化与公众生活的联系,建立多元艺术与多元文化的交流平台。 ▼外立面
充满趣味和层次的游走体验,深圳至美术馆 墨照建筑设计事务所|罗文国 麦梓韵 吴炳福 - 0
充满趣味和层次的游走体验,深圳至美术馆 墨照建筑设计事务所|罗文国 麦梓韵 吴炳福 - 0 ×
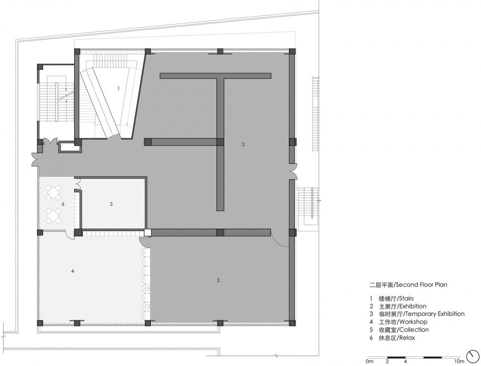
与大部分美术馆不同,至美术馆不是一个独立的建筑,它是由一栋普通混凝土厂房的局部两层空间改造而成的。在九百多平米的厂房空间里,我们通过空间节奏的变化、自然光影的引入和材料肌理的运用,为至美术馆创造丰富和有趣的观展体验。
充满趣味和层次的游走体验,深圳至美术馆 墨照建筑设计事务所|罗文国 麦梓韵 吴炳福 - 2
充满趣味和层次的游走体验,深圳至美术馆 墨照建筑设计事务所|罗文国 麦梓韵 吴炳福 - 2 ×
▼从多功能厅入口望向中庭
充满趣味和层次的游走体验,深圳至美术馆 墨照建筑设计事务所|罗文国 麦梓韵 吴炳福 - 6
充满趣味和层次的游走体验,深圳至美术馆 墨照建筑设计事务所|罗文国 麦梓韵 吴炳福 - 6 ×
中庭空间的楼梯与坡道联系着一层与二层。行走在楼梯与坡道像是一段"艺术熏陶之旅",让观众在观展之前,先感受与体验建筑空间的美学与趣味。楼梯与坡道这两种形式的更替使观众可以在行走中体验不同的节奏和速度。黑色的楼梯、白色的墙以及木纹肌理的混凝土墙面共同创造出素雅纯净的意境。与常规梁式楼梯不同,楼梯的踏步与侧板形成完整的钢板楼梯结构体系,楼梯的形式也因此呈现出结构美学。 
充满趣味和层次的游走体验,深圳至美术馆 墨照建筑设计事务所|罗文国 麦梓韵 吴炳福 - 10
充满趣味和层次的游走体验,深圳至美术馆 墨照建筑设计事务所|罗文国 麦梓韵 吴炳福 - 10 ×
精彩评论