把老旧的东西拼凑起来不叫传承-创造,因为民众永远是承载传统的动力,所以创造出适合当今民众真正需要的建筑,才是对于传统的继承。
江南壹号院,400m2 顶级东方院墅 DIA丹健国际新作|DIA丹健国际 - 0
江南壹号院,400m2 顶级东方院墅 DIA丹健国际新作|DIA丹健国际 - 0 ×
每一种空间风格都有其特定的文化背景作为支撑,以此来传递人们在特定文化环境下对生活的追求。东方传统本身具有极强的生命力,如何在"破"和"立"当中找到现代生活的立足点,DIA在杭州江南壹号院项目的院墅样板房室内设计中,做了一次尝试。
江南壹号院,400m2 顶级东方院墅 DIA丹健国际新作|DIA丹健国际 - 2
江南壹号院,400m2 顶级东方院墅 DIA丹健国际新作|DIA丹健国际 - 2 ×
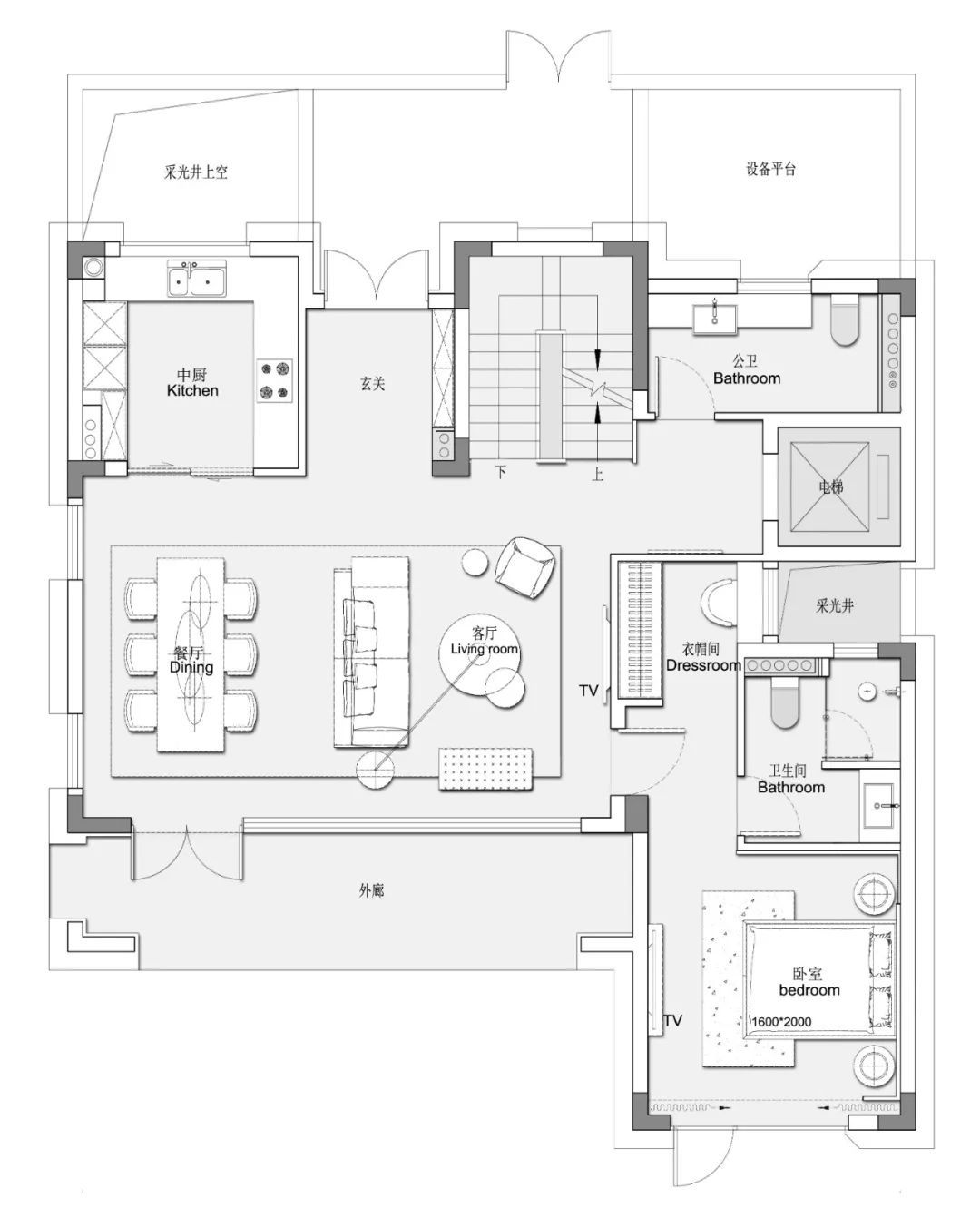
位于杭州萧山的融创江南壹号院,整体外观采用极简的元素表现了东方建筑的美学形式。项目包含高层、洋房、院墅等多种产品。DIA为业主精心打造了一个400平米的4层院墅产品示范单元。 和一般以"仿古"为着眼点的项目不同,DIA却是基于一种非常现代化的生活方式,并以东方文化线索穿插期间的思路来解决传统与现代的融合问题。
江南壹号院,400m2 顶级东方院墅 DIA丹健国际新作|DIA丹健国际 - 8
江南壹号院,400m2 顶级东方院墅 DIA丹健国际新作|DIA丹健国际 - 8 ×
脱离中式既定框架,重新思考空间的应用。 一层以客餐厅空间为主,配合玄关、厨房以及一个客卧。从功能性来看,这是一个简洁现代的生活空间。
江南壹号院,400m2 顶级东方院墅 DIA丹健国际新作|DIA丹健国际 - 12
江南壹号院,400m2 顶级东方院墅 DIA丹健国际新作|DIA丹健国际 - 12 ×
DIA在空间氛围的营造方面,充分提取传统文化当中的精髓——留白作法,使得空间整体明净简洁,简约低调。以白色为主调,配以温和的金色稍稍点缀,同时结合大理石和木材的自然纹理丰富空间,在人的精神观感中植入安静与纯粹。
江南壹号院,400m2 顶级东方院墅 DIA丹健国际新作|DIA丹健国际 - 18
江南壹号院,400m2 顶级东方院墅 DIA丹健国际新作|DIA丹健国际 - 18 ×
空间的留白,让家居可以自由的"呼吸";浅色与深色交替出现,虚与实,显与隐相互作用,形成视觉张力,并关注用餐、娱乐和功能区之间的互动。
江南壹号院,400m2 顶级东方院墅 DIA丹健国际新作|DIA丹健国际 - 24
江南壹号院,400m2 顶级东方院墅 DIA丹健国际新作|DIA丹健国际 - 24 ×
与一层对比,地下室娱乐厅空间以文化为起始,溯源并创新。以非对称的形式,以及干净线条的组合表现使空间丰富,不显单调。
江南壹号院,400m2 顶级东方院墅 DIA丹健国际新作|DIA丹健国际 - 28
江南壹号院,400m2 顶级东方院墅 DIA丹健国际新作|DIA丹健国际 - 28 ×
巧纳中国美学于空间构筑,呈现出极具尊贵价值感的空间气质。打造舒适畅快的共享空间,提供了一个富有文化生活滋味的重要场所。
江南壹号院,400m2 顶级东方院墅 DIA丹健国际新作|DIA丹健国际 - 32
江南壹号院,400m2 顶级东方院墅 DIA丹健国际新作|DIA丹健国际 - 32 ×
精彩评论