方糖Fountown 联合办公(Coworking Space),一个打着前锋的创新工作下的联合办公品牌,品牌理念是「希望在创业的道路上帮你加点糖」。对于所有使用办公室的创业顾客,方糖不仅在服务上可以帮他们一把,更希望提供一个优质的创业环境。有别于传统办公室,联合办公优势主要体现在四个方面:灵活性、人才、互动氛围、在线社群。「如何更好地激发工作者的活力,使之享受更多的工作乐趣」,是朱周空间设计团队在接收这个项目时最大的需求考量。 
上海金鹰方糖小镇Fountown联合办公空间设计|上海朱周空间设计咨询有限公司 - 2
上海金鹰方糖小镇Fountown联合办公空间设计|上海朱周空间设计咨询有限公司 - 2 ×
「金鹰方糖小镇」位于车水马龙、寸土寸金的上海商务中心地段。这里精英荟聚,处处萦绕着高效的工作氛围。「媒体中心」是设计团队对它的定位。 
上海金鹰方糖小镇Fountown联合办公空间设计|上海朱周空间设计咨询有限公司 - 3
上海金鹰方糖小镇Fountown联合办公空间设计|上海朱周空间设计咨询有限公司 - 3 ×
于是,原始建筑的穹顶化成了空间的聚集地,原始的玻璃天花被保留,以确保一定的自然光线。利用原本空间的挑高,将部分个人公位放置在上层,环绕于穹顶,让办公的人们既享有工作的专注度,又有灵活的工作动线。
上海金鹰方糖小镇Fountown联合办公空间设计|上海朱周空间设计咨询有限公司 - 7
上海金鹰方糖小镇Fountown联合办公空间设计|上海朱周空间设计咨询有限公司 - 7 ×
整个空间以白色为基调,设计师将材料简化,让空间不管是在白天或是晚上都可以确保有充足的光线。穹顶公共空间位于整个项目的中心,以便人们进入办公区前能感受到豁然开朗的圣殿式的敞亮。 
上海金鹰方糖小镇Fountown联合办公空间设计|上海朱周空间设计咨询有限公司 - 11
上海金鹰方糖小镇Fountown联合办公空间设计|上海朱周空间设计咨询有限公司 - 11 ×
单人公位环绕于挑高区块,同时确保储藏的便利,结合茶水区休憩、洽谈、手机电话亭的灵活使用,带来整个空间的活络感。尔后通向四方的办公区域,又可让人们再次专注于工作。连结、传播、效率、专注成为金鹰方糖的重要元素。 
上海金鹰方糖小镇Fountown联合办公空间设计|上海朱周空间设计咨询有限公司 - 15
上海金鹰方糖小镇Fountown联合办公空间设计|上海朱周空间设计咨询有限公司 - 15 ×
整体设计上,设计团队一以贯之,没有给予空间复杂的诠释,而是利用空间的特性将功能最大化。自由也许是在联合办公室内最大的享受,成员们在其中可以随时补充体力、转换思维、净化身心。他们希望好的设计能灌溉初创工作者,为他们提供需要的养分,就如同品牌本身概念的那一颗糖。
上海金鹰方糖小镇Fountown联合办公空间设计|上海朱周空间设计咨询有限公司 - 17
上海金鹰方糖小镇Fountown联合办公空间设计|上海朱周空间设计咨询有限公司 - 17 ×
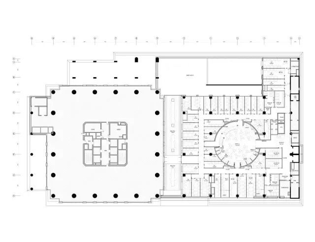
上海金鹰方糖小镇Fountown联合办公空间设计|上海朱周空间设计咨询有限公司 - 19 8F 大单位租赁办公区接待 平面图
上海金鹰方糖小镇Fountown联合办公空间设计|上海朱周空间设计咨询有限公司 - 19 ×
精彩评论