从深色玻璃幕墙的建筑体量中进到这个空间,恍如猛然遇到一个明媚,衣着得体的姑娘。心里不自禁的要"哦"一声。空间很安静,是那种明亮的安静。要不是夏日正午阳光过分热烈的关照,一椅、一几、一茶或者一酒在手,击节听曲,可以悠然忘世。
自然的前卫营造——流溢的光|彭征 - 1
自然的前卫营造——流溢的光|彭征 - 1 ×
清坐让人无俗气,虚堂终日转温风。"堂"这样的大空间易做"空",此"空"不指"空灵",而是空荡荡。做"虚"不易。"虚"要促人易静,让人有联想可以生发,是动与静,亮与暗,深与浅的曼妙和谐。方正的空间中,利用层高的优势,一条旋梯让空间有了灵动的部分。正如绿叶红花,相得益彰。
自然的前卫营造——流溢的光|彭征 - 6
自然的前卫营造——流溢的光|彭征 - 6 ×
深色的梯级,在色调层面既干净又得体,既加强了视觉中对"动"的感受,在空间中又不显得突兀。如果站在旋梯对过的尽头看过去,那是一种视觉透视的游戏——仿佛两边的线条最终交融在一起。
自然的前卫营造——流溢的光|彭征 - 11
自然的前卫营造——流溢的光|彭征 - 11 ×
天光从中庭泄下,然后往四周溢出、淡去。漫射的人工光源作为过渡,和各个功能空间衔接。光和色彩的调子由明媚变得沉着,窗外的光,在深色的基础上闪耀,浅色在背光中微妙的变化。
自然的前卫营造——流溢的光|彭征 - 13
自然的前卫营造——流溢的光|彭征 - 13 ×
对称,在中国人心里有不可割舍的根,是基因的延续。尤其是在一定的正式场合。仿佛不如此,宾主的屁股便不好安放,心里无法安生,晤谈便无法在亲切友好的气氛中进行。于是空间做得再时尚,也要"中学为体,西学为用"。活泼开放是一种理想,回到现实,宾主还是各就其位。中国人对距离和分寸的把握,无需设计师置喙。
自然的前卫营造——流溢的光|彭征 - 20
自然的前卫营造——流溢的光|彭征 - 20 ×
艺术品作为空间装饰,大有讨论的空间。尤其当代艺术品。中庭的雕塑,固然出自名家之手。只是放在此处,却有些穿着得体的漂亮姑娘生了感冒或者鼻炎的遗憾。譬如杜尚的尿罐子,只好放在博物馆,不好出入于万金之家的厅堂,无论出自何人之手,又或者有大师亲自的签名,无从改变那只是个尿罐子的事实——毕竟最权威的鉴赏家也分辨不出杜尚的尿罐子和别的尿罐子作为产品本身有何不同。艺术品充当装饰的功能,仍要符合场所的要求,才能相映生辉;是作品服从感官到心理的需要,而不是反客为主——以场所迁就作品。场所不会因为那是一件所谓的名人作品而和谐,让人生发所期盼的感受。此是所谓装饰的得体。
自然的前卫营造——流溢的光|彭征 - 24
自然的前卫营造——流溢的光|彭征 - 24 ×
今天中国的设计,大多藏身在"现代设计"、"工业化"和各种"主义"旗帜后面重复着精致的平庸——如同网络语言,既想彰显个性,却又文化失语。想追寻本土的根,却又不知何处寻找其古典的根源,只好寻章摘句,动辄言古典,却不知古典所涵盖的范围;想全盘西化,同样不能理解西方古典对今日设计的影响,只能在表象的现代化中抄袭"现代化"。
自然的前卫营造——流溢的光|彭征 - 31
自然的前卫营造——流溢的光|彭征 - 31 ×
在设计中不被所谓"元素"所困,能够"运用之妙,存乎一心",需要捋出一条相对完整的设计线索,那是设计在表现中蕴含的内在灵魂,是正视自己内心,审视文化形成的脉络,化被动模仿为主动吸收的过程。功夫不仅下在功夫之内,更在功夫之外。
自然的前卫营造——流溢的光|彭征 - 36
自然的前卫营造——流溢的光|彭征 - 36 ×
今日的设计行业,固然有许多不足与外人道的苦衷,不得已的尴尬,但设计毕竟是一件可以提调、影响人心理的工作。其本身就充满趣味。唯欲求道者,不可恒以术变之。
自然的前卫营造——流溢的光|彭征 - 44
自然的前卫营造——流溢的光|彭征 - 44 ×
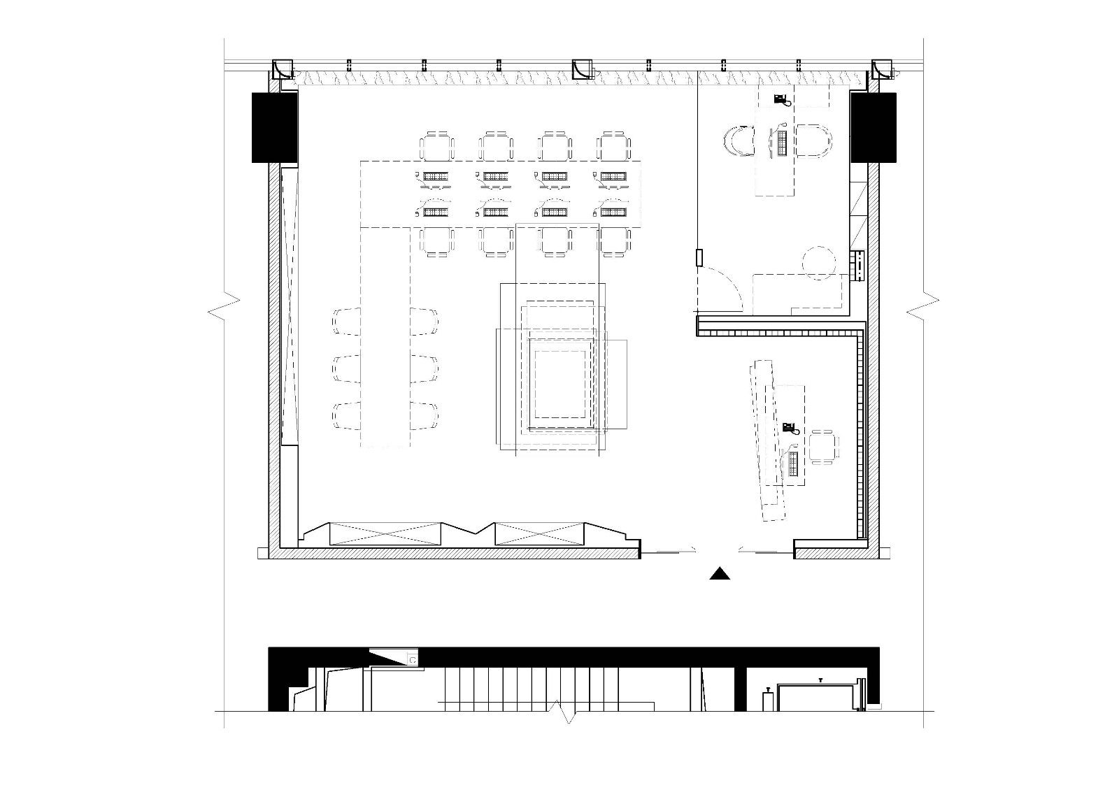
24F平面图
自然的前卫营造——流溢的光|彭征 - 45
自然的前卫营造——流溢的光|彭征 - 45 ×
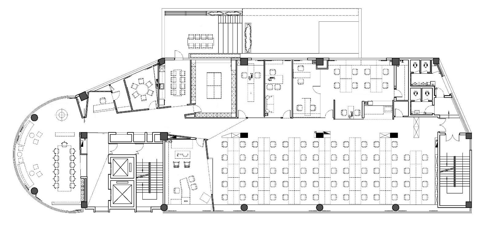
自然的前卫营造——流溢的光|彭征 - 46 25F平面图
自然的前卫营造——流溢的光|彭征 - 46 ×
精彩评论