创意民宿"别居"位于桂林平乐县漓江畔,Studio 10负责了其中"梦.迷"主题房型的改造。设计灵感来源于莫里茨·科内利斯·埃舍尔的绘画作品,建筑师通过二维、三维元素的无缝转换及对于视幻现象的运用,打造了一个神秘、无尽的"不可能空间"。 二维、三维元素无缝转换的不可能空间·桂林别居漓想国创意民宿 | 十间设计工作室|十间设计工作室 - 0
二维、三维元素无缝转换的不可能空间·桂林别居漓想国创意民宿 | 十间设计工作室|十间设计工作室 - 0 ×
▼粉色空间入口,室内一览
二维、三维元素无缝转换的不可能空间·桂林别居漓想国创意民宿 | 十间设计工作室|十间设计工作室 - 1
二维、三维元素无缝转换的不可能空间·桂林别居漓想国创意民宿 | 十间设计工作室|十间设计工作室 - 1 ×
▼绿色空间入口,室内一览
二维、三维元素无缝转换的不可能空间·桂林别居漓想国创意民宿 | 十间设计工作室|十间设计工作室 - 2
二维、三维元素无缝转换的不可能空间·桂林别居漓想国创意民宿 | 十间设计工作室|十间设计工作室 - 2 ×
淡粉色与白色营造出一种静谧又不失清新的内部氛围,与窗外略显杂乱的景色隔绝;所有来自于现实世界的元素(如灯具、电器)被巧妙地隐藏于一些列黑色的"门"后,使空间保持纯净,如梦如幻。▼入口走廊
二维、三维元素无缝转换的不可能空间·桂林别居漓想国创意民宿 | 十间设计工作室|十间设计工作室 - 3
二维、三维元素无缝转换的不可能空间·桂林别居漓想国创意民宿 | 十间设计工作室|十间设计工作室 - 3 ×
▼粉色和白色为主,阶梯和体块创造"不可能的空间"
二维、三维元素无缝转换的不可能空间·桂林别居漓想国创意民宿 | 十间设计工作室|十间设计工作室 - 4
二维、三维元素无缝转换的不可能空间·桂林别居漓想国创意民宿 | 十间设计工作室|十间设计工作室 - 4 ×
▼一楼起居室
二维、三维元素无缝转换的不可能空间·桂林别居漓想国创意民宿 | 十间设计工作室|十间设计工作室 - 5
二维、三维元素无缝转换的不可能空间·桂林别居漓想国创意民宿 | 十间设计工作室|十间设计工作室 - 5 ×
▼设备收纳在柜子中,从窗户可以看到卧室
二维、三维元素无缝转换的不可能空间·桂林别居漓想国创意民宿 | 十间设计工作室|十间设计工作室 - 6
二维、三维元素无缝转换的不可能空间·桂林别居漓想国创意民宿 | 十间设计工作室|十间设计工作室 - 6 ×
▼一楼卧室
二维、三维元素无缝转换的不可能空间·桂林别居漓想国创意民宿 | 十间设计工作室|十间设计工作室 - 8
二维、三维元素无缝转换的不可能空间·桂林别居漓想国创意民宿 | 十间设计工作室|十间设计工作室 - 8 ×
▼二层休息区
二维、三维元素无缝转换的不可能空间·桂林别居漓想国创意民宿 | 十间设计工作室|十间设计工作室 - 9
二维、三维元素无缝转换的不可能空间·桂林别居漓想国创意民宿 | 十间设计工作室|十间设计工作室 - 9 ×
▼楼梯通向各个方向,形成梦幻般的氛围
二维、三维元素无缝转换的不可能空间·桂林别居漓想国创意民宿 | 十间设计工作室|十间设计工作室 - 10
二维、三维元素无缝转换的不可能空间·桂林别居漓想国创意民宿 | 十间设计工作室|十间设计工作室 - 10 ×
▼二楼卧室
二维、三维元素无缝转换的不可能空间·桂林别居漓想国创意民宿 | 十间设计工作室|十间设计工作室 - 15
二维、三维元素无缝转换的不可能空间·桂林别居漓想国创意民宿 | 十间设计工作室|十间设计工作室 - 15 ×
在另一个森绿色主题的房间中,反重力的楼梯通往金色的门扇,门后或许是一条通往另一处秘密森林小路- 你永远不知道下一扇门后有何惊喜。 二维、三维元素无缝转换的不可能空间·桂林别居漓想国创意民宿 | 十间设计工作室|十间设计工作室 - 16
二维、三维元素无缝转换的不可能空间·桂林别居漓想国创意民宿 | 十间设计工作室|十间设计工作室 - 16 ×
▼入口走廊
二维、三维元素无缝转换的不可能空间·桂林别居漓想国创意民宿 | 十间设计工作室|十间设计工作室 - 17
二维、三维元素无缝转换的不可能空间·桂林别居漓想国创意民宿 | 十间设计工作室|十间设计工作室 - 17 ×
▼深绿色为主题的房间
二维、三维元素无缝转换的不可能空间·桂林别居漓想国创意民宿 | 十间设计工作室|十间设计工作室 - 18
二维、三维元素无缝转换的不可能空间·桂林别居漓想国创意民宿 | 十间设计工作室|十间设计工作室 - 18 ×
▼一层起居室
二维、三维元素无缝转换的不可能空间·桂林别居漓想国创意民宿 | 十间设计工作室|十间设计工作室 - 19
二维、三维元素无缝转换的不可能空间·桂林别居漓想国创意民宿 | 十间设计工作室|十间设计工作室 - 19 ×
▼一层卧室
二维、三维元素无缝转换的不可能空间·桂林别居漓想国创意民宿 | 十间设计工作室|十间设计工作室 - 21
二维、三维元素无缝转换的不可能空间·桂林别居漓想国创意民宿 | 十间设计工作室|十间设计工作室 - 21 ×
▼二层休息区
二维、三维元素无缝转换的不可能空间·桂林别居漓想国创意民宿 | 十间设计工作室|十间设计工作室 - 22
二维、三维元素无缝转换的不可能空间·桂林别居漓想国创意民宿 | 十间设计工作室|十间设计工作室 - 22 ×
▼通往不同方向的楼梯和配色形成神秘氛围
二维、三维元素无缝转换的不可能空间·桂林别居漓想国创意民宿 | 十间设计工作室|十间设计工作室 - 24
二维、三维元素无缝转换的不可能空间·桂林别居漓想国创意民宿 | 十间设计工作室|十间设计工作室 - 24 ×
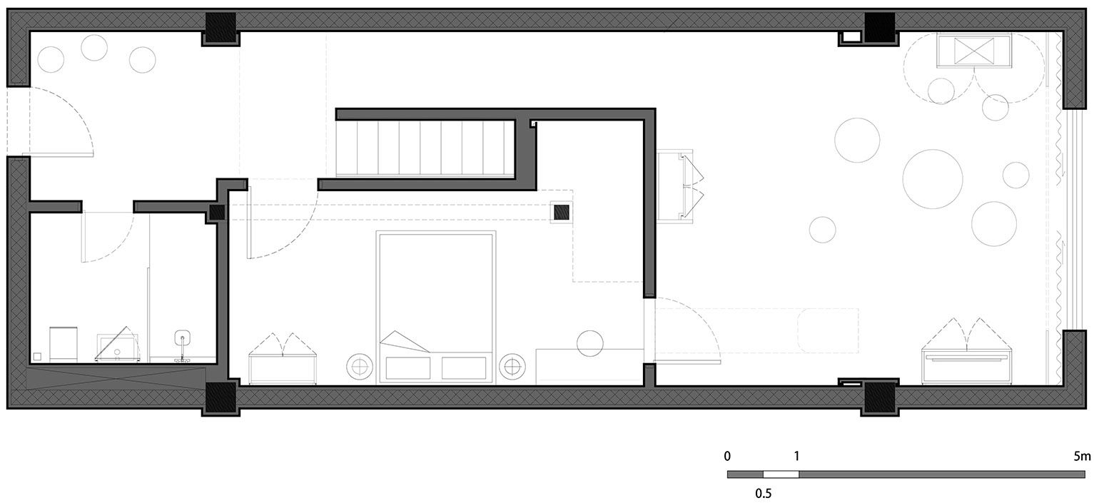
二维、三维元素无缝转换的不可能空间·桂林别居漓想国创意民宿 | 十间设计工作室|十间设计工作室 - 27 ▼一层平面图
二维、三维元素无缝转换的不可能空间·桂林别居漓想国创意民宿 | 十间设计工作室|十间设计工作室 - 27 ×
精彩评论

案例设计:周实

设计公司:十间设计工作室