FUNTASTY是捷克第二大城市布尔诺的一家移动应用程序开发公司,他们刚刚搬到新的办公室——一个旧车库改的办公空间。Perspektiv事务所的改造设计为公司上下包括开发人员,程序员和设计师在内的42人提供了一个全新的工作环境。
▼办公空间概览
旧车库摇身变为开放办公空间,捷克FUNTASTY办公室 | Perspektiv|Perspektiv  - 0
旧车库摇身变为开放办公空间,捷克FUNTASTY办公室 | Perspektiv|Perspektiv  - 0 ×
因为有了设施齐全的办公室,FUNTASTY公司实现了自由灵活的办公模式,并且还能在办公室宽敞的社交区里举办各种活动和party,社交区里还有一个厨房,站在厨房可以俯瞰 Kounicova街。
▼厨房旁边的休息空间
旧车库摇身变为开放办公空间,捷克FUNTASTY办公室 | Perspektiv|Perspektiv  - 1
旧车库摇身变为开放办公空间,捷克FUNTASTY办公室 | Perspektiv|Perspektiv  - 1 ×
▼简洁开阔的厨房空间
旧车库摇身变为开放办公空间,捷克FUNTASTY办公室 | Perspektiv|Perspektiv  - 2
旧车库摇身变为开放办公空间,捷克FUNTASTY办公室 | Perspektiv|Perspektiv  - 2 ×
▼站在厨房透过玻璃可以看到对面的楼房,俯瞰整条街道
旧车库摇身变为开放办公空间,捷克FUNTASTY办公室 | Perspektiv|Perspektiv  - 3
旧车库摇身变为开放办公空间,捷克FUNTASTY办公室 | Perspektiv|Perspektiv  - 3 ×
Perspektiv事务所决定在设计中融合并突出一些颇具美感的停车场元素,比如一些狭窄的结构元素。将车挪出去以后,空间又变得宽阔空旷。这个空间需要一点一点填满,而不只是简单地划分成一个个功能空间。设计师利用半透明结构的会议室,既能将个人工作空间分隔开来,又能保持空间的连续性和流动性。有时候技术也是有核心区域的。FUNTASTY办公室就有这么一个技术核心区——一个制作精良的"书柜",上面陈列着各种移动设备,用来测试公司开发研究的应用程序。整个区域看起来干净利落。
▼核心测试区和两侧的集体办公区
旧车库摇身变为开放办公空间,捷克FUNTASTY办公室 | Perspektiv|Perspektiv  - 4
旧车库摇身变为开放办公空间,捷克FUNTASTY办公室 | Perspektiv|Perspektiv  - 4 ×
 
旧车库摇身变为开放办公空间,捷克FUNTASTY办公室 | Perspektiv|Perspektiv  - 5
旧车库摇身变为开放办公空间,捷克FUNTASTY办公室 | Perspektiv|Perspektiv  - 5 ×
▼利用磨砂玻璃创造半透明的效果,既保证空间的私密性,还能保持整个空间的连续性和流动性
旧车库摇身变为开放办公空间,捷克FUNTASTY办公室 | Perspektiv|Perspektiv  - 6
旧车库摇身变为开放办公空间,捷克FUNTASTY办公室 | Perspektiv|Perspektiv  - 6 ×
▼会议室的墙上有着各种有趣的涂鸦,即便在开会时气氛也是轻松愉悦的
旧车库摇身变为开放办公空间,捷克FUNTASTY办公室 | Perspektiv|Perspektiv  - 7
旧车库摇身变为开放办公空间,捷克FUNTASTY办公室 | Perspektiv|Perspektiv  - 7 ×
设计师通过使用看似矛盾的设计手法,运用不同的材料和颜色,体现不同的对比关系。通过冷暖色调的独特搭配,透明和半透明结构的使用比例,使得办公空间能给人以景深和远景的视觉错觉。柔软舒适的云杉板材和冰冷的 板材在触感和观感上形成了鲜明对比,但是这两种材质在一个空间里又并不突兀。裸露的天花板上的管道被白布遮盖起来。
▼裸露天花板上的管道被白布包裹起来
旧车库摇身变为开放办公空间,捷克FUNTASTY办公室 | Perspektiv|Perspektiv  - 9
旧车库摇身变为开放办公空间,捷克FUNTASTY办公室 | Perspektiv|Perspektiv  - 9 ×
客户对于美感和功能的高要求是设计中的一项挑战,所以为了满足他们的要求,办公室里几乎所有家具都是精心制作的定制款。办公桌是设计师与捷克家具生产商Master & Master合作设计的。办公区和办公空间中央区的灯光设计是Brokis公司负责的,带有浓郁的捷克设计风格。Karolína Stryková设计的趣味插图让整个办公气氛变得轻松愉悦,也不断提醒着员工和到访的客户,不要忘记这家公司历史和愿景。
▼办公室门上的有趣插画
旧车库摇身变为开放办公空间,捷克FUNTASTY办公室 | Perspektiv|Perspektiv  - 10
旧车库摇身变为开放办公空间,捷克FUNTASTY办公室 | Perspektiv|Perspektiv  - 10 ×
 
旧车库摇身变为开放办公空间,捷克FUNTASTY办公室 | Perspektiv|Perspektiv  - 11
旧车库摇身变为开放办公空间,捷克FUNTASTY办公室 | Perspektiv|Perspektiv  - 11 ×
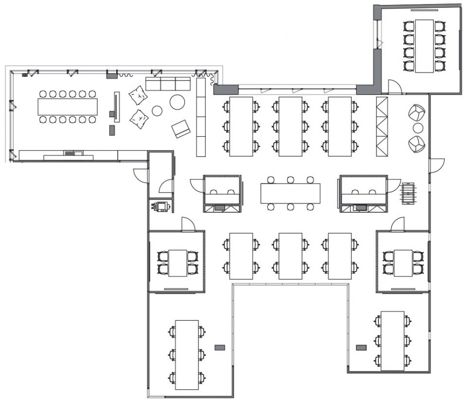
旧车库摇身变为开放办公空间,捷克FUNTASTY办公室 | Perspektiv|Perspektiv  - 12 ▼平面图
旧车库摇身变为开放办公空间,捷克FUNTASTY办公室 | Perspektiv|Perspektiv  - 12 ×
精彩评论