设计就是用最恰当的方式
满足人们物质与精神的双重需求
兼收并蓄、有容乃大的主场气度,感受家的工作室 | 知间设计|知间设计 - 0
兼收并蓄、有容乃大的主场气度,感受家的工作室 | 知间设计|知间设计 - 0 ×
本案运用了不同层次,不同饱和度的灰和大面积的纯白,为空间建立了秩序,在光影的变幻下,又不失韵律,仿佛立体素描一般。小面积插入的黑色钢板装饰架,即平衡了空间重心,又拉伸了层次感,为空间增添了更多的探索性。各个功能区的开放式布局让空间有机串联,不受阻挡的视线游移能给人更宽敞的空间感。顶面设计,墙面造型都未有过多的装饰,中性配色,有一种恰到好处的克制美,没有过分的突出存在感。
兼收并蓄、有容乃大的主场气度,感受家的工作室 | 知间设计|知间设计 - 4
兼收并蓄、有容乃大的主场气度,感受家的工作室 | 知间设计|知间设计 - 4 ×
大面积的落地窗承接了阳光的洗礼,纳入了无限光景,又在恰当的位置加入了透明玻璃,让光线穿行,放大视野。无论在哪个区域,都能充分享受这份开阔明朗。
兼收并蓄、有容乃大的主场气度,感受家的工作室 | 知间设计|知间设计 - 7
兼收并蓄、有容乃大的主场气度,感受家的工作室 | 知间设计|知间设计 - 7 ×
在灯光的映射下,木饰面的温度,金属的犀利,大理石的冷艳,原石的粗犷,以最纯粹的本体搭配,展现浓烈的感召力。不迎合不媚俗,注重质感,释放材质本真之美。
兼收并蓄、有容乃大的主场气度,感受家的工作室 | 知间设计|知间设计 - 10
兼收并蓄、有容乃大的主场气度,感受家的工作室 | 知间设计|知间设计 - 10 ×
有时候,人们对'物'不只是有物质层面的需要,对其背后蕴含的思想其实也是抱有兴趣的。所以设计要做的,便是如何给眼睛看到的赋予寓意。洽谈区的主背景采用整面的深灰色原石,彰显了兼收并蓄、有容乃大的主场气度。坐在这里视线可以辐射到各个区域,成为整个空间的核心,也侧重表达了客户至上的服务理念。
兼收并蓄、有容乃大的主场气度,感受家的工作室 | 知间设计|知间设计 - 15
兼收并蓄、有容乃大的主场气度,感受家的工作室 | 知间设计|知间设计 - 15 ×
洽谈区的背景是水吧,柜体干净利落,易于打理,金铜色吊灯垂下,使这处空间变得立体饱满,在3000K的光晕里,精致的杯具,各式花茶一字陈列在温润的白色大理石台面上,简洁温馨的氛围给客户带来舒适的体验感,也能让主客双方都心情舒畅。
兼收并蓄、有容乃大的主场气度,感受家的工作室 | 知间设计|知间设计 - 17
兼收并蓄、有容乃大的主场气度,感受家的工作室 | 知间设计|知间设计 - 17 ×
沿窗设置了休闲区,大面积木饰面和布艺的搭配舒缓且静谧,工作疲劳时可以停下来,泡上一盏香茶或一杯咖啡。也许片刻的阅读并不能顷刻改变人的状态,但能泛起重视人文的涟漪,也算是终了休闲一区的空间使命。
兼收并蓄、有容乃大的主场气度,感受家的工作室 | 知间设计|知间设计 - 20
兼收并蓄、有容乃大的主场气度,感受家的工作室 | 知间设计|知间设计 - 20 ×
"当代设计向简约的方向发展的时候,更强调后期的软装陈设艺术效果,通过各种艺术表现的手法,让建筑与艺术达至现代美学的平衡。"——Dana Kushmirsky
兼收并蓄、有容乃大的主场气度,感受家的工作室 | 知间设计|知间设计 - 22
兼收并蓄、有容乃大的主场气度,感受家的工作室 | 知间设计|知间设计 - 22 ×
空间以其独有的灵魂与姿态存在着,沉默而富于感情,而那些感情就雕刻在细枝末节之中。安静地尘伏,这也是时间洪流独有的情调。
兼收并蓄、有容乃大的主场气度,感受家的工作室 | 知间设计|知间设计 - 26
兼收并蓄、有容乃大的主场气度,感受家的工作室 | 知间设计|知间设计 - 26 ×
设计的作用在于寻找功能和社会间的接点,在功能足以说明一切的前提下,装饰成分是可以节制的,这是设计的度,也是隐贵艺术的开始。整个空间只有一幅抽象艺术画,具艺术的平衡性,丰富性与现代审美的创新。留白的墙面没有多余的繁杂,炫耀,展现一场纯粹人与空间的精神对话。
兼收并蓄、有容乃大的主场气度,感受家的工作室 | 知间设计|知间设计 - 29
兼收并蓄、有容乃大的主场气度,感受家的工作室 | 知间设计|知间设计 - 29 ×
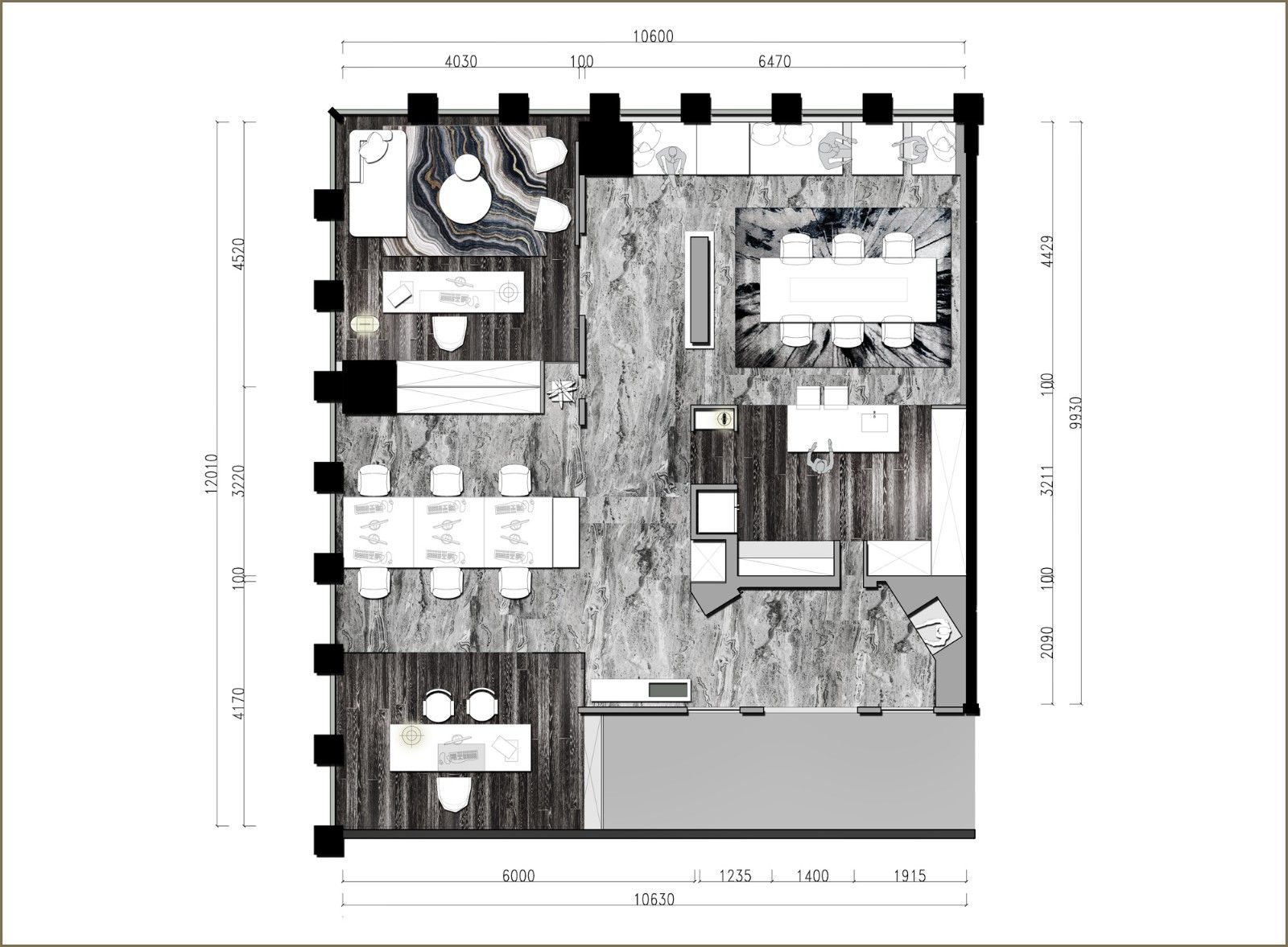
在灰与白的调子里加入了不同质感的橙,给空间注入了活力,一半理性逻辑,一半文艺感性。工作本身就是生活的一部分,将家的温馨转化在商空中,消弭商空严肃沉闷的刻板印象,延续完满丰足、积极乐观的人生态度。效果图
兼收并蓄、有容乃大的主场气度,感受家的工作室 | 知间设计|知间设计 - 32
兼收并蓄、有容乃大的主场气度,感受家的工作室 | 知间设计|知间设计 - 32 ×
精彩评论