人一生中免不了换几个窝,业主是一个小资族挣钱存粮买了自己的一间房,准备能够住上一辈子,那实在是再幸运不过的事!75平不大不小,作为单身宅、小家庭新婚宅都适用,除了收纳机能、轻食吧台、更衣间等基础功能之外,如何耐久、耐看、更长久居住,看似很简单的基本课题,却最考验着设计师的功力,除了挹注轻盈净透的风格之外,精工的细节,耐用的建材也是必需的,快来看看本案的设计规划重点吧!
Before
改造之前,业主对于旧户型中有一些期待改善的问题:
1.主卧含卫浴套间面积不充裕,没有充足的空间兼容衣帽间,难以满足业主日常的使用需求。
2.次卧面积大而不当,相比主卧反客为主,过大的次卧对于单身居而言也造成了空间浪费。
3.公领域主梁横贯全屋,严重影响视觉美观。
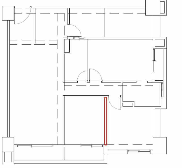
Before
改造之前,业主对于旧户型中有一些期待改善的问题:
1.主卧含卫浴套间面积不充裕,没有充足的空间兼容衣帽间,难以满足业主日常的使用需求。
2.次卧面积大而不当,相比主卧反客为主,过大的次卧对于单身居而言也造成了空间浪费。
3.公领域主梁横贯全屋,严重影响视觉美观。
