设计师想给住客创造一种家的氛围,一个可以生长的家。在这个家里,住客不是匆匆的过客,而是回家的孩子。室内面积八十多平方米,这个项目设计师希望实践空间性营造——内即是外,外亦是内,在建筑内造园,享林泉之怡。
80㎡的迷你别墅里自成世界|保利金町湾民宿。|扉建筑 - 0

80㎡的迷你别墅里自成世界|保利金町湾民宿。|扉建筑 - 0 ×

游 园
从户外踏进户内,竟然又一个小园呈现面前,阳光从天窗洒落,疏影婆娑,树下小墩,坐下换棉鞋,才进屋。换鞋时抬头看,左右各有小窗,又看到另一小园,有一棵朽木冒着绿芽,那是哪里啊?
▼天窗 、树影 、小窗
80㎡的迷你别墅里自成世界|保利金町湾民宿。|扉建筑 - 1

80㎡的迷你别墅里自成世界|保利金町湾民宿。|扉建筑 - 1 ×

▼卧室
80㎡的迷你别墅里自成世界|保利金町湾民宿。|扉建筑 - 2

80㎡的迷你别墅里自成世界|保利金町湾民宿。|扉建筑 - 2 ×

▼卧室中的园林元素
80㎡的迷你别墅里自成世界|保利金町湾民宿。|扉建筑 - 4

80㎡的迷你别墅里自成世界|保利金町湾民宿。|扉建筑 - 4 ×

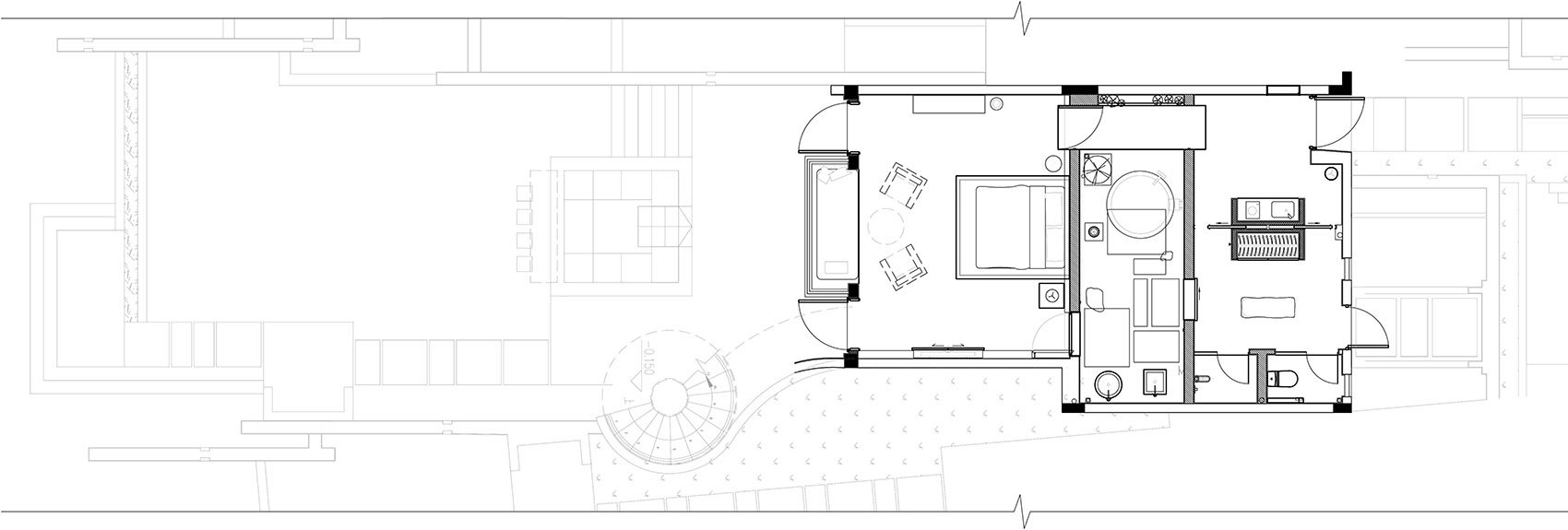
▼游园-平面图
80㎡的迷你别墅里自成世界|保利金町湾民宿。|扉建筑 - 5

80㎡的迷你别墅里自成世界|保利金町湾民宿。|扉建筑 - 5 ×

镶 隅
80年代南方的旧房子,为适应气候,楼道的墙往往由水泥通花砖砌筑,让房子通风而富有细节。在此别墅里,水泥通花砖时而是窗户,时而是院墙,时而是凳子,仿佛共生了一个有故事的房子。
▼入口处墙面的水泥通花砖
80㎡的迷你别墅里自成世界|保利金町湾民宿。|扉建筑 - 6

80㎡的迷你别墅里自成世界|保利金町湾民宿。|扉建筑 - 6 ×

▼全开放的洗手间,与院子融为一体
  80㎡的迷你别墅里自成世界|保利金町湾民宿。|扉建筑 - 7

80㎡的迷你别墅里自成世界|保利金町湾民宿。|扉建筑 - 7 ×

▼卧室
  80㎡的迷你别墅里自成世界|保利金町湾民宿。|扉建筑 - 8

80㎡的迷你别墅里自成世界|保利金町湾民宿。|扉建筑 - 8 ×

▼水泥通花砖的运用
80㎡的迷你别墅里自成世界|保利金町湾民宿。|扉建筑 - 10

80㎡的迷你别墅里自成世界|保利金町湾民宿。|扉建筑 - 10 ×

▼镶隅-平面图
80㎡的迷你别墅里自成世界|保利金町湾民宿。|扉建筑 - 11

80㎡的迷你别墅里自成世界|保利金町湾民宿。|扉建筑 - 11 ×

廊 桥
一进门,一条昏暗廊桥在前,远处是光亮的、泛着粼光的海,就像一幅灵动的画。过桥中,左边一小窗透光进来,一看,树影下放着露天的浴缸,然而暂时还走不过去。要到了卧室,看过了海,回头推开隐藏的门才能到这个小院,阳光下洗涮沐浴,迂回有趣。
▼昏暗的廊桥
80㎡的迷你别墅里自成世界|保利金町湾民宿。|扉建筑 - 12

80㎡的迷你别墅里自成世界|保利金町湾民宿。|扉建筑 - 12 ×

▼入口
80㎡的迷你别墅里自成世界|保利金町湾民宿。|扉建筑 - 13

80㎡的迷你别墅里自成世界|保利金町湾民宿。|扉建筑 - 13 ×

▼卧室
80㎡的迷你别墅里自成世界|保利金町湾民宿。|扉建筑 - 14

80㎡的迷你别墅里自成世界|保利金町湾民宿。|扉建筑 - 14 ×

▼飘窗休闲区
80㎡的迷你别墅里自成世界|保利金町湾民宿。|扉建筑 - 16

80㎡的迷你别墅里自成世界|保利金町湾民宿。|扉建筑 - 16 ×

▼浴室
  80㎡的迷你别墅里自成世界|保利金町湾民宿。|扉建筑 - 17

80㎡的迷你别墅里自成世界|保利金町湾民宿。|扉建筑 - 17 ×

▼廊桥-平面图
80㎡的迷你别墅里自成世界|保利金町湾民宿。|扉建筑 - 18

80㎡的迷你别墅里自成世界|保利金町湾民宿。|扉建筑 - 18 ×

夹 间
“麻雀虽小五脏俱全”,空间上划分出了一房一厅。踏着石头汀步进入客厅,一转身,卧室隐隐若现。推门而进,透过玻璃砖墙,大海、小院、吧台、阳光折现出实的,虚的,空间交叠的感受。让人感觉在那一瞬边界都模糊了。
▼客厅
80㎡的迷你别墅里自成世界|保利金町湾民宿。|扉建筑 - 19

80㎡的迷你别墅里自成世界|保利金町湾民宿。|扉建筑 - 19 ×

▼卧室
80㎡的迷你别墅里自成世界|保利金町湾民宿。|扉建筑 - 20

80㎡的迷你别墅里自成世界|保利金町湾民宿。|扉建筑 - 20 ×

▼吧台
80㎡的迷你别墅里自成世界|保利金町湾民宿。|扉建筑 - 21

80㎡的迷你别墅里自成世界|保利金町湾民宿。|扉建筑 - 21 ×

▼飘窗休闲区
80㎡的迷你别墅里自成世界|保利金町湾民宿。|扉建筑 - 22

80㎡的迷你别墅里自成世界|保利金町湾民宿。|扉建筑 - 22 ×

▼玻璃砖墙
80㎡的迷你别墅里自成世界|保利金町湾民宿。|扉建筑 - 23

80㎡的迷你别墅里自成世界|保利金町湾民宿。|扉建筑 - 23 ×

▼夹间-平面图  
80㎡的迷你别墅里自成世界|保利金町湾民宿。|扉建筑 - 24

80㎡的迷你别墅里自成世界|保利金町湾民宿。|扉建筑 - 24 ×

通 幽
空间的划分似有若无,“墙”显弧形而漏透,还不如说它是屏风。说不清楚的还有那面“墙”,用的是什么材料啊?
▼陶棍做成的弧形墙
  80㎡的迷你别墅里自成世界|保利金町湾民宿。|扉建筑 - 25

80㎡的迷你别墅里自成世界|保利金町湾民宿。|扉建筑 - 25 ×

▼ 卧室
80㎡的迷你别墅里自成世界|保利金町湾民宿。|扉建筑 - 26

80㎡的迷你别墅里自成世界|保利金町湾民宿。|扉建筑 - 26 ×

▼洗手池区域
80㎡的迷你别墅里自成世界|保利金町湾民宿。|扉建筑 - 27

80㎡的迷你别墅里自成世界|保利金町湾民宿。|扉建筑 - 27 ×

▼陶棍细部
80㎡的迷你别墅里自成世界|保利金町湾民宿。|扉建筑 - 28

80㎡的迷你别墅里自成世界|保利金町湾民宿。|扉建筑 - 28 ×
80㎡的迷你别墅里自成世界|保利金町湾民宿。|扉建筑 - 29

▼通幽-平面图

80㎡的迷你别墅里自成世界|保利金町湾民宿。|扉建筑 - 29 ×
精彩评论