UOOYAA是一家年轻的女装品牌,是设计师送给自己女儿的礼物,希望女生可以保持自由、真实和有趣的本质。在UOOYAA杭州湖滨银泰店的设计中,我们希望通过营造一个沉稳、厚实且有力量感的空间来匹配品牌精神。
▼室内概览
内向而放松的女装店·浙江-UOOYAA杭州IN77店 | XCoD与众设计|与众设计 - 0
内向而放松的女装店·浙江-UOOYAA杭州IN77店 | XCoD与众设计|与众设计 - 0 ×
在现代商场的环境下,每家店铺都在尽可能的展现展品,通过造景去吸引眼球,这样的环境总是难以让人放松下来。我们希望构筑一个内向的,放松的场所,在空间布置中,我们将产品"隐藏"在空间中的"通道"位置,同时利用回形动线的指引,让顾客轻松顺畅的完成产品的浏览,将产品作为路径的引导而非最终的目的地。
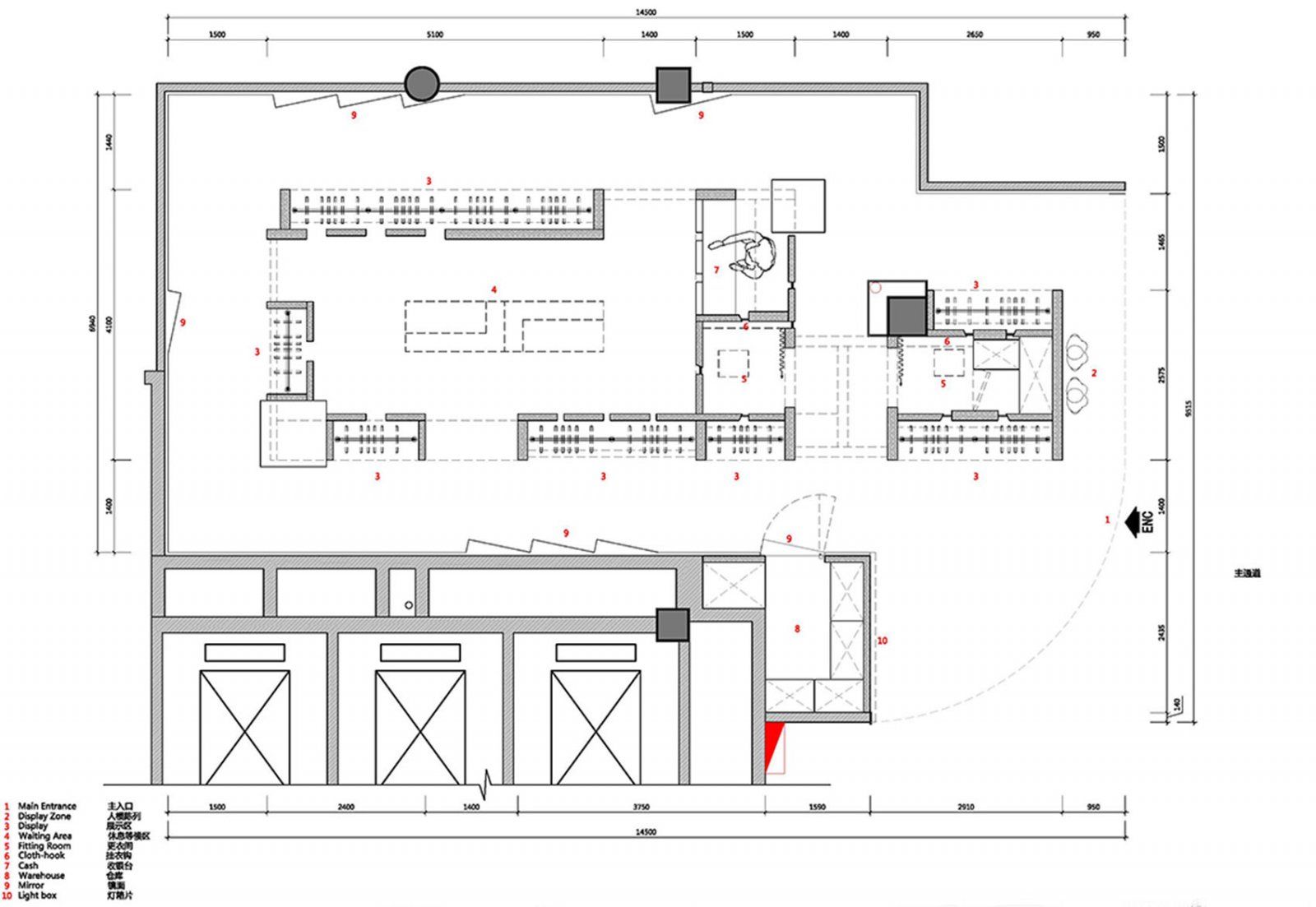
▼平面图
内向而放松的女装店·浙江-UOOYAA杭州IN77店 | XCoD与众设计|与众设计 - 1
内向而放松的女装店·浙江-UOOYAA杭州IN77店 | XCoD与众设计|与众设计 - 1 ×
▼将产品"隐藏"在空间中的"通道"位置
内向而放松的女装店·浙江-UOOYAA杭州IN77店 | XCoD与众设计|与众设计 - 2
内向而放松的女装店·浙江-UOOYAA杭州IN77店 | XCoD与众设计|与众设计 - 2 ×
▼利用回形动线的指引,让顾客轻松顺畅的完成产品的浏览
内向而放松的女装店·浙江-UOOYAA杭州IN77店 | XCoD与众设计|与众设计 - 3
内向而放松的女装店·浙江-UOOYAA杭州IN77店 | XCoD与众设计|与众设计 - 3 ×
▼回望入口
内向而放松的女装店·浙江-UOOYAA杭州IN77店 | XCoD与众设计|与众设计 - 5
内向而放松的女装店·浙江-UOOYAA杭州IN77店 | XCoD与众设计|与众设计 - 5 ×
我们希望店铺不只是商业销售空间,而是品牌精神的展示场所,是有同样审美及价值观人群的聚集场所,具备不同的空间属性,所以我们在空间的中心位置构筑了一个独立的空白空间,这里可以成为"画廊"、"休息室"、"培训教室"等各种属性的空间。
▼从走廊看中心空白空间
内向而放松的女装店·浙江-UOOYAA杭州IN77店 | XCoD与众设计|与众设计 - 6
内向而放松的女装店·浙江-UOOYAA杭州IN77店 | XCoD与众设计|与众设计 - 6 ×
▼中心空白空间
内向而放松的女装店·浙江-UOOYAA杭州IN77店 | XCoD与众设计|与众设计 - 8
内向而放松的女装店·浙江-UOOYAA杭州IN77店 | XCoD与众设计|与众设计 - 8 ×
内向而放松的女装店·浙江-UOOYAA杭州IN77店 | XCoD与众设计|与众设计 - 9 我们尝试尽量弱化对材质进行二次装饰,通过木模混凝土、素面石膏板、老榆木等材质的应用,去强调并展示材料的原真性。
▼材质细部
内向而放松的女装店·浙江-UOOYAA杭州IN77店 | XCoD与众设计|与众设计 - 9 ×
精彩评论