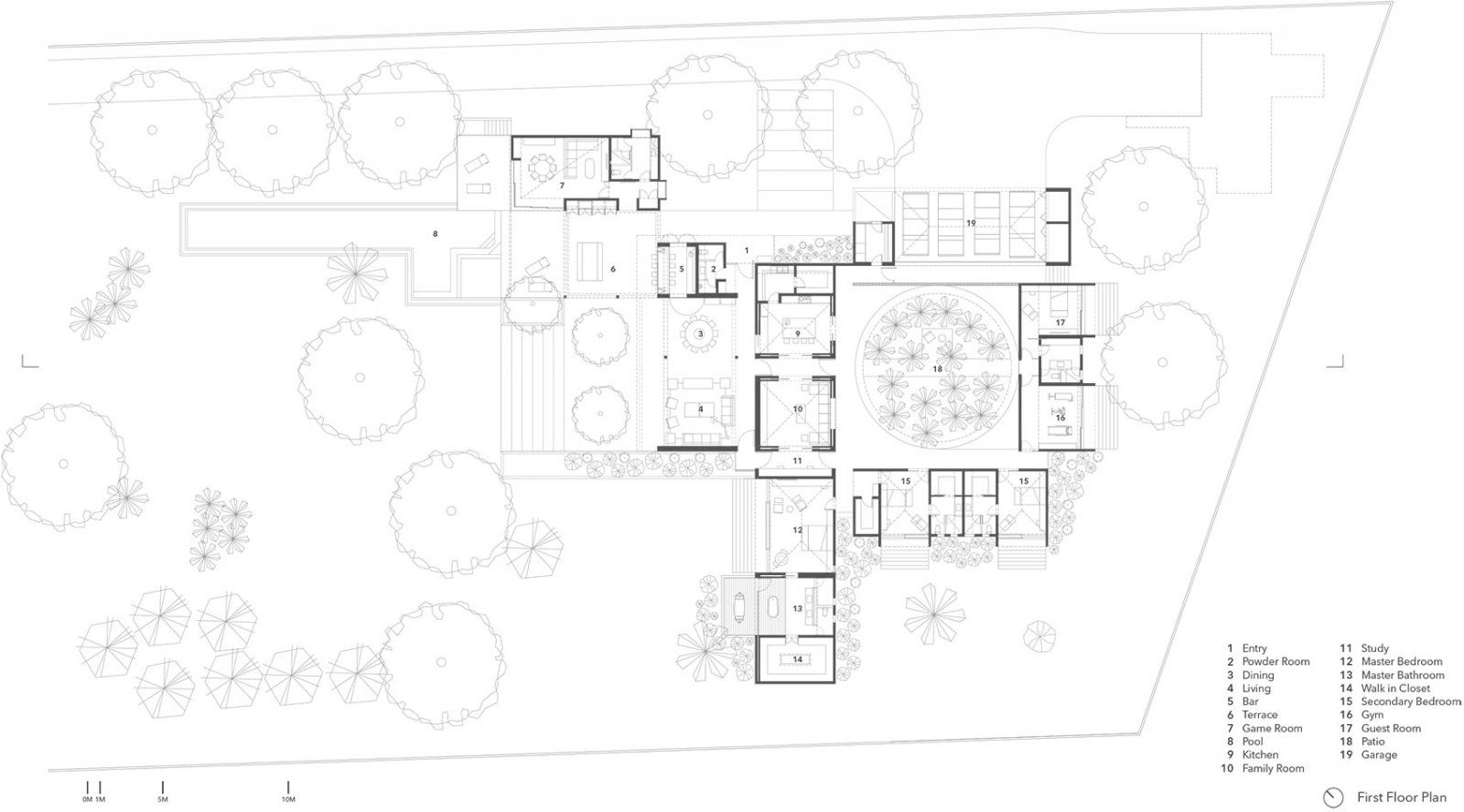
TM住宅(Casa TM)建造于墨西哥科利马的一处平坦的地面,占地面积11670平米,建筑面积769平米,只有一层,由4名家庭成员居住。项目建造的前提是要迎合墨西哥海岸丰富多样的热带环境且适合于度假使用。建筑概念设计的关键点有三个因素:气候、地形还有周边环境。这里平均气温25摄氏度,最高可达50摄氏度,相对湿度一般在百分之75以上,炎热的气候是最主要的衡量因素。场地上的棕榈树林已清理掉大部分,对于接下来的建造工程十分有利,但场地上几乎不存在坡度,令建筑十分容易在雨季或洪水时受到影响。另一方面,周边环境促使建筑必须设计为内向型且具有厚重感,以防业主受到周边不安全因素的影响。这三个因素成为了项目设计中的指导原则。
▼概览
▼概览
