▲建筑外观
北欧时光烘焙店位于荆州古城区主干道江津中路繁华地段,商住小区临街处,面积150平方米,分上下两层空间。店名来源于北欧,北欧的美丽风景太难企及,唯有在这遥远的一隅,为自己筑一方北欧空间。在这里,您享受的不仅是一段美好的下午茶时光,更是一种极简舒适的生活方式。
湖北·北欧时光烘焙店 | 漾设计YoungDesign|王伟 - 1
湖北·北欧时光烘焙店 | 漾设计YoungDesign|王伟 - 1 ×
▲外观细节
整体以简洁明了的设计手法,用白色作为基调,明亮、整洁、纯净。店面与周边喧嚣浮躁的环境剥离,大部分的留白像一张动态画布,记录来来往往的人物和光影。
湖北·北欧时光烘焙店 | 漾设计YoungDesign|王伟 - 2
湖北·北欧时光烘焙店 | 漾设计YoungDesign|王伟 - 2 ×
▲入口视角
柔和温暖的性情在洁净的白色基底里展露无遗。入口处玻璃大门明亮通透,同时在白色调中融入木质元素,使设计更加舒适自然。
湖北·北欧时光烘焙店 | 漾设计YoungDesign|王伟 - 3
湖北·北欧时光烘焙店 | 漾设计YoungDesign|王伟 - 3 ×
▲收银台区域
湖北·北欧时光烘焙店 | 漾设计YoungDesign|王伟 - 4
湖北·北欧时光烘焙店 | 漾设计YoungDesign|王伟 - 4 ×
▲糕点展示台区域
整个空间简洁明快,摒弃繁琐的结构,追求空间的质量和材料的质感体现,力求功能最大化。白色的吊顶,灰色的地砖确定了空间的基调,再加上有质感的黑色铁艺材料,木质底座与透亮的浅灰色地砖和玻璃形成鲜明对比,创造出温馨又不失时尚的极简空间。
湖北·北欧时光烘焙店 | 漾设计YoungDesign|王伟 - 5
湖北·北欧时光烘焙店 | 漾设计YoungDesign|王伟 - 5 ×
▲室内
湖北·北欧时光烘焙店 | 漾设计YoungDesign|王伟 - 6
湖北·北欧时光烘焙店 | 漾设计YoungDesign|王伟 - 6 ×
▲吧台
俯视地板采用各种不同的拼接,形成视觉上的几何美感。另外从吧台区域整体看来,拼接的瓷砖像面包汁和果汁从吧台流出溅落开来散落在每个角落,这也是一楼大厅的功能分区及消费动线引导。
湖北·北欧时光烘焙店 | 漾设计YoungDesign|王伟 - 7
湖北·北欧时光烘焙店 | 漾设计YoungDesign|王伟 - 7 ×
▲楼梯
除了强调室内空间宽敞、内外通透、最大限度引入自然光之外,追求自然,讲究原木质感,是北欧风格的灵魂。因此在木材的选择上,保留了原始的色彩和质感。同时,悬空的楼梯让空间更通透且富有趣味性。
湖北·北欧时光烘焙店 | 漾设计YoungDesign|王伟 - 9
湖北·北欧时光烘焙店 | 漾设计YoungDesign|王伟 - 9 ×
▲楼梯下细节
细节彰显温度和生命。其中点缀着浅绿色家具,让空间鲜活起来。与此同时,楼梯间大片的麦穗与原木色楼梯的搭配,整体与自然完美的融合,再加上绿色植物也为空间赋予了生命,散尾葵等在麦香四溢的空间里滋养生长,让极简的空间重新焕发了绿色的生机。设计师的灵感来源会有很多,但只有源于自然的设计,才是真正有温度的设计。
湖北·北欧时光烘焙店 | 漾设计YoungDesign|王伟 - 11
湖北·北欧时光烘焙店 | 漾设计YoungDesign|王伟 - 11 ×
▲楼梯俯视图
整体空间的风格基于LOFT之上,大量运用原木和钢网来构造空间,总体基调以和白色乳胶漆作为墙面背景衬托原木的质感。
湖北·北欧时光烘焙店 | 漾设计YoungDesign|王伟 - 12
湖北·北欧时光烘焙店 | 漾设计YoungDesign|王伟 - 12 ×
▲休闲区
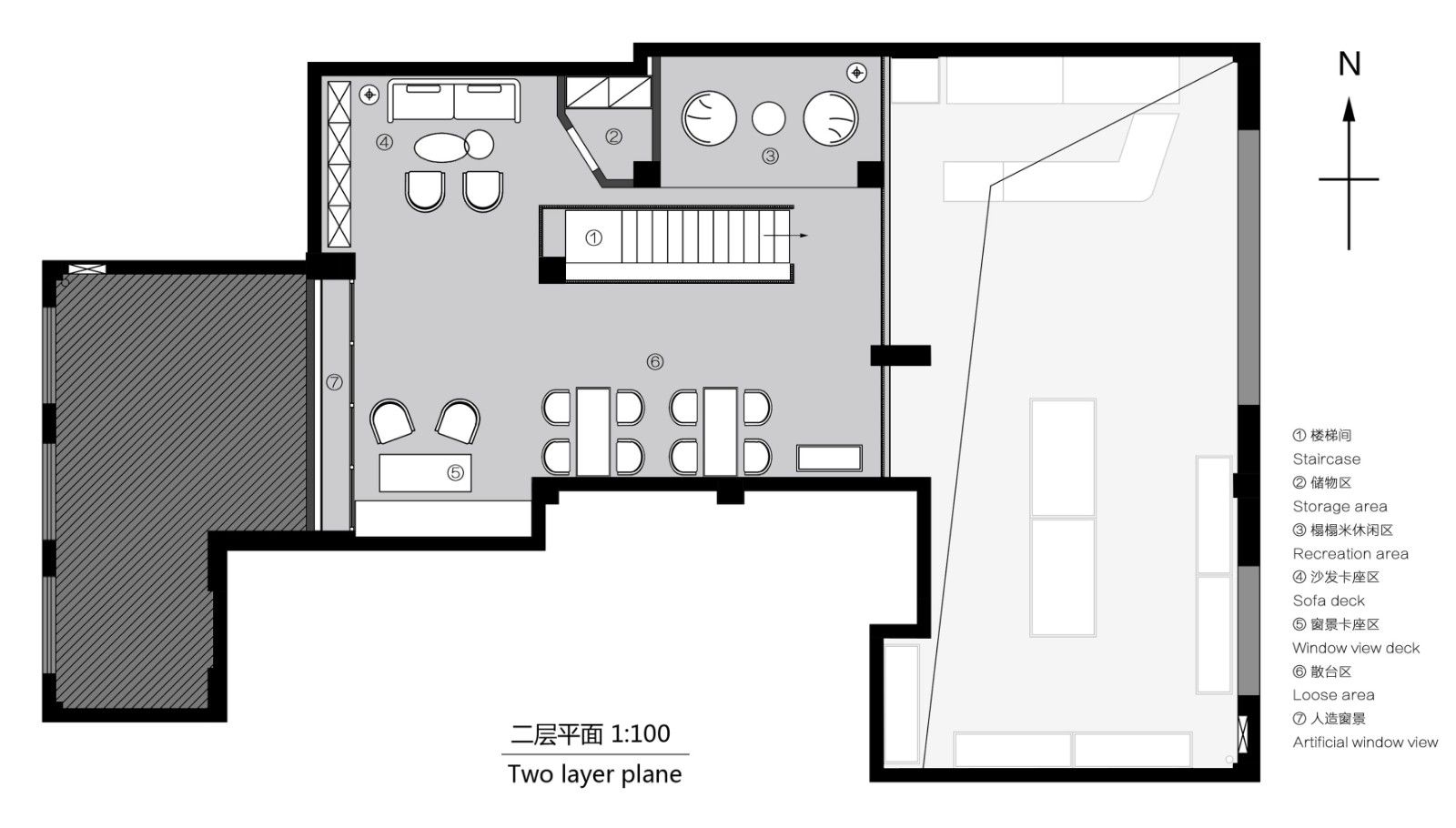
二层作为休息就餐区,简单个性的蓝色、灰色棉质沙发慵懒闲适。同时沙发窗边的人造麦田风景,为内部空间增添一丝静谧,也更贴近自然,让顾客能在此处尽享安逸和放空。
湖北·北欧时光烘焙店 | 漾设计YoungDesign|王伟 - 13
湖北·北欧时光烘焙店 | 漾设计YoungDesign|王伟 - 13 ×
▲休闲区
空间配饰大量运用自然元素和烘焙软饰,钢结构和木结构的搭接配合,不仅勾勒出各个空间的形态,也创造出餐厅独有的人流动线。同时钢网在空间中起到了一定的阻挡和分割空间的作用。
湖北·北欧时光烘焙店 | 漾设计YoungDesign|王伟 - 15
湖北·北欧时光烘焙店 | 漾设计YoungDesign|王伟 - 15 ×
我们通过一系列的设计营造,旨在创造出一隅安静的氛围。让进入其间的人节奏缓下来,在这里喝杯咖啡,点上一份甜点,享受难得的慢时光。
湖北·北欧时光烘焙店 | 漾设计YoungDesign|王伟 - 16
湖北·北欧时光烘焙店 | 漾设计YoungDesign|王伟 - 16 ×
湖北·北欧时光烘焙店 | 漾设计YoungDesign|王伟 - 17 ▲一楼平面图
湖北·北欧时光烘焙店 | 漾设计YoungDesign|王伟 - 17 ×
精彩评论