该项目位于一座湖边小镇中,这里有一个充满历史底蕴的广场,广场包含了一个小教堂、一所学校和一个印刷厂。这一切都是昔日人们可爱的创造。其中的印刷厂已经空置很长一段时间,如今完全作为废墟存在。设计师通过了解这里的历史(不仅仅是建筑自己的历史),仍保留下建筑与小镇环境的联系,同时又塑造出了新的美丽空间。

▼改造前废弃的印刷厂
匈牙利 Horgos 办公室 | GASPARBONTA & Partners|GASPARBONTA & Partners - 0
匈牙利 Horgos 办公室 | GASPARBONTA & Partners|GASPARBONTA & Partners - 0 ×
▼改造后明亮的办公空间
匈牙利 Horgos 办公室 | GASPARBONTA & Partners|GASPARBONTA & Partners - 1
匈牙利 Horgos 办公室 | GASPARBONTA & Partners|GASPARBONTA & Partners - 1 ×
整个小镇都很喜欢这块场地,于是当地的建筑师、总承包商以及合作开发人员都决定重新打造这个印刷厂,原有的设施将被移除,并运用新的元素来重新诠释它,为今天的功能和娱乐做好准备。 设计师通过改造旧的建筑打造出一个新的设计,让这个空旷的空间变得活跃起来,同时重塑出新的外壳,置入新的栏杆、门窗、照明设施以及新的家具。

▼建筑入口前台
匈牙利 Horgos 办公室 | GASPARBONTA & Partners|GASPARBONTA & Partners - 2
匈牙利 Horgos 办公室 | GASPARBONTA & Partners|GASPARBONTA & Partners - 2 ×
▼一层的接待大厅
匈牙利 Horgos 办公室 | GASPARBONTA & Partners|GASPARBONTA & Partners - 3
匈牙利 Horgos 办公室 | GASPARBONTA & Partners|GASPARBONTA & Partners - 3 ×
▼与大厅相互渗透的会议室
匈牙利 Horgos 办公室 | GASPARBONTA & Partners|GASPARBONTA & Partners - 4
匈牙利 Horgos 办公室 | GASPARBONTA & Partners|GASPARBONTA & Partners - 4 ×
▼沿袭工业感的金属楼梯
匈牙利 Horgos 办公室 | GASPARBONTA & Partners|GASPARBONTA & Partners - 5
匈牙利 Horgos 办公室 | GASPARBONTA & Partners|GASPARBONTA & Partners - 5 ×
整体设计都很朴素,原有的砖墙被清理重现,与外露的混凝土天花板相结合,而门窗采用木头构造,利用水泥简单加工打造出粗糙的墙壁,与厚重的铁质楼梯相搭配,这一系列的设计最终形成了清新、明亮、通风的空间,同时保留了房子沉稳的工业感。未来它将成为人们的工作场所和生活空间,而这个独特的建筑仍旧坐落在这个湖上小镇中,面对教堂,毗邻学校。

▼全玻璃屋顶改善了原有房屋的采光情况
匈牙利 Horgos 办公室 | GASPARBONTA & Partners|GASPARBONTA & Partners - 8
匈牙利 Horgos 办公室 | GASPARBONTA & Partners|GASPARBONTA & Partners - 8 ×
▼相同金属元素的应用将一、二层空间联系起来
匈牙利 Horgos 办公室 | GASPARBONTA & Partners|GASPARBONTA & Partners - 9
匈牙利 Horgos 办公室 | GASPARBONTA & Partners|GASPARBONTA & Partners - 9 ×
▼楼梯旁的办公室
匈牙利 Horgos 办公室 | GASPARBONTA & Partners|GASPARBONTA & Partners - 10
匈牙利 Horgos 办公室 | GASPARBONTA & Partners|GASPARBONTA & Partners - 10 ×
▼办公区一览
匈牙利 Horgos 办公室 | GASPARBONTA & Partners|GASPARBONTA & Partners - 11
匈牙利 Horgos 办公室 | GASPARBONTA & Partners|GASPARBONTA & Partners - 11 ×
▼位于二层的会议室保留了原有砖砌房顶
匈牙利 Horgos 办公室 | GASPARBONTA & Partners|GASPARBONTA & Partners - 12
匈牙利 Horgos 办公室 | GASPARBONTA & Partners|GASPARBONTA & Partners - 12 ×
▼白色通道与原有砖墙相搭配
匈牙利 Horgos 办公室 | GASPARBONTA & Partners|GASPARBONTA & Partners - 14
匈牙利 Horgos 办公室 | GASPARBONTA & Partners|GASPARBONTA & Partners - 14 ×
▼新置入的白色书柜
匈牙利 Horgos 办公室 | GASPARBONTA & Partners|GASPARBONTA & Partners - 15
匈牙利 Horgos 办公室 | GASPARBONTA & Partners|GASPARBONTA & Partners - 15 ×
▼金属楼梯与混凝土墙壁的结合
匈牙利 Horgos 办公室 | GASPARBONTA & Partners|GASPARBONTA & Partners - 16
匈牙利 Horgos 办公室 | GASPARBONTA & Partners|GASPARBONTA & Partners - 16 ×
▼建筑外楼梯
匈牙利 Horgos 办公室 | GASPARBONTA & Partners|GASPARBONTA & Partners - 17
匈牙利 Horgos 办公室 | GASPARBONTA & Partners|GASPARBONTA & Partners - 17 ×
▼照明设备细部
匈牙利 Horgos 办公室 | GASPARBONTA & Partners|GASPARBONTA & Partners - 18
匈牙利 Horgos 办公室 | GASPARBONTA & Partners|GASPARBONTA & Partners - 18 ×
▼金属楼梯细部
匈牙利 Horgos 办公室 | GASPARBONTA & Partners|GASPARBONTA & Partners - 19
匈牙利 Horgos 办公室 | GASPARBONTA & Partners|GASPARBONTA & Partners - 19 ×
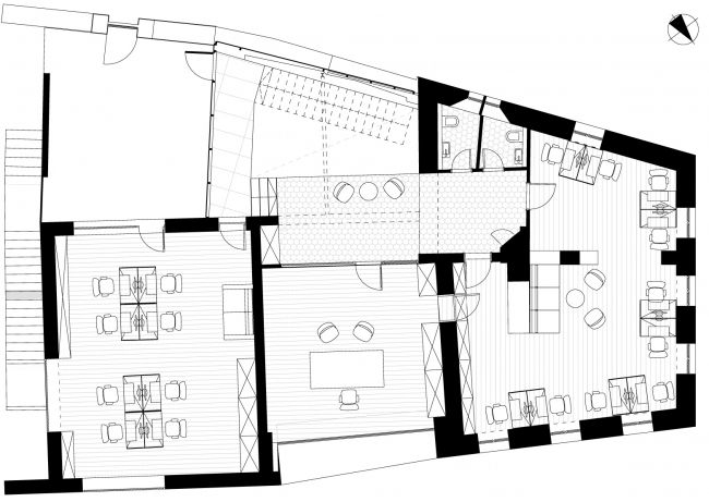
▼一层平面
匈牙利 Horgos 办公室 | GASPARBONTA & Partners|GASPARBONTA & Partners - 20
匈牙利 Horgos 办公室 | GASPARBONTA & Partners|GASPARBONTA & Partners - 20 ×
▼二层平面
匈牙利 Horgos 办公室 | GASPARBONTA & Partners|GASPARBONTA & Partners - 21
匈牙利 Horgos 办公室 | GASPARBONTA & Partners|GASPARBONTA & Partners - 21 ×
匈牙利 Horgos 办公室 | GASPARBONTA & Partners|GASPARBONTA & Partners - 22 ▼剖面图
匈牙利 Horgos 办公室 | GASPARBONTA & Partners|GASPARBONTA & Partners - 22 ×
精彩评论