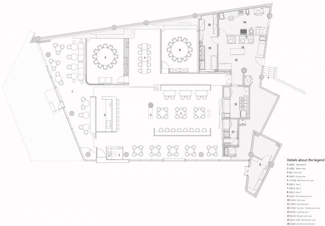
叁号厨房(Third Kitchen)位于杭州滨江区英飞特大厦G座1楼(中央花园区域),为设计师蒋杰与Solife家具在餐饮与空间设计上的一次合作。远离传统餐饮密集的shopping mall与嘈杂街区,并区别于传统园区“食堂”的模式化与流水线处理,叁号厨房项目更关注个体与社群间的私密性与流动性,他们的用餐状态与真实体验,以及对于日常餐饮更多元的需求与选择。选址上的相对偏移对应的是更精准的区域与人群,以及将现代餐饮空间通过设计实践注入写字楼环境的意愿与尝试:在高密度与快速运转的写字楼生态中带来“舒适过渡”的氛围转换;通过现代感的空间打造与传统特色本地菜的结合,将“共餐commensality”的理念由零散的区域分布汇集到城市最紧密的中心——写字楼,形成一个现代“城市餐厅”应有的面貌。
▼餐厅外观
▼餐厅外观

“共餐commensality”指人们在餐桌前共同进餐、拉近距离的行为。它来源于拉丁语“commensalis”,该词由“com共同”和“mensa餐桌”两部分组成。“与他人共同进餐传递出一种强烈的信任感,这种亲近之感远超越于空间上的彼此靠近。正是这样的亲近感形成了社会群体,因此共餐是珍贵的、不可缺失的。”——《共餐:从日常饮食到狂欢筵席》 叁号厨房(Third Kitchen)将这一珍贵与不可缺失的“共餐”行为,以及现代的、舒适的、具有社交属性与连结感的空间体验,在写字楼环境中得到延伸与重现。从规整封闭的办公间,步入敞亮的中央花园,餐厅位于花园一侧的不规则空间内,截取了外部的自然光与敞开的景致,与内部环境融为一体。
▼餐厅截取了外部的自然光与敞开的景致
▼餐厅截取了外部的自然光与敞开的景致
