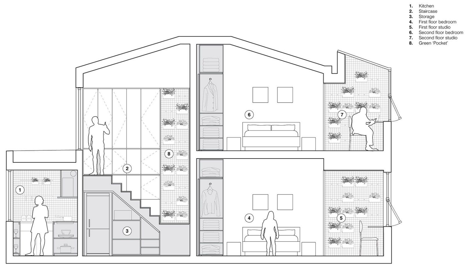
优思建筑将位于北京的一个85平米、阴暗、封闭破败的双层公寓改造为专为本地的一对年轻夫妇设计的明亮、开放、绿植充沛的居住空间。整个改造过程从设计到建成总共耗时两个月。北京电视台(BTV)邀请优思建筑参与一档住宅改造的节目,以小户型为主,展示其改造成果和设计过程。优思建筑借此机会让人们意识到北京老建筑恶劣的居住条件,并提高对室内空间环境标准的意识。作为住宅项目,它的设计理念基于自然光、空间、简洁性、可持续性以及与人与绿色的紧密关系。在原有的平面布局中,客厅位于整个空间的东侧,客厅中的楼梯阻碍了空间使用。客厅东侧的口袋形阳台阻挡了整个房间的东侧采光。首层过多的隔断阻碍了采光和通风,从而导致空气潮湿,环境不健康。
▼起居室
▼起居室
