
初识官也街大概是十年以前,在我们北京工作室附近,依稀记得大概是一个不大的门面,材质已经记不清楚了。当时豆捞火锅盛行的年代,一家名不见经传的澳门火锅小店,并不惹眼。餐厅味道很好但价格却不贵,慢慢的我们就成为了餐厅的老主顾,几年后从门口经过突然发现它吃掉了隔壁的门面,当然我们并不了解在这几年里他们做了哪些努力。直到一天店老板弗兰克找到我们,并委托我们帮他设计一家新的分店,位于北京央视大楼正对面的CBD位置。
——设计师说

作为曾经餐厅的老主顾,今日摇身一变成为餐厅设计师,自然对官也街有了更深层次的了解。餐厅名字来源于澳门一条小小的“官也街”,而老板弗兰克正是从小就在官也街上长大,所以用“官也街”来命名,正是诉说着一个澳门人对心中故乡的思念与牵挂,无论身在何处,无论离别多久,故乡的味道始终是让人魂牵梦萦。
▼餐厅入口


也许能够想到十年前弗兰克创业时候的艰辛,无论是当年名不见经传的小店,还是今天名声远播的国贸餐厅,官也街都一直追求着食物本身的味道。
▼主要用餐空间



▼餐厅细节

这个设计的切入点,是可以将整个三环CBD尽收眼底的玻璃幕景观区域设计,利用原有的下沉空间把餐厅设计成一个微缩小剧场,再用玻璃幕区域为最低点向内部空间依次抬高,并形成三个剧场式台阶,这样就可以让在不同高度上就餐的人们就能更好的欣赏到三环美景。
▼玻璃幕景观区域


而其他的剩余空间较为私密正好作为包间使用同时也提高了零散空间的使用效率。而包间在材料使用方面主要运用了原木为主的自然材质,并利用最为原始的搭建手法制造出丰富的空间效果。
▼包间区原木立面


另外值得一提的就是餐厅的外立面设计,原来的红线是半弧形曲线,如果按照原来的形状立面效果势必被平面化,也不能与内部空间有机结合,所以我们以退为进把弧线转化成折线,这样一来就能让原本平淡的立面变得多变且负有韵律感,同时利用时空转化关系延长了外立面的长度无形中增加了餐厅的展示面。
▼折线形立面设计



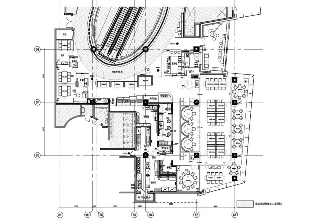
▼平面/施工图





项目名称:官也街澳门火锅店
设计公司:古鲁奇建筑咨询有限公司
设计团队:利旭恒,赵爽,周秋霞,张超
视觉设计: 周宗逸
项目地点:中国北京 
项目面积:680㎡ 
项目面积:2018
摄影师:鲁鲁西

 
						
