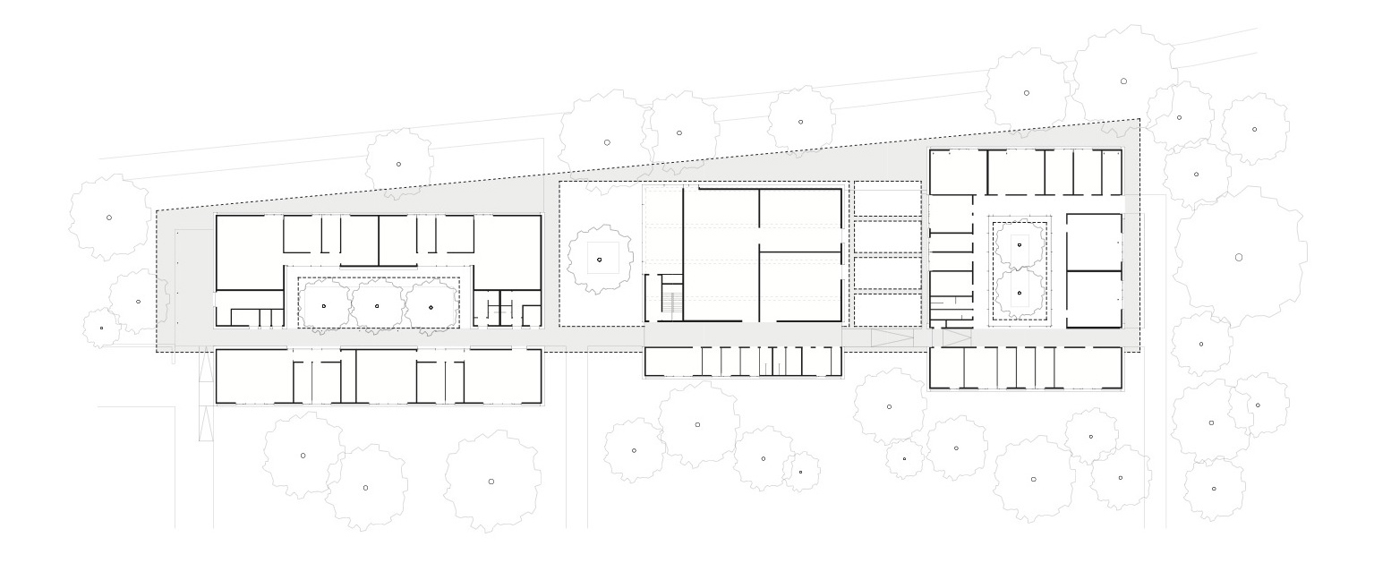
这是由Hascher Jehle Architektur设计的德国纽伦堡艺术学院扩建。扩建建筑为细长的单层建筑,与街道的一面相连,是在Sep Ruf设计的现状建筑的基础上进行了补充和延伸。扩建后的建筑内有新画室、工作室和会议室,分别布置在三个独立的展馆里,而这三个展馆由一个大型屋顶协调统一起来。



新综合体建筑的中心被称为“交流馆”,设有自助餐厅、大型工作室、储藏室和多功能活动空间。咖啡厅旁边连接着一个开敞的庭院,兼做学院主入口。西面的展馆布置了新画室,画室围绕着内院布局,并通过雨廊与其他画室相连。




剖面图
会议室位于第三个展馆,同样也是围绕着内院布局。相比于开放的走道,这里的走廊相对封闭,并通过落地玻璃窗与室外庭院相隔离。独立展馆之间的通道伴随着走道的形状组成了室外工作区。





场地平面图

底层平面图

剖面图
