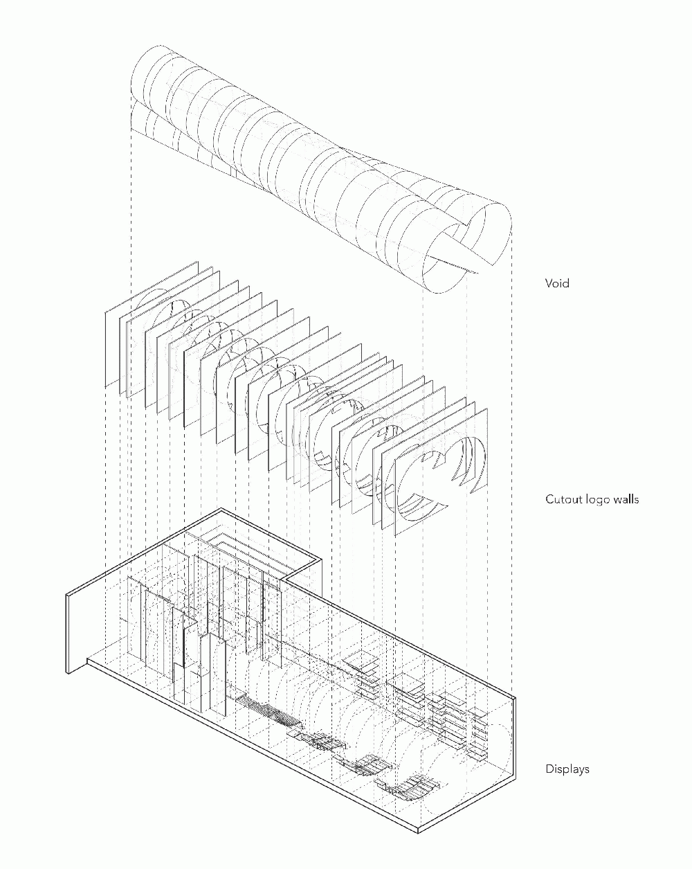
Ohlab设计工作室为迈阿密的时装店,设计并安装了一系列几何框架,框架之间有阶梯式货架,用于展示商品。这家“视觉概念店”位于迈阿密市中心,有20多个展板,每个展板都被切割成圆形开口。

这些展示架沿商店的深度方向排列,形成一条直线。每个展示架都像这条直线的横截面。通过在直线的内部形成一个管状的缺口,它呼应了商店的标志。Ohlab工作室的负责人说:“这个品牌的标志由两个交错的圆圈组成,其设计理念来自望远镜。”
这种设计是虚幻的,类似于在一定角度挤压八角旋转。Ohlab工作室的负责人接着说,通过对标识形状的挤压、翻译和旋转,形成了一个虚幻的空间。


面板表层涂上了白色的颜料,这是一种由丙烯酸树脂和氢氧化铝制成的材料,看起来非常像石头表面。每两个陈列架之间的空隙设计为内置的货架,主要用作产品陈列的角落和平台。
“尽管空间很复杂,但施工过程必须简单,且易于装卸,这是因为所有的面板都将在西班牙的一个仓库中生产,并运送到迈阿密,安装时间只有几个星期。”工作室主任说。
商店的后墙有一个平面面板,面板在几何上进行了延续,通过二维形态形成了三维空间的错觉,让人们感觉商店的后方似乎还在继续无限延伸。
Ohlab总部位于马尔洛卡帕尔马,由Paloma Hernaiz和Jaime Oliver管理,团队由建筑师和室内设计师组成。最近,工作室的作品有一个由一系列立方体组成的白宫,每个立方体都可以从不同的角度欣赏马洛卡美丽的风景。
平面图



